Bénéficiez des services de nos partenaires locaux soigneusement sélectionnés
pour vous accompagner dans votre parcours d'achat immobilier

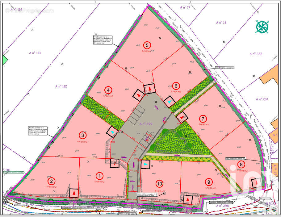
Terrain 925m² à agy

— Agy 14400 —
106 000 €
925 m²

Nos partenaires locaux
Iad France - Christel Leroux vous propose : Grand terrain à bâtir, viabilisé dans un petit lotissement, situé à 10 min de Bayeux et 25min de Caen ! Terrain bénéficiant d'un emplacement privilégié au sein du lotissement, en retrait de la route !

Honoraires d'agence à la charge du vendeur.
Bien non soumis au DPE. Les informations sur les risques auxquels ce bien est exposé, y compris l'obligation légale de débroussaillement, sont disponibles sur le site Géorisques : http://www.georisques.gouv.fr.
La présente annonce immobilière a été rédigée sous la responsabilité éditoriale de Mme Christel Leroux mandataire indépendant en immobilier (sans détention de fonds), agent commercial de la SAS I@D France immatriculé au RSAC de CAEN sous le numéro 534 789 771, titulaire de la carte de démarchage immobilier pour le compte de la société I@D France SAS.
Informations LOI ALUR :
Honoraires charge vendeur. (gedeon_6727_32144459)
Voir plus

Référence: 1840730
Honoraires à la charge du vendeur.

Prêt immobilier

Vous souhaitez connaître votre capacité d’emprunt et trouver le meilleur crédit immobilier ?
Réaliser une simulation gratuite

Photo 1 - Terrain à AGY
Photo 1
Photo 2 - Terrain à AGY
Photo 2
Photo 3 - Terrain à AGY
Photo 3
Photo 4 - Terrain à AGY
Photo 4
Ce site est protégé par reCAPTCHA la Politique de confidentialité et les Conditions d’utilisation de Google s’appliquent.
Obtenir un prêt immobilier au meilleur taux ?

En poursuivant votre navigation sans modifier vos paramètres, vous acceptez l'utilisation de cookies susceptibles de réaliser des statistiques de visite. Cliquez ici pour plus d'informations