Bénéficiez des services de nos partenaires locaux soigneusement sélectionnés
pour vous accompagner dans votre parcours d'achat immobilier

Maison 90m² à courtry

— Courtry 77181 —
318 000 €
90 m² / 150 m²
5 pièces
parkingbalcon/terrassejardin

Nos partenaires locaux
Iad France - Laurence MATHIVET vous propose : Maison familiale, dans résidence sécurisée

Courtry - Village de la Forêt
Au cOEur d'un lotissement privé, sécurisé et très recherché, cette charmante maison de 4 pièces offre un cadre de vie paisible et familial, à proximité immédiate des écoles, des commerces et des commodités du centre-ville.

Un intérieur fonctionnel et lumineux

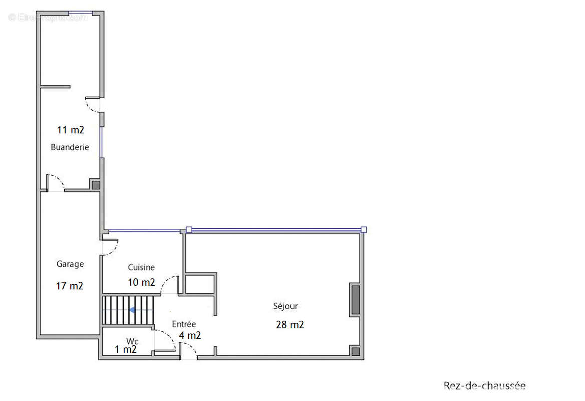
Au rez-de-chaussée :
-Entrée avec placard (4 m²)
- Cuisine séparée et aménagée (10 m²), donnant directement sur la terrasse
- Séjour de 28 m², baigné de lumière, avec cheminée à foyer fermé et grande baie vitrée donnant directement sur la terrasse exposée plein ouest.
- WC indépendant
- Buanderie pratique de 11 m² avec douche et point d'eau
- Garage de 17 m² avec accès direct depuis la maison

À l'étage :
- Dégagement avec rangements (8 m²)
- Trois chambres confortables (10,11 et 12 m²), dont deux avec placards
- Salle de bains avec WC et fenêtre

Prestations et équipements :
- Chauffage au gaz
- Fenêtres en aluminium double vitrage
- Volets roulants électriques en aluminium
- Store banne électrique
- Combles isolés (possibilité de stockage)

Un cadre de vie sécurisé où il fait bon vivre
Vous apprécierez l'ambiance paisible du Village de la Forêt, résidence familiale entièrement clôturée, équipée :
- De portails et portillons automatique
- D'un terrain de tennis privé en accès libre
- De voiries et espaces communes entretenues
Le tout géré par un syndic bénévole, garant de charges maîtrisées.

Localisation idéale
- Écoles maternelle, primaire et collège accessibles à pied
- Commerces de proximité rapidement accessibles
- Environnement calme, familial et verdoyant

Informations pratiques
- Charges de copropriété : 304 ¤ / an (entretien des portails, portillons, voiries, terrain de tennis. )
- Taxe foncière : 1300 ¤ / an

Vous recherchez un environnement sûr, calme et agréable pour votre famille ?
Cette maison est faite pour vous. Contactez-moi pour organiser une visite.

La presente annonce immobiliere vise 1 lot situé dans une copropriété de 56 lots au total et ne faisant l'objet d'aucune procédure en cours citée à l'article L. 721-1 du code de la construction et de l'habitation. Montant moyen mensuel de charges déclaré par le vendeur : 25.33¤ par mois (soit 304 ¤ annuel). Honoraires d'agence à la charge du vendeur.
Information d'affichage énergétique sur ce bien : classe ENERGIE G indice 445 et classe CLIMAT E indice 61. Les informations sur les risques auxquels ce bien est exposé, y compris l'obligation légale de débroussaillement, sont disponibles sur le site Géorisques : http://www.georisques.gouv.fr.
La présente annonce immobilière a été rédigée sous la responsabilité éditoriale de Mme Laurence MATHIVET mandataire indépendant en immobilier (sans détention de fonds), agent commercial de la SAS I@D France immatriculé au RSAC de BOBIGNY sous le numéro 903664068, titulaire de la carte de démarchage immobilier pour le compte de la société I@D France SAS.
Informations LOI ALUR :
Soumis au régime de copropriété.
Nombre de lots : 56.
Quote part annuelle(moyenne) : 304 euros.
Honoraires charge vendeur. (gedeon_6727_32145486)
Voir plus

Référence: 1881481
Bien en copropriété. Nombre de lots : 56. Charges de copropriété : 304 €.
Honoraires à la charge du vendeur.
DPE
A
B
C
D
E
F
G
GES
A
B
C
D
E
F
G

Prêt immobilier

Vous souhaitez connaître votre capacité d’emprunt et trouver le meilleur crédit immobilier ?
Réaliser une simulation gratuite

Photo 1 - Maison à COURTRY
Photo 1
Photo 2 - Maison à COURTRY
Photo 2
Photo 3 - Maison à COURTRY
Photo 3
Photo 4 - Maison à COURTRY
Photo 4
Photo 5 - Maison à COURTRY
Photo 5
Photo 6 - Maison à COURTRY
Photo 6
Photo 7 - Maison à COURTRY
Photo 7
Photo 8 - Maison à COURTRY
Photo 8
Photo 9 - Maison à COURTRY
Photo 9
Ce site est protégé par reCAPTCHA la Politique de confidentialité et les Conditions d’utilisation de Google s’appliquent.
Obtenir un prêt immobilier au meilleur taux ?

En poursuivant votre navigation sans modifier vos paramètres, vous acceptez l'utilisation de cookies susceptibles de réaliser des statistiques de visite. Cliquez ici pour plus d'informations