Bénéficiez des services de nos partenaires locaux soigneusement sélectionnés
pour vous accompagner dans votre parcours d'achat immobilier

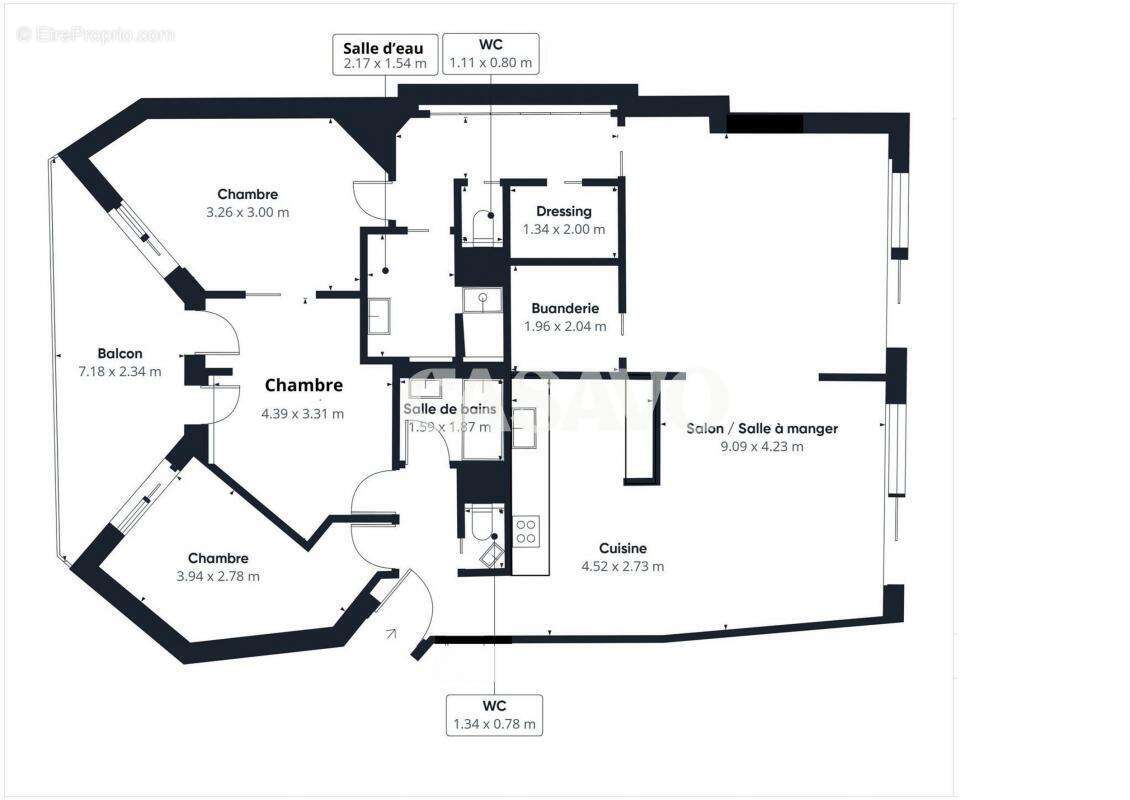
Vente appartement 5 pièces de 117m² - 83240 cavalaire-sur-mer

— Cavalaire-Sur-Mer 83240 —
1 100 000 €
117 m²
5 pièces
balcon/terrassejardinascenseur

Nos partenaires locaux
Casavo vous propose à la vente au cœur du Golfe de Saint-Tropez, ce superbe appartement contemporain de 117 m².

Cette opportunité rare se distingue par sa rénovation complète et ses finitions haut de gamme. Situé au premier étage d'une résidence prisée, il offre une vue panoramique exceptionnelle sur la mer, le port et la baie de Cavalaire sur Mer depuis l'une de ses deux terrasses, prolongées par un jardin privatif de 64 m² !

Un véritable havre de paix au bord de la Méditerranée.

Dès l'entrée, les volumes et la luminosité séduisent instantanément. Le double séjour, baigné de lumière naturelle, s'ouvre sur les espaces extérieurs, invitant à profiter pleinement du climat en toute saison. La cuisine, entièrement équipée avec des appareils de grandes marques, s'intègre harmonieusement à cet espace de vie convivial et raffiné.

La partie nuit dévoile une élégante suite parentale avec dressing et salle d'eau privative, ainsi que deux chambres supplémentaires, une salle de bain indépendante, deux WC séparés et une buanderie. L'ensemble a été pensé pour offrir confort et fluidité au quotidien.

Les prestations sont à la hauteur du lieu : porte blindée, climatisation gainable, plancher chauffant, matériaux nobles et équipements haut de gamme garantissent un cadre de vie d'exception.

Deux Box fermés en sous-sol

Un bien rare sur le marché en centre-ville, alliant le charme de la vie en bord de mer à des prestations contemporaines de grand standing.

Visite virtuelle disponible sur demande

DPE : B réalisé le 3/11/2025
Taxe foncière : 2 622 € / an
Charges de copropriété : 300 € / mois

Ce bien est commercialisé par Casavo.

Intéressé par ce bien ? Plus d'informations sur le site de Casavo.
Voir plus

Référence: 49593
Honoraires à la charge du vendeur.
DPE
A
B
C
D
E
F
G
GES
A
B
C
D
E
F
G

Prêt immobilier

Vous souhaitez connaître votre capacité d’emprunt et trouver le meilleur crédit immobilier ?
Réaliser une simulation gratuite

Appartement à CAVALAIRE-SUR-MER
Appartement à CAVALAIRE-SUR-MER
Appartement à CAVALAIRE-SUR-MER
Appartement à CAVALAIRE-SUR-MER
Appartement à CAVALAIRE-SUR-MER
Appartement à CAVALAIRE-SUR-MER
Appartement à CAVALAIRE-SUR-MER
Appartement à CAVALAIRE-SUR-MER
Appartement à CAVALAIRE-SUR-MER
Appartement à CAVALAIRE-SUR-MER
Appartement à CAVALAIRE-SUR-MER
Appartement à CAVALAIRE-SUR-MER
Appartement à CAVALAIRE-SUR-MER
Appartement à CAVALAIRE-SUR-MER
Appartement à CAVALAIRE-SUR-MER
Appartement à CAVALAIRE-SUR-MER
Appartement à CAVALAIRE-SUR-MER
Appartement à CAVALAIRE-SUR-MER
Appartement à CAVALAIRE-SUR-MER
Ce site est protégé par reCAPTCHA la Politique de confidentialité et les Conditions d’utilisation de Google s’appliquent.
Obtenir un prêt immobilier au meilleur taux ?

En poursuivant votre navigation sans modifier vos paramètres, vous acceptez l'utilisation de cookies susceptibles de réaliser des statistiques de visite. Cliquez ici pour plus d'informations