Bénéficiez des services de nos partenaires locaux soigneusement sélectionnés
pour vous accompagner dans votre parcours d'achat immobilier

Saint-germain-en-laye 10' rer

— Saint-Germain-En-Laye 78100 —
1 075 000 €
117 m²
4 pièces
parkingascenseur

Nos partenaires locaux
SAINT-GERMAIN-EN-LAYE à 10' du RER
Centre ville, juste à côté de la place du Marché et du nouveau quartier Clos Saint-Louis / hôpital
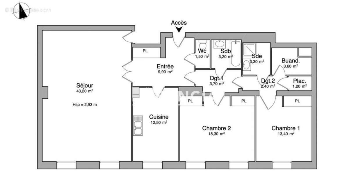
Bel Appartement 4/5 pièces de 116,02 m² dans un bel immeuble avec ASCENSEUR.
Entrée avec placard, Séjour Lumineux de 43,20 m² exposé Sud doté d'une belle hauteur sous plafond de 3,20 m
Cuisine aménagée de 12,5 m², 2 chambres (3 possibles) avec placards, dont une de 18,30 m² et une de 13,5 m2
Salle de bains, une Salle de douche avec toilettes, toilettes indépendant avec lave main, un dressing, une buanderie/chaufferie
2 caves . Un grand Parking.
Chauffage individuel au gaz.
A visiter avec FONCIA
Voir plus

Référence: 00622873
Bien en copropriété. Nombre de lots : 67. Charges de copropriété : 225 €.
Honoraires à la charge du vendeur.
Barème des honoraires
DPE
A
B
C
D
E
F
G
GES
A
B
C
D
E
F
G

Prêt immobilier

Vous souhaitez connaître votre capacité d’emprunt et trouver le meilleur crédit immobilier ?
Réaliser une simulation gratuite

Appartement à SAINT-GERMAIN-EN-LAYE
Appartement à SAINT-GERMAIN-EN-LAYE
Appartement à SAINT-GERMAIN-EN-LAYE
Appartement à SAINT-GERMAIN-EN-LAYE
Appartement à SAINT-GERMAIN-EN-LAYE
Appartement à SAINT-GERMAIN-EN-LAYE
Appartement à SAINT-GERMAIN-EN-LAYE
Appartement à SAINT-GERMAIN-EN-LAYE
Appartement à SAINT-GERMAIN-EN-LAYE
Ce site est protégé par reCAPTCHA la Politique de confidentialité et les Conditions d’utilisation de Google s’appliquent.
Obtenir un prêt immobilier au meilleur taux ?

En poursuivant votre navigation sans modifier vos paramètres, vous acceptez l'utilisation de cookies susceptibles de réaliser des statistiques de visite. Cliquez ici pour plus d'informations