Bénéficiez des services de nos partenaires locaux soigneusement sélectionnés
pour vous accompagner dans votre parcours d'achat immobilier

Maison de charme de plain-pied avec piscine chauffée et dépendances – montailleur (73)

— Montailleur 73460 —
412 000 €
120 m² / 714 m²
4 pièces
parkingbalcon/terrassejardinpiscine

Nos partenaires locaux
Charme, volumes et douceur de vivre – belle maison familiale avec piscine à Montailleur

Située dans un environnement calme et verdoyant, cette belle maison de 2012 allie charme, fonctionnalité et confort de vie.
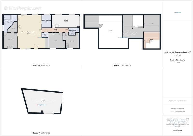
De plain-pied, elle développe 120 m² habitables sur un terrain clos et plat de 714 m², avec piscine chauffée, terrasse couverte et dépendances fonctionnelles.

Une distribution pensée pour le confort de chacun:

La maison s'organise autour d'une agréable pièce de vie de 46 m², mettant en valeur de belles hauteurs sous plafond et un bel espace central convivial.
Le séjour accueille une cuisine aménagée, ouverte sur la pièce principale, ainsi qu'un accès direct à une mezzanine pouvant servir de bureau ou d'espace détente.
Attenante au séjour, une buanderie fonctionnelle vient compléter cet espace central, pratique et bien conçu.

L'agencement intérieur a été pensé pour offrir une véritable indépendance entre les espaces :

D'un côté, un espace parental comprenant une chambre, un dressing et une grande salle d'eau privative,
À l'opposé, un coin nuit dédié aux enfants, composé de deux chambres disposant chacune d'un coin dressing, dont l'une bénéficie également d'une mezzanine, idéale pour un coin jeu ou bureau, ainsi qu'une seconde salle d'eau.

Extérieurs et dépendances:

À l'avant de la maison, une grande terrasse couverte, exposée plein sud et donnant vue sur la piscine, offre un véritable confort de vie en été, permettant de profiter de l'extérieur tout en restant à l'abri du soleil.

La piscine creusée et chauffée de 1,50 m de profondeur dispose d'un système de balnéothérapie intégré et de projecteurs LED pour des soirées d'été lumineuses et conviviales.
Un dôme électrique adapté est également disponible pour couvrir la piscine et en profiter toute l'année.
Actuellement stocké sur le côté du terrain, ce dôme nécessite quelques réparations suite à une pluie de grêle.
Les futurs acquéreurs pourront le remettre en état et le réinstaller au-dessus de la piscine, ou, si souhaité, les propriétaires s'engagent à le retirer lors de la vente.

Dépendances:

La propriété dispose de trois dépendances distinctes :

- Un local technique dédié à la piscine, permettant de stocker tout le matériel nécessaire à son entretien,
- Un garage de 19,6 m² avec mezzanine de 33,2 m²,
- Un garage de 42,7 m²,
ainsi que plusieurs places de stationnement extérieures.

Prestations et confort:

- Maison de plain-pied
- Belles hauteurs sous plafond
- Double vitrage PVC
- Chauffage électrique au sol, avec thermostat individuel dans chaque pièce
- Assainissement : fosse septique
- Exposition sud-est
- Terrain clos et arboré
- Terrasse couverte

Performance énergétique:

Le bien présente une étiquette énergétique E, principalement liée à son chauffage électrique au sol.
Le diagnostiqueur a préconisé l'installation d'un poêle à bois ou à granulés pour améliorer le confort thermique et remonter d'une classe énergétique.
Une amélioration simple et efficace pour ceux qui souhaitent allier confort et meilleure performance énergétique.

Localisation:

Le bien se situe à Montailloset, sur la commune de Montailleur (73460), dans un secteur calme, à proximité des commodités, écoles et axes routiers.

Un bien rare sur le secteur, idéal pour une famille recherchant le confort du plain-pied, des volumes généreux et une qualité de vie à la campagne dans un cadre agréable et fonctionnel. Les honoraires sont à la charge du vendeur.
Les informations sur les risques auxquels ce bien est exposé sont disponibles sur le site Géorisques : www. georisques. gouv. fr.

Réseau Immobilier CAPIFRANCE - Votre agent commercial (RSAC N°938 716 792 - Greffe de CHAMBERY) Elodie BULAT Entrepreneur Individuel [Coordonnées masquées] - Réf.929349
Voir plus

Référence: 340934999472
Honoraires à la charge du vendeur.
DPE
A
B
C
D
E
F
G
GES
A
B
C
D
E
F
G

Prêt immobilier

Vous souhaitez connaître votre capacité d’emprunt et trouver le meilleur crédit immobilier ?
Réaliser une simulation gratuite

Maison à MONTAILLEUR
Maison à MONTAILLEUR
Maison à MONTAILLEUR
Maison à MONTAILLEUR
Maison à MONTAILLEUR
Maison à MONTAILLEUR
Maison à MONTAILLEUR
Maison à MONTAILLEUR
Maison à MONTAILLEUR
Maison à MONTAILLEUR
Maison à MONTAILLEUR
Maison à MONTAILLEUR
Maison à MONTAILLEUR
Maison à MONTAILLEUR
Maison à MONTAILLEUR
Maison à MONTAILLEUR
Ce site est protégé par reCAPTCHA la Politique de confidentialité et les Conditions d’utilisation de Google s’appliquent.
Obtenir un prêt immobilier au meilleur taux ?

En poursuivant votre navigation sans modifier vos paramètres, vous acceptez l'utilisation de cookies susceptibles de réaliser des statistiques de visite. Cliquez ici pour plus d'informations