Bénéficiez des services de nos partenaires locaux soigneusement sélectionnés
pour vous accompagner dans votre parcours d'achat immobilier

Maison 93m² à marignane

— Marignane 13700 —
240 000 €
93 m² / 100 m²
4 pièces
parkingbalcon/terrasse

Nos partenaires locaux
MARIGNANE – QUARTIER RASCAS – CALME & LUMINOSITÉ
Maison 4 pièces – 93,63 m² – 3 chambres – Garage – Cour – T1 indépendant – Proximité commerces et transports

Efficity, l'agence qui estime votre bien en ligne, vous présente en exclusivité cette charmante maison de 4 pièces, située dans le quartier recherché du Rascas à Marignane.
Avec ses 93,63 m² habitables sur deux niveaux, elle offre un cadre de vie idéal pour une famille, un jeune couple ou un investisseur (rentabilité possible jusqu'à 10,3 % brut).

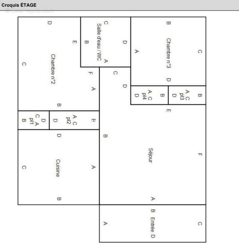
À L'ÉTAGE
Un agréable T3 lumineux, composé de :

Une pièce de vie traversante Est/Ouest avec cuisine ouverte équipée,
menuiseries aluminium double vitrage et volets roulants électriques ;

Deux chambres spacieuses avec rangements, fenêtres bois double vitrage et volets bois ;

Une salle d'eau exposée Ouest avec douche, WC et simple vasque.

AU REZ-DE-CHAUSSÉE
Une cour privative plein sud de 36 m², pouvant accueillir 2 véhicules ;

Un T1 indépendant avec cuisine ouverte sur la pièce à vivre, idéal pour un revenu locatif ou studio d'appoint ;

Un atelier avec WC, transformable selon vos besoins (chambre supplémentaire, buanderie, espace de travail…).

Un garage complète l'ensemble, avec possibilité de stationner également à l'extérieur.

À SAVOIR
La structure est saine, sans amiante.
Des travaux de rafraîchissement sont à prévoir : salle d'eau, cuisine, peintures, tableau électrique, quelques prises et radiateurs.

ON AIME
Son calme et sa luminosité
Son T1 indépendant offrant un revenu locatif
Sa cour plein sud et son garage
Sa proximité des commerces et transports

Vente interactive via venteauxencheresimmobilieres.com
Positionnement possible dès la visite ou à l'inscription

Contact :
Jean-Yves Drouet – [Coordonnées masquées]
[Coordonnées masquées]
Les informations sur les risques auxquels ce bien est exposé sont disponibles sur le site Georisque : georisques. gouv. fr
Thomas Le Guen - EI - est Agent Commercial mandataire en immobilier, immatriculé au Registre Spécial des Agents Commerciaux du Tribunal de Commerce de Salon-de-Provence sous le n°913288221.
Siège social du mandant : effiCity, 48 avenue de Villiers - 75017 PARIS - Société par Actions Simplifiée, société au capital de 132 373,05 euros, immatriculée au RCS Paris 497 617 746 et titulaire de la Carte professionnelle CPI 75[Coordonnées masquées]02 025 - CCI Paris IDF - Caisse de Garantie : GALIAN Assurances 89 rue de la Boétie 75008 Paris
Voir plus

Référence: 198454
Bien en copropriété. Nombre de lots : 8.
Honoraires d'agence de 5.5% à la charge de l'acquéreur
Barème des honoraires
DPE
A
B
C
D
E
F
G
GES
A
B
C
D
E
F
G

Prêt immobilier

Vous souhaitez connaître votre capacité d’emprunt et trouver le meilleur crédit immobilier ?
Réaliser une simulation gratuite

Maison à MARIGNANE
Maison à MARIGNANE
Maison à MARIGNANE
Maison à MARIGNANE
Maison à MARIGNANE
Maison à MARIGNANE
Maison à MARIGNANE
Maison à MARIGNANE
Maison à MARIGNANE
Maison à MARIGNANE
Maison à MARIGNANE
Maison à MARIGNANE
Maison à MARIGNANE
Maison à MARIGNANE
Maison à MARIGNANE
Ce site est protégé par reCAPTCHA la Politique de confidentialité et les Conditions d’utilisation de Google s’appliquent.
Obtenir un prêt immobilier au meilleur taux ?

En poursuivant votre navigation sans modifier vos paramètres, vous acceptez l'utilisation de cookies susceptibles de réaliser des statistiques de visite. Cliquez ici pour plus d'informations