Maison 125m² à l'hay-les-roses

— L'hay-Les-Roses 94240 —
540 000 €
125 m² / 240 m²
5 pièces
balcon/terrassejardin

EXCLUSIVITÉ - 94240 - L'HAY-LES-ROSES - QUARTIER PAVILLONNAIRE - 5 PIÈCES - 4 CHAMBRES - MAISON AVEC TERRASSE ET JARDIN - ISOLATION ET TOITURE REFAITES - SANS VIS-À-VIS

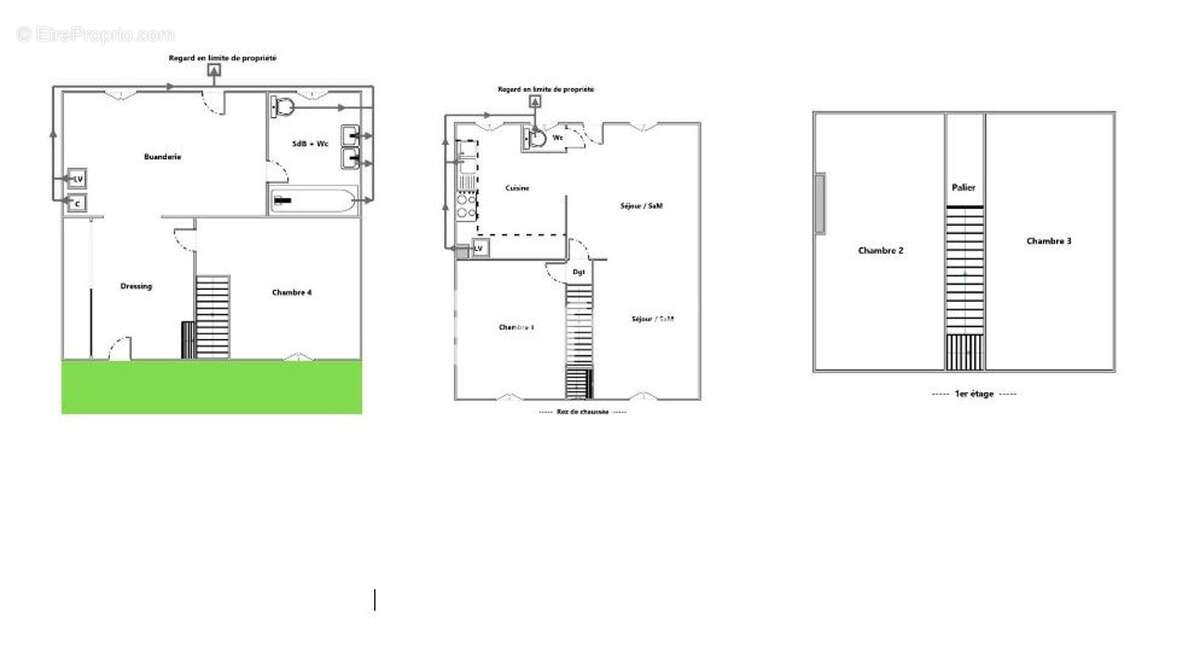
EffiCity, l'agence qui estime votre bien en ligne, vous propose cette charmante maison située dans un quartier pavillonnaire prisé de L'Haÿ-les-Roses.

D'une surface de 125m2, elle dispose de 5 pièces, dont 4 chambres, offrant un espace de vie confortable et lumineux.

L'entrée dessert un VASTE SÉJOUR moderne de 28m2, une cuisine semi-ouverte ainsi qu'une première chambre (actuellement un bureau) et un wc séparé.
A l'étage, vos enfants seront rois avec deux grandes chambres lumineuses et la possibilité d'aménager un autre wc séparé.
Au niveau bas, un très GRAND ESPACE DRESSING de près de 10m2 dessert une chambre de plus de 13m2, un espace buanderie de 16,5m2 avec rangements ainsi qu'une salle de bain avec wc.
L'accès au jardin se fait à ce niveau et vous bénéficiez d'une GRANDE TERRASSE donnant sur le jardin à l'arrière de la maison, idéale pour profiter des beaux jours en extérieur en toute quiétude.

Les points forts de ce bien résident également dans SON ISOLATION PAR L'EXTÉRIEUR ET SA TOITURE RÉCEMMENT REFAITES, garantissant ainsi un confort optimal.

La proximité des transports en commun et de Paris, les commerces accessibles à pied, la belle hauteur sous plafond, le calme environnant, ainsi que l'absence de vis-à-vis sont autant d'atouts qui sauront vous séduire.

Ne manquez pas l'opportunité de visiter cette maison pleine de charme à L'Haÿ-les-Roses, contactez-moi dès maintenant pour organiser une visite!

Centre commercial à 500m
Bus 186 à 350m
Bus 172, 193 et V2 à 600m
Ligne 14 à 18mn à pied
Les informations sur les risques auxquels ce bien est exposé sont disponibles sur le site Georisque : georisques. gouv. fr
Isabelle Mary - EI - est Agent Commercial mandataire en immobilier, immatriculé au Registre Spécial des Agents Commerciaux du Tribunal de Commerce de Créteil sous le n°820381291.
Siège social du mandant : effiCity, 48 avenue de Villiers - 75017 PARIS - Société par Actions Simplifiée, société au capital de 132 373,05 euros, immatriculée au RCS Paris 497 617 746 et titulaire de la Carte professionnelle CPI 75[Coordonnées masquées]02 025 - CCI Paris IDF - Caisse de Garantie : GALIAN Assurances 89 rue de la Boétie 75008 Paris
Voir plus

Référence: 198262
Honoraires à la charge du vendeur.
Barème des honoraires
DPE
A
B
C
D
E
F
G
GES
A
B
C
D
E
F
G

Prêt immobilier

Vous souhaitez connaître votre capacité d’emprunt et trouver le meilleur crédit immobilier ?
Réaliser une simulation gratuite

Maison à L'HAY-LES-ROSES
Maison à L'HAY-LES-ROSES
Maison à L'HAY-LES-ROSES
Maison à L'HAY-LES-ROSES
Maison à L'HAY-LES-ROSES
Maison à L'HAY-LES-ROSES
Maison à L'HAY-LES-ROSES
Maison à L'HAY-LES-ROSES
Maison à L'HAY-LES-ROSES
Maison à L'HAY-LES-ROSES
Maison à L'HAY-LES-ROSES
Maison à L'HAY-LES-ROSES
Maison à L'HAY-LES-ROSES
Maison à L'HAY-LES-ROSES
Maison à L'HAY-LES-ROSES
Maison à L'HAY-LES-ROSES
Ce site est protégé par reCAPTCHA la Politique de confidentialité et les Conditions d’utilisation de Google s’appliquent.
Obtenir un prêt immobilier au meilleur taux ?

En poursuivant votre navigation sans modifier vos paramètres, vous acceptez l'utilisation de cookies susceptibles de réaliser des statistiques de visite. Cliquez ici pour plus d'informations