Bénéficiez des services de nos partenaires locaux soigneusement sélectionnés
pour vous accompagner dans votre parcours d'achat immobilier

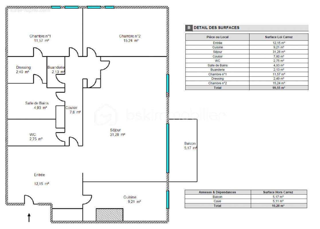
Appartement de type t3bis de 100m²

— Montpellier 34000 —
255 000 €
100 m²
3 pièces
balcon/terrasse

Nos partenaires locaux
Entre les quartiers d'Antigone et des Aubes, à seulement 4 minutes à pied du tram, 5 minutes des Rives du Lez, 12 minutes du Corum et 10 minutes en voiture de l'A9, appartement T3bis spacieux de 100 m² situé dans une résidence de standing avec ascenseur, parc arboré et gardien.

Il se compose d'une grande entrée, d'une pièce de vie lumineuse ouvrant sur une terrasse agréable et d'une cuisine indépendante facilement transformable en cuisine ouverte pour un espace de vie contemporain. L'espace nuit propose deux chambres — avec possibilité d'aménager une troisième — une salle de bains et des WC séparés. Une cave de 5 m² complète le bien.

Cet appartement bénéficie d'une belle luminosité et offre une vue dégagée sur le Pic Saint-Loup, l'Arbre Blanc et la nouvelle mairie.
Prévoir un budget rafraichissement. Plusieurs aménagement virtuels vous sont présentés sur cette annonce.

Cette annonce référence 310458 vous est présentée par votre agent commercial BSK Immobilier OLIVIER LE GUERINEL (EIRL) immatriculé au RSAC de MONTPELLIER (34070) sous le numéro 80[Coordonnées masquées]32.

Prix du bien : 255 000,00 €
Les honoraires d'agence sont à la charge du vendeur.

A propos de la copropriété :
Pas de procédure en cours.
Nombre de lots : 2
Charges prévisionnelles annuelles : 3 600,00 €

A propos des performances énergétiques :
Date de réalisation du diagnostic énergétique : 19/03/2025
Score DPE : 216 kWhEP/m²/an
Score GES : 47 kgepCO2/m²/an
Montant estimé des dépenses annuelles d'énergie pour un usage standard : entre 1746.00 € et 2362.00 € par an. Prix moyens des énergies indexés sur l'année 2023 (abonnements compris).

Les informations sur les risques auxquels ce bien est exposé sont disponibles sur le site Géorisques : www.georisques.gouv.fr
Voir plus

Référence: 310458
Bien en copropriété. Nombre de lots : 2. Charges de copropriété : 300 €.
Honoraires à la charge du vendeur.
DPE
A
B
C
D
E
F
G
GES
A
B
C
D
E
F
G

Prêt immobilier

Vous souhaitez connaître votre capacité d’emprunt et trouver le meilleur crédit immobilier ?
Réaliser une simulation gratuite

Appartement à MONTPELLIER
Appartement à MONTPELLIER
Appartement à MONTPELLIER
Appartement à MONTPELLIER
Appartement à MONTPELLIER
Appartement à MONTPELLIER
Appartement à MONTPELLIER
Appartement à MONTPELLIER
Appartement à MONTPELLIER
Appartement à MONTPELLIER
Appartement à MONTPELLIER
Appartement à MONTPELLIER
Appartement à MONTPELLIER
Appartement à MONTPELLIER
Appartement à MONTPELLIER
Appartement à MONTPELLIER
Appartement à MONTPELLIER
Appartement à MONTPELLIER
Appartement à MONTPELLIER
Appartement à MONTPELLIER
Ce site est protégé par reCAPTCHA la Politique de confidentialité et les Conditions d’utilisation de Google s’appliquent.
Obtenir un prêt immobilier au meilleur taux ?

En poursuivant votre navigation sans modifier vos paramètres, vous acceptez l'utilisation de cookies susceptibles de réaliser des statistiques de visite. Cliquez ici pour plus d'informations