Bénéficiez des services de nos partenaires locaux soigneusement sélectionnés
pour vous accompagner dans votre parcours d'achat immobilier

A réhabiliter dans le centre du pellerin

— Le Pellerin 44640 —
93 500 €
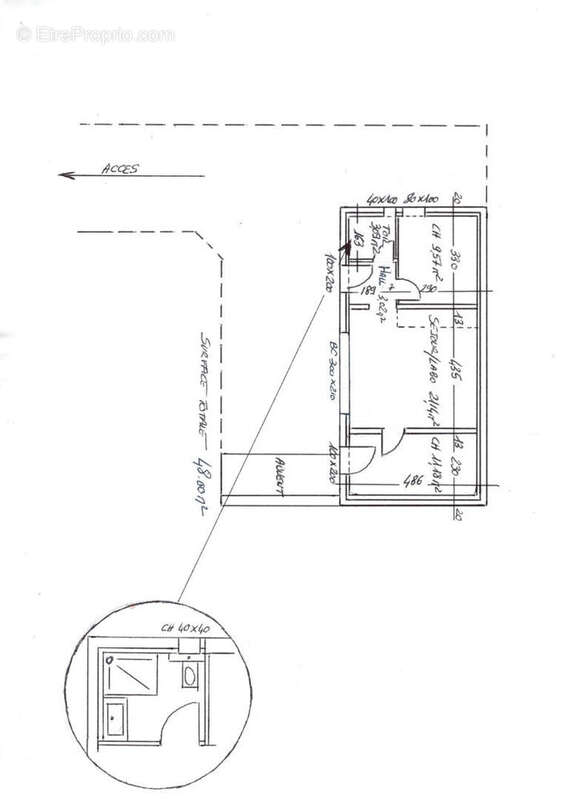
51 m² / 219 m²
3 pièces
jardin

Nos partenaires locaux
A saisir ! Dans un quartier calme et proche du centre-ville, dépendance de 51 m² à transformer en maison de plain-pied sur terrain clos de 218m², avec possibilité de parking. L'ensemble se compose de 3 pièces modulables. Compteur électrique déjà installé, raccordement aux eaux et compteur d'eau à prévoir. Proposition d'un projet d'aménagement intérieur disponible pour vous projeter. Idéal premier achat ou investissement avec avantage fiscal. REF : VB2505 -- Les informations sur les risques auxquels ce bien est exposé sont disponibles sur le site Géorisques : www.georisques.gouv.fr -- (10.00 % honoraires TTC à la charge de l'acquéreur.)
Voir plus

Référence: 2/566
Honoraires d'agence de 10% à la charge de l'acquéreur
Barème des honoraires

Prêt immobilier

Vous souhaitez connaître votre capacité d’emprunt et trouver le meilleur crédit immobilier ?
Réaliser une simulation gratuite

Maison à LE PELLERIN
Maison à LE PELLERIN
Maison à LE PELLERIN
Maison à LE PELLERIN
Maison à LE PELLERIN
Maison à LE PELLERIN
Maison à LE PELLERIN
Maison à LE PELLERIN
Maison à LE PELLERIN
Maison à LE PELLERIN
Maison à LE PELLERIN
Maison à LE PELLERIN
Maison à LE PELLERIN
Maison à LE PELLERIN
Maison à LE PELLERIN
Maison à LE PELLERIN
Maison à LE PELLERIN
Maison à LE PELLERIN
Ce site est protégé par reCAPTCHA la Politique de confidentialité et les Conditions d’utilisation de Google s’appliquent.
Obtenir un prêt immobilier au meilleur taux ?

En poursuivant votre navigation sans modifier vos paramètres, vous acceptez l'utilisation de cookies susceptibles de réaliser des statistiques de visite. Cliquez ici pour plus d'informations