Bénéficiez des services de nos partenaires locaux soigneusement sélectionnés
pour vous accompagner dans votre parcours d'achat immobilier

Terrain 1236m² à lormaison

— Lormaison 60110 —
97 200 €
1 236 m²

Nos partenaires locaux
Proche Méru 5mn (lormaison) - Autoroute A16 à 8 minutes.
Mon nom est GOLFY, je suis un magnifique terrain borné, non viabilisé, et PLAT de 1200 m² et SANS VIS À VIS d'environ d'une façade de 14 m² en lot arrière.
G2 réalisée
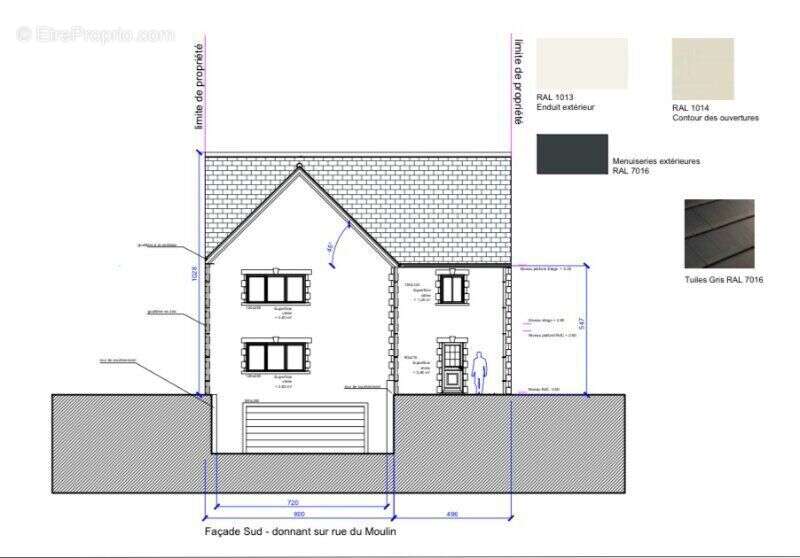
Un projet de construction avec sous-sol total a déjà été réalisé par un architecte.
À vos téléphones : [Coordonnées masquées]

Les informations sur les risques auxquels ce bien est exposé sont disponibles sur le site Géorisques : www.georisques.gouv.fr
Prix de vente : 97 200 ¤
Honoraires charge vendeur

Contactez votre conseiller SAFTI : Hélène CHAPELLE, Tél. : [Coordonnées masquées], E-mail : [Coordonnées masquées] - EI - Agent commercial immatriculé au RSAC de BEAUVAIS sous le numéro 793 837 493.
Informations LOI ALUR :
Honoraires charge vendeur. (gedeon_26118_32143431)
Voir plus

Référence: 1334415
Honoraires à la charge du vendeur.
Barème des honoraires

Prêt immobilier

Vous souhaitez connaître votre capacité d’emprunt et trouver le meilleur crédit immobilier ?
Réaliser une simulation gratuite

Photo 1 - Terrain à LORMAISON
Photo 1
Photo 2 - Terrain à LORMAISON
Photo 2
Ce site est protégé par reCAPTCHA la Politique de confidentialité et les Conditions d’utilisation de Google s’appliquent.
Obtenir un prêt immobilier au meilleur taux ?

En poursuivant votre navigation sans modifier vos paramètres, vous acceptez l'utilisation de cookies susceptibles de réaliser des statistiques de visite. Cliquez ici pour plus d'informations