Bénéficiez des services de nos partenaires locaux soigneusement sélectionnés
pour vous accompagner dans votre parcours d'achat immobilier

Appartement 105m² à thonon-les-bains

— Thonon-Les-Bains 74200 —
496 400 €
105 m²
4 pièces
parkingbalcon/terrasseascenseur

Nos partenaires locaux
Iad France - Pierre Magerand ([Coordonnées masquées]) vous propose : Appartement T4 avec terrasse et jardin aérien à Thonon-les-Bains.

Au cOEur de la résidence contemporaine Les Jardins du Lac, située avenue Jules Ferry, découvrez une adresse élégante qui associe qualité architecturale, confort et art de vivre. À seulement quelques minutes du centre-ville et des rives du Léman, cette résidence intimiste offre un cadre verdoyant et apaisé, idéal pour conjuguer sérénité et dynamisme urbain.

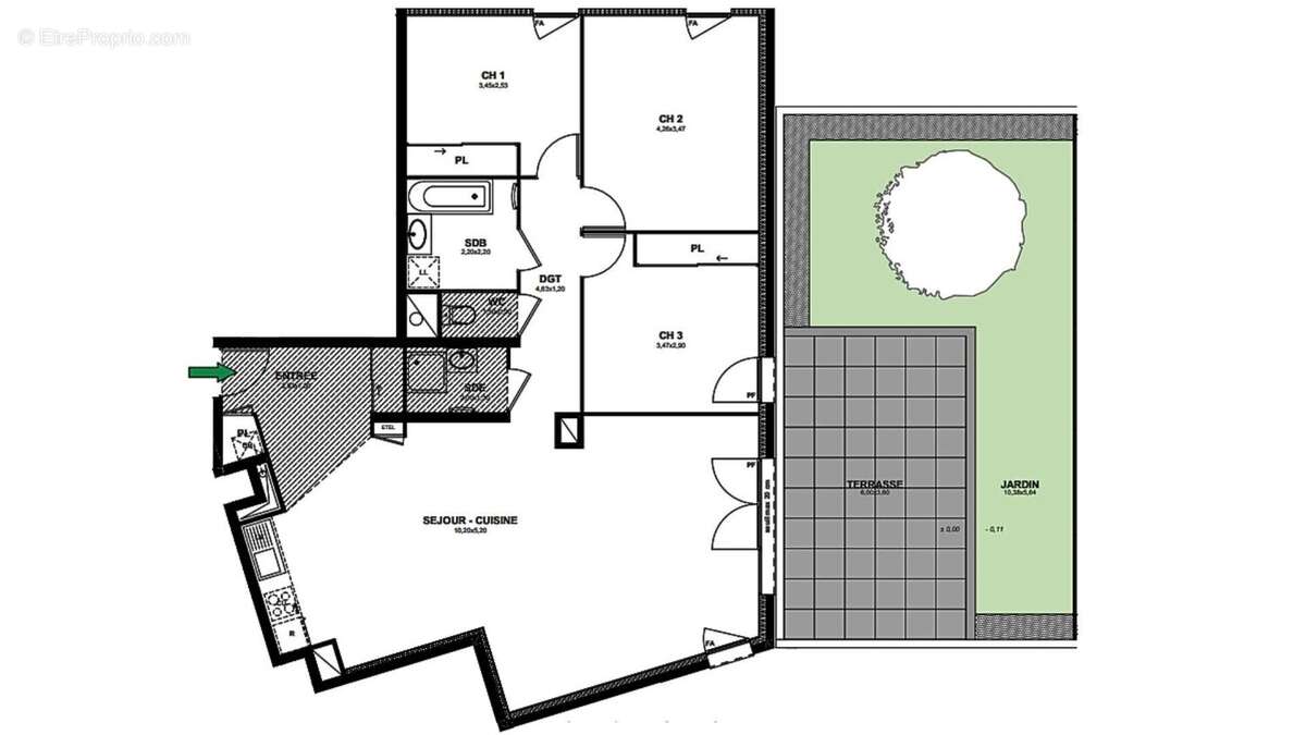
Situé au 4 ème étage, cet appartement T4 de 105 m² environ habitables se prolonge par de beaux espaces extérieurs privatifs :
- Terrasse de 22 m² environ.
- Jardin aérien de 33 m² environ.

L'agencement intérieur a été pensé pour allier luminosité et confort :
- Séjour / cuisine de 46 m² environ, ouvert sur l'extérieur.
- Trois chambres.
- Une salle de bains et une salle d'eau modernes.
- Annexes incluses : deux parkings en sous-sol.

Des belles prestations :
- Volets roulants électriques centralisés.
- Thermostat d'ambiance.
- Résidence sécurisée (digicode, visiophone, Vigik, ascenseurs sécurisés).

Un cadre de vie unique à Thonon :
- Commerces, services, écoles et crèches accessibles à pied.
- Gare et Léman Express à quelques minutes (connexion rapide vers Genève et Lausanne).
- Accès aux rives du Léman, au port de Rives et aux espaces naturels pour les loisirs nautiques et les balades.
- Stations de ski proches pour les amateurs de montagne.

N'hésitez pas à me contacter pour plus d'informations ou pour un accompagnement sur mesure.

Honoraires d'agence à la charge du vendeur. Bien non soumis au DPE. Les informations sur les risques auxquels ce bien est exposé sont disponibles sur le site Géorisques : www.georisques.gouv.fr. La présente annonce immobilière a été rédigée sous la responsabilité éditoriale de M. Pierre Magerand EI (ID 86098), mandataire indépendant en immobilier (sans détention de fonds), agent commercial de la SAS I@D France immatriculé au RSAC de Cusset sous le numéro 938729175, titulaire de la carte de démarchage immobilier pour le compte de la société I@D France SAS.
Retrouvez tous nos biens sur notre site internet. www.iadfrance.fr.
Informations LOI ALUR :
Honoraires charge vendeur. (gedeon_6727_31931733)
Voir plus

Référence: 1795201-2
Honoraires à la charge du vendeur.

Prêt immobilier

Vous souhaitez connaître votre capacité d’emprunt et trouver le meilleur crédit immobilier ?
Réaliser une simulation gratuite

Photo 1 - Appartement à THONON-LES-BAINS
Photo 1
Photo 2 - Appartement à THONON-LES-BAINS
Photo 2
Photo 3 - Appartement à THONON-LES-BAINS
Photo 3
Photo 4 - Appartement à THONON-LES-BAINS
Photo 4
Photo 5 - Appartement à THONON-LES-BAINS
Photo 5
Photo 6 - Appartement à THONON-LES-BAINS
Photo 6
Photo 7 - Appartement à THONON-LES-BAINS
Photo 7
Photo 8 - Appartement à THONON-LES-BAINS
Photo 8
Photo 9 - Appartement à THONON-LES-BAINS
Photo 9
Ce site est protégé par reCAPTCHA la Politique de confidentialité et les Conditions d’utilisation de Google s’appliquent.
Obtenir un prêt immobilier au meilleur taux ?

En poursuivant votre navigation sans modifier vos paramètres, vous acceptez l'utilisation de cookies susceptibles de réaliser des statistiques de visite. Cliquez ici pour plus d'informations