Appartement 75m² à l'ile-d'olonne

— L'ile-D'olonne 85340 —
347 500 €
75 m²
3 pièces

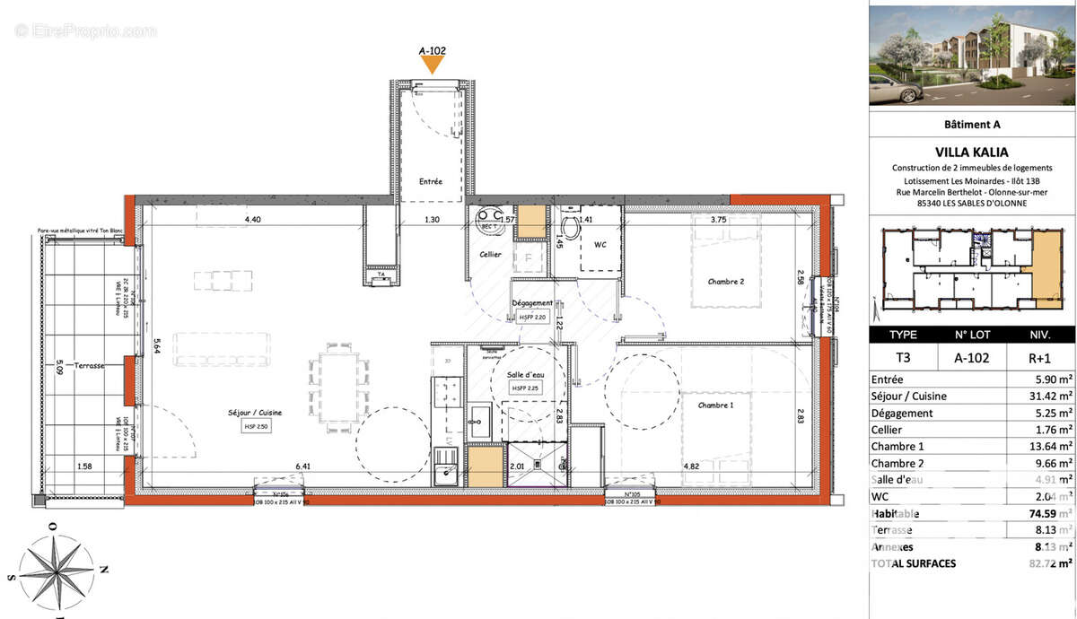
Iad France - Clémence Alliot vous propose : Appartement T3 - Construction 2022 - Normes PMR - 2 stationnements privatifs

À deux pas du centre commercial Ylium, découvrez ce bel appartement récent, construit en 2022, alliant confort moderne et emplacement privilégié.

Il se compose d'une entrée avec placard, d'un vaste séjour lumineux de 26 m² avec cuisine aménagée, ouvrant sur un agréable balcon d'environ 5 m².

L'espace nuit comprend deux chambres (dont une équipée d'un placard), une salle d'eau contemporaine, un WC séparé ainsi qu'un cellier pratique.

Pour compléter ce bien, vous disposerez de deux places de stationnement privatives.

Un appartement moderne, fonctionnel et idéalement situé, à découvrir sans tarder !

La presente annonce immobiliere vise 4 lots situés dans une copropriété de 66 lots au total et ne faisant l'objet d'aucune procédure en cours citée à l'article L. 721-1 du code de la construction et de l'habitation. Montant moyen mensuel de charges déclaré par le vendeur : 100¤ par mois (soit 1200 ¤ annuel). Honoraires d'agence à la charge du vendeur.
Information d'affichage énergétique sur ce bien : classe ENERGIE B indice 72 et classe CLIMAT A indice 2. Les informations sur les risques auxquels ce bien est exposé, y compris l'obligation légale de débroussaillement, sont disponibles sur le site Géorisques : http://www.georisques.gouv.fr.
La présente annonce immobilière a été rédigée sous la responsabilité éditoriale de Mme Clémence Alliot mandataire indépendant en immobilier (sans détention de fonds), agent commercial de la SAS I@D France immatriculé au RSAC de LA ROCHE-SUR-YON sous le numéro 892750480, titulaire de la carte de démarchage immobilier pour le compte de la société I@D France SAS.
Informations LOI ALUR :
Soumis au régime de copropriété.
Nombre de lots : 66.
Quote part annuelle(moyenne) : 1200 euros.
Honoraires charge vendeur. (gedeon_6727_32150278)
Voir plus

Référence: 1884926
Bien en copropriété. Nombre de lots : 66. Charges de copropriété : 1200 €.
Honoraires à la charge du vendeur.
DPE
A
B
C
D
E
F
G
GES
A
B
C
D
E
F
G

Prêt immobilier

Vous souhaitez connaître votre capacité d’emprunt et trouver le meilleur crédit immobilier ?
Réaliser une simulation gratuite

Photo 1 - Appartement à L'ILE-D'OLONNE
Photo 1
Photo 2 - Appartement à L'ILE-D'OLONNE
Photo 2
Photo 3 - Appartement à L'ILE-D'OLONNE
Photo 3
Photo 4 - Appartement à L'ILE-D'OLONNE
Photo 4
Photo 5 - Appartement à L'ILE-D'OLONNE
Photo 5
Photo 6 - Appartement à L'ILE-D'OLONNE
Photo 6
Photo 7 - Appartement à L'ILE-D'OLONNE
Photo 7
Photo 8 - Appartement à L'ILE-D'OLONNE
Photo 8
Ce site est protégé par reCAPTCHA la Politique de confidentialité et les Conditions d’utilisation de Google s’appliquent.
Obtenir un prêt immobilier au meilleur taux ?

En poursuivant votre navigation sans modifier vos paramètres, vous acceptez l'utilisation de cookies susceptibles de réaliser des statistiques de visite. Cliquez ici pour plus d'informations