Bénéficiez des services de nos partenaires locaux soigneusement sélectionnés
pour vous accompagner dans votre parcours d'achat immobilier

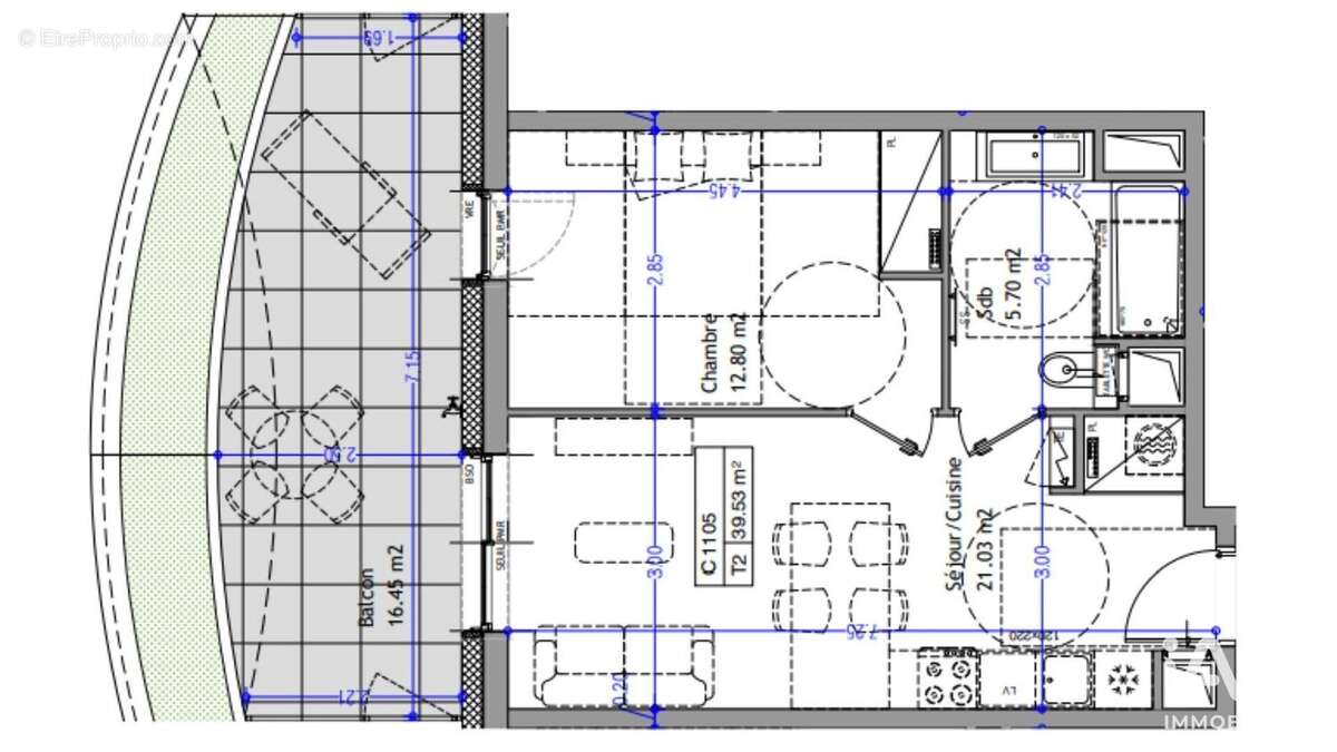
Appartement 40m² à aix-les-bains

— Aix-Les-Bains 73100 —
359 900 €
40 m²
2 pièces
parkingbalcon/terrasseascenseur

Nos partenaires locaux
Iad France - Pierre Magerand ([Coordonnées masquées]) vous propose : Appartement T2 avec balcon à Aix-les-Bains.

Venez découvrir ce T2 d'exception niché au 11 ème étage des Nouveaux Thermes, un lieu chargé d'histoire, d'élégance et de renouveau.
Ce 2 pièces de 40 m² environ offre un séjour-cuisine lumineux, prolongé par un balcon de 16 m² environ. Il se compose d'une chambre confortable, d'une salle d'eau moderne, et se complète par un box privatif.

Une architecture d'avant-garde. Un art de vivre incomparable.

Sur la prestigieuse Place Maurice Mollard, cOEur historique d'Aix-les-Bains, découvrez une adresse qui ne ressemble à aucune autre : Les Nouveaux Thermes, renaissance contemporaine d'un site thermal majeur de la ville. Ici, l'histoire millénaire des eaux aixoises s'unit à la créativité du visionnaire Vincent Callebaut, architecte internationalement reconnu pour son architecture biomimétique, poétique et profondément écologique.

La signature d'un architecte de renommée mondiale :
Imaginées par Vincent Callebaut Architectures, les nouvelles résidences émergent avec légèreté du socle thermal historique : deux silhouettes sculpturales, ondulantes, habillées de végétation et baignées de lumière naturelle.

Architecte belge de stature internationale, Vincent Callebaut est reconnu pour son approche pionnière mêlant nature, technologie et durabilité. Ses projets s'inspirent du vivant : courbes organiques, façades végétalisées, matériaux durables, symbiose entre architecture et biodiversité.

Une OEuvre à la croisée du passé et du futur :
Les appartements s'ouvrent sur de vastes terrasses végétalisées, véritables respirations suspendues face au lac du Bourget, au Revard et à la Dent du Chat. Les intérieurs, magnifiés par de grandes baies vitrées, offrent une qualité de lumière exceptionnelle et cette sensation rare d'habiter à la fois la ville, la nature et le paysage.

Une résidence durable et innovante :
- Chauffage et rafraîchissement par géothermie, puisant directement son énergie dans la source historique d'Aix-les-Bains.
- Conception répondant aux normes environnementales les plus exigeantes.
- Façades végétalisées entretenues par des jardiniers professionnels.
- Parties communes sublimées par le réemploi des vitraux sérigraphiés patrimoniaux.
- Architecture pensée pour réduire l'empreinte carbone et augmenter le confort thermique.

Depuis la Place Maurice Mollard, vous profitez d'un accès immédiat à la vie aixoise : commerces, gastronomie, culture, gare, animations, parcs et activités thermales. Un emplacement exceptionnel où se conjuguent patrimoine, nature, élégance et modernité.

N'hésitez pas à me contacter pour plus d'informations ou pour un accompagnement sur mesure.

Honoraires d'agence à la charge du vendeur. Bien non soumis au DPE. Les informations sur les risques auxquels ce bien est exposé sont disponibles sur le site Géorisques : www.georisques.gouv.fr. La présente annonce immobilière a été rédigée sous la responsabilité éditoriale de M. Pierre Magerand EI (ID 86098), mandataire indépendant en immobilier (sans détention de fonds), agent commercial de la SAS I@D France immatriculé au RSAC de Cusset sous le numéro 938729175, titulaire de la carte de démarchage immobilier pour le compte de la société I@D France SAS.
Retrouvez tous nos biens sur notre site internet. www.iadfrance.fr.
Informations LOI ALUR :
Honoraires charge vendeur. (gedeon_6727_32150445)
Voir plus

Référence: 1885883-6
Honoraires à la charge du vendeur.

Prêt immobilier

Vous souhaitez connaître votre capacité d’emprunt et trouver le meilleur crédit immobilier ?
Réaliser une simulation gratuite

Photo 1 - Appartement à AIX-LES-BAINS
Photo 1
Photo 2 - Appartement à AIX-LES-BAINS
Photo 2
Photo 3 - Appartement à AIX-LES-BAINS
Photo 3
Photo 4 - Appartement à AIX-LES-BAINS
Photo 4
Photo 5 - Appartement à AIX-LES-BAINS
Photo 5
Photo 6 - Appartement à AIX-LES-BAINS
Photo 6
Photo 7 - Appartement à AIX-LES-BAINS
Photo 7
Photo 8 - Appartement à AIX-LES-BAINS
Photo 8
Photo 9 - Appartement à AIX-LES-BAINS
Photo 9
Ce site est protégé par reCAPTCHA la Politique de confidentialité et les Conditions d’utilisation de Google s’appliquent.
Obtenir un prêt immobilier au meilleur taux ?

En poursuivant votre navigation sans modifier vos paramètres, vous acceptez l'utilisation de cookies susceptibles de réaliser des statistiques de visite. Cliquez ici pour plus d'informations