Authentique bastide de 1906 rénovée entre merlimont-village et merlimont-plage

— Merlimont 62155 —
499 800 €
217 m² / 1 334 m²
8 pièces
balcon/terrassejardin

Découvrez cette magnifique maison de caractère datant de 1906, ancienne bastide ayant autrefois abrité un estaminet, entièrement rénovée avec des matériaux de qualité. Elle a su conserver ses volumes généreux, son cachet d’origine et son charme intemporel, tout en offrant le confort moderne d’aujourd’hui.
Une situation idéale
Située entre Merlimont-Village et Merlimont-Plage, à seulement 5 minutes en voiture du bord de mer, cette propriété bénéficie d’un environnement verdoyant sur un terrain arboré de 1 334 m2, piscinable et exposé Sud-Ouest-Nord.
Des espaces de vie spacieux 
Au rez-de-chaussée :


Un vaste salon-séjour avec cheminée à insert bois, idéal pour les soirées conviviales.


Un espace salle à manger plein de charme.


Une cuisine séparée haut de gamme, entièrement équipée.


Un petit salon pouvant servir de chambre supplémentaire ou de bureau.


Une salle de bains avec baignoire et douche.


Un WC indépendant.


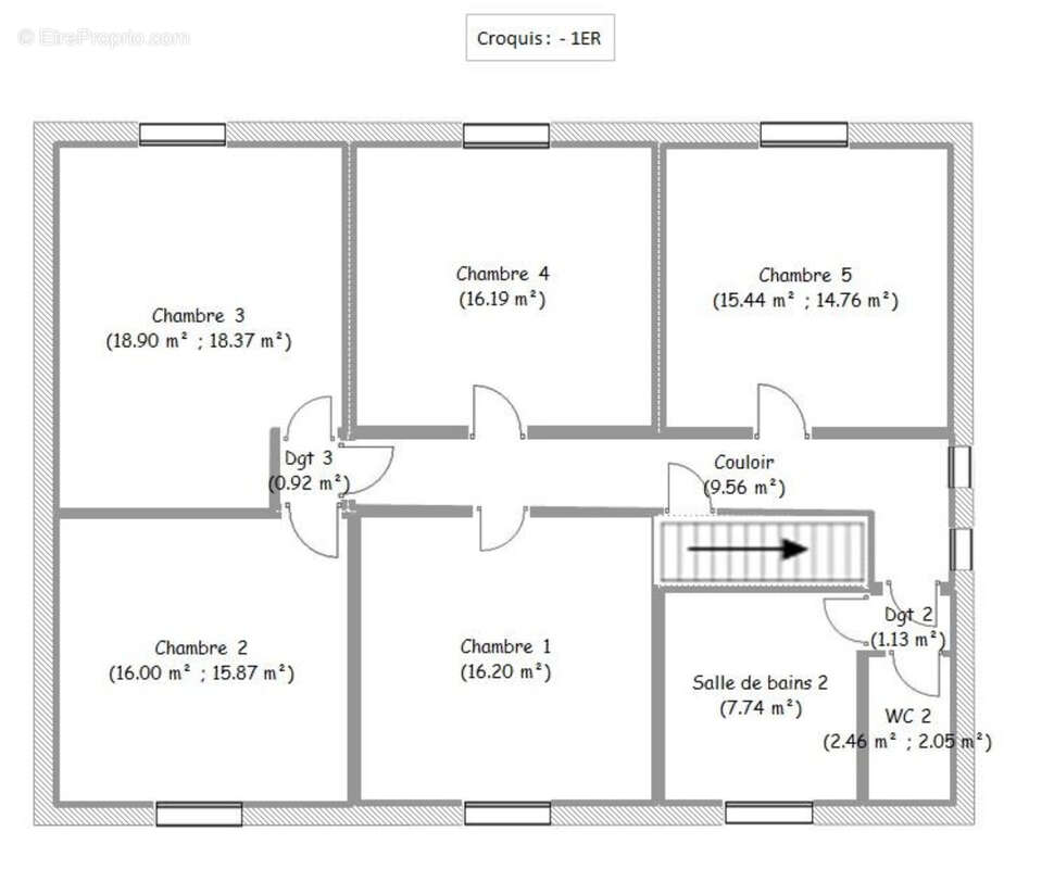
Un étage dédié à la quiétude
À l’étage, vous découvrirez cinq grandes chambres (de 15 à 20 m2), avec parquet d’origine, nombreux rangements et hauteur sous plafond remarquable. L’alliance parfaite du cachet de l’ancien et de la modernité.
Des espaces annexes à fort potentiel


Grenier aménageable de 117 m2, offrant de multiples possibilités selon vos besoins.


Grande cave sur toute la superficie de la maison (hauteur sous plafond : 1,75 m), avec arrivée d’eau et électricité, idéale pour une buanderie ou un atelier.


Véranda attenante à rénover.


Dépendance/garage pouvant être transformée en habitation complémentaire.


Terrasse en bois plein sud, parfaite pour profiter du jardin.


Travaux récents et prestations
Porte d’entrée, salle de bain, WC, volets roulants, révision de toiture et électricité refaits récemment. Les matériaux utilisés sont de qualité, garantissant un confort durable.
Un bien rare et authentique
Cette demeure au charme unique offre une grande capacité d’accueil, idéale comme résidence familiale ou pour un projet locatif saisonnier. Son histoire, son cachet et ses volumes en font un bien d’exception, particulièrement recherché dans le secteur.
Un véritable havre de paix entre village et mer, alliant authenticité et modernité.
Voir plus

Référence: MG672
Barème des honoraires
DPE
A
B
C
D
E
F
G
GES
A
B
C
D
E
F
G

Prêt immobilier

Vous souhaitez connaître votre capacité d’emprunt et trouver le meilleur crédit immobilier ?
Réaliser une simulation gratuite

Maison à MERLIMONT
Maison à MERLIMONT
Maison à MERLIMONT
Maison à MERLIMONT
Maison à MERLIMONT
Maison à MERLIMONT
Maison à MERLIMONT
Maison à MERLIMONT
Maison à MERLIMONT
Maison à MERLIMONT
Maison à MERLIMONT
Maison à MERLIMONT
Maison à MERLIMONT
Maison à MERLIMONT
Maison à MERLIMONT
Maison à MERLIMONT
Maison à MERLIMONT
Maison à MERLIMONT
Maison à MERLIMONT
Maison à MERLIMONT
Maison à MERLIMONT
Maison à MERLIMONT
Maison à MERLIMONT
Maison à MERLIMONT
Maison à MERLIMONT
Maison à MERLIMONT
Maison à MERLIMONT
Maison à MERLIMONT
Maison à MERLIMONT
Maison à MERLIMONT
Maison à MERLIMONT
Ce site est protégé par reCAPTCHA la Politique de confidentialité et les Conditions d’utilisation de Google s’appliquent.
Obtenir un prêt immobilier au meilleur taux ?

En poursuivant votre navigation sans modifier vos paramètres, vous acceptez l'utilisation de cookies susceptibles de réaliser des statistiques de visite. Cliquez ici pour plus d'informations