Exclusivite a vendre saint renan maison t6 159m² 3 chambres possibilite 4 parfait etat

— Saint-Renan 29290 —
367 000 €
159 m² / 572 m²
5 pièces
balcon/terrassejardin

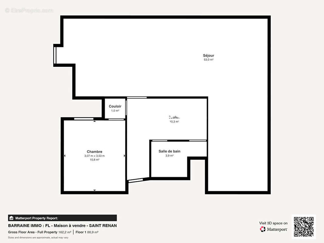
Exclusivité BARRAINE IMMO, A VENDRE - Saint-Renan - ref : PZ00289-FL Idéalement située dans un quartier recherché, cette belle maison familiale de 159 m² habitables, en parfait état d'entretien, offre un cadre de vie agréable et fonctionnel à proximité immédiate du centre et des commodités. Elle se compose, au rez-de-chaussée, d'une entrée, d'un vaste séjour-salon avec cuisine ouverte d'environ 53 m², particulièrement lumineux grâce à ses larges ouvertures donnant sur une terrasse de plain-pied. Cet espace de vie bénéficie d'un poêle à granules, apportant chaleur et convivialité pour les soirées d'hiver. Vous trouverez également à ce niveau une chambre avec point d'eau, une salle d'eau et un WC indépendant, offrant ainsi une vie de plain-pied rare sur le secteur. L'étage dessert une mezzanine pouvant faire office de bureau ou d'espace détente, ainsi que deux grandes chambres possibilité de créer une quatrième chambre, dont l'une profite d'un superbe dressing aménagé. Côté pratique, la maison dispose de nombreux espaces complémentaires : un garage aménagé en pièce supplémentaire, une buanderie et un cabanon extérieur d'environ 15 m², idéal pour le rangement ou le bricolage. Le chauffage est assuré par des radiateurs électriques individuels (programmable) et le poêle à bois, dans une maison bien isolée, offrant un excellent confort thermique en toute saison. Cette maison a toujours été soigneusement entretenue, reflétant le soin constant apporté par ses propriétaires. Le DPE est classé D, avec une revalorisation en C prévue au 1er janvier 2026 (estimation ADEME). Une maison lumineuse, confortable et accueillante, où il fait bon vivre toute l'année. (4.86 % honoraires TTC à la charge de l'acquéreur.)
Voir plus

Référence: PZ00289
Honoraires d'agence de 4.86% à la charge de l'acquéreur
DPE
A
B
C
D
E
F
G
GES
A
B
C
D
E
F
G

Prêt immobilier

Vous souhaitez connaître votre capacité d’emprunt et trouver le meilleur crédit immobilier ?
Réaliser une simulation gratuite

Maison à SAINT-RENAN
Maison à SAINT-RENAN
Maison à SAINT-RENAN
Maison à SAINT-RENAN
Maison à SAINT-RENAN
Maison à SAINT-RENAN
Maison à SAINT-RENAN
Maison à SAINT-RENAN
Maison à SAINT-RENAN
Maison à SAINT-RENAN
Maison à SAINT-RENAN
Maison à SAINT-RENAN
Maison à SAINT-RENAN
Maison à SAINT-RENAN
Maison à SAINT-RENAN
Maison à SAINT-RENAN
Maison à SAINT-RENAN
Maison à SAINT-RENAN
Maison à SAINT-RENAN
Maison à SAINT-RENAN
Ce site est protégé par reCAPTCHA la Politique de confidentialité et les Conditions d’utilisation de Google s’appliquent.
Obtenir un prêt immobilier au meilleur taux ?

En poursuivant votre navigation sans modifier vos paramètres, vous acceptez l'utilisation de cookies susceptibles de réaliser des statistiques de visite. Cliquez ici pour plus d'informations