Bénéficiez des services de nos partenaires locaux soigneusement sélectionnés
pour vous accompagner dans votre parcours d'achat immobilier

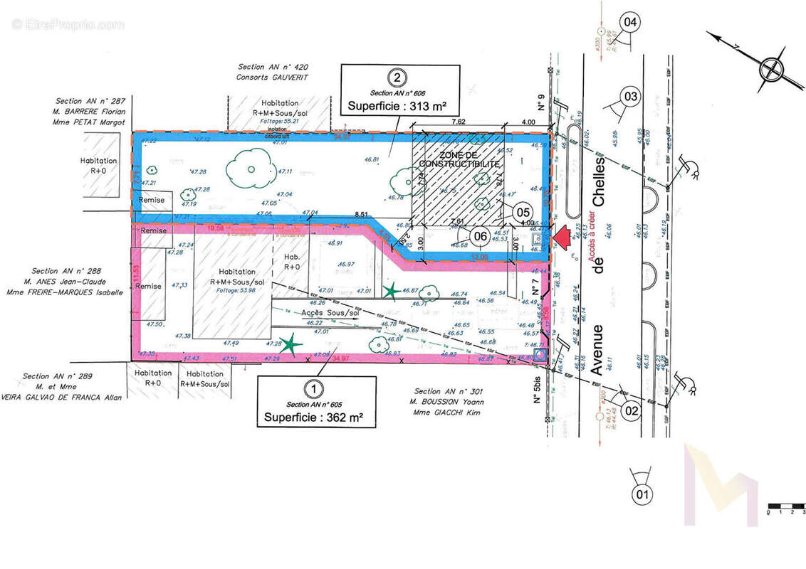
Terrain à vendre à neuilly sur marne - référence 3589

— Neuilly-Sur-Marne 93330 —
187 250 €
313 m²
jardin

Nos partenaires locaux
A la limite de Gagny, dans l'agréable quartier pavillonnaire de l'Avenir , découvrez ce terrain constructible de 313 m². Permis de construire validé pour une maison ( plan sur demande) Vous profiterez d'un cadre de vie paisible, à deux pas du Parc du Croissant Vert, un lieu de promenade prisé pour ses grands espaces et sa nature. Toutes les commodités sont facilement accessibles : écoles, commerces, transports et services de proximité, offrant ainsi un confort de vie au quotidien. La gare RER E de Gagny se trouve à seulement 18 minutes à pied, facilitant vos déplacements vers Paris et les environs.
Voir plus

Référence: 3589
Honoraires à la charge du vendeur.
Barème des honoraires

Prêt immobilier

Vous souhaitez connaître votre capacité d’emprunt et trouver le meilleur crédit immobilier ?
Réaliser une simulation gratuite

Terrain à NEUILLY-SUR-MARNE
Terrain à NEUILLY-SUR-MARNE
Terrain à NEUILLY-SUR-MARNE
Terrain à NEUILLY-SUR-MARNE
Ce site est protégé par reCAPTCHA la Politique de confidentialité et les Conditions d’utilisation de Google s’appliquent.
Obtenir un prêt immobilier au meilleur taux ?

En poursuivant votre navigation sans modifier vos paramètres, vous acceptez l'utilisation de cookies susceptibles de réaliser des statistiques de visite. Cliquez ici pour plus d'informations