Bénéficiez des services de nos partenaires locaux soigneusement sélectionnés
pour vous accompagner dans votre parcours d'achat immobilier

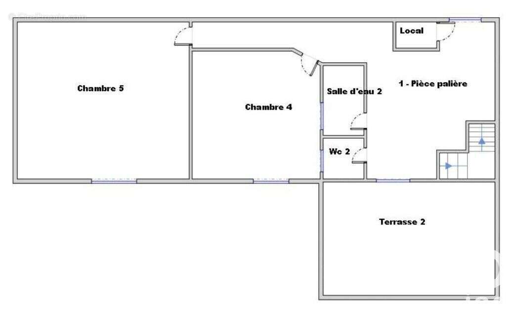
Appartement 148m² à les cheres

— Les Cheres 69380 —
295 000 €
148 m²
4 pièces

Nos partenaires locaux
Iad France - Chloé Jaillet vous propose : Spécial investisseurs, découvrez cette maison offrant un potentiel unique et une excellente rentabilité locative. Idéalement située à proximité immédiate de l'autoroute, elle constitue une opportunité rare sur le secteur!

Le rez-de-chaussée accueille un agréable T4 lumineux et bien agencé, parfait pour une famille. L'étage propose un T3 avec accès totalement indépendant. Il suffit simplement d'installer une cuisine et de finaliser la séparation des deux logements pour bénéficier de deux habitations parfaitement autonomes.

Les avantages de ce bien sont nombreux : très faibles charges de copropriété grâce à l'absence de parties communes, deux places de stationnements dans la cour pour un confort assuré, et surtout la possibilité de proposer deux logements attractifs sur le marché locatif, garantissant une rentabilité solide et pérenne.

Ce bien s'adresse aux investisseurs à la recherche d'un projet simple à mettre en OEuvre, avec un retour sur investissement rapide et durable.
Une opportunité à ne pas manquer.

La presente annonce immobiliere vise 1 lot situé dans une copropriété de 3 lots au total et ne faisant l'objet d'aucune procédure en cours citée à l'article L. 721-1 du code de la construction et de l'habitation. Montant moyen mensuel de charges déclaré par le vendeur : 0¤ par mois (soit 0 ¤ annuel). Honoraires d'agence à la charge du vendeur.
Information d'affichage énergétique sur ce bien : classe ENERGIE C indice 135 et classe CLIMAT C indice 4. Les informations sur les risques auxquels ce bien est exposé, y compris l'obligation légale de débroussaillement, sont disponibles sur le site Géorisques : http://www.georisques.gouv.fr.
La présente annonce immobilière a été rédigée sous la responsabilité éditoriale de Mme Chloé Jaillet mandataire indépendant en immobilier (sans détention de fonds), agent commercial de la SAS I@D France immatriculé au RSAC de LYON sous le numéro 892694704, titulaire de la carte de démarchage immobilier pour le compte de la société I@D France SAS.
Informations LOI ALUR :
Soumis au régime de copropriété.
Nombre de lots : 3.
Honoraires charge vendeur. (gedeon_6727_32155409)
Voir plus

Référence: 1864620
Bien en copropriété. Nombre de lots : 3.
Honoraires à la charge du vendeur.
DPE
A
B
C
D
E
F
G
GES
A
B
C
D
E
F
G

Prêt immobilier

Vous souhaitez connaître votre capacité d’emprunt et trouver le meilleur crédit immobilier ?
Réaliser une simulation gratuite

Photo 1 - Appartement à LES CHERES
Photo 1
Photo 2 - Appartement à LES CHERES
Photo 2
Photo 3 - Appartement à LES CHERES
Photo 3
Ce site est protégé par reCAPTCHA la Politique de confidentialité et les Conditions d’utilisation de Google s’appliquent.
Obtenir un prêt immobilier au meilleur taux ?

En poursuivant votre navigation sans modifier vos paramètres, vous acceptez l'utilisation de cookies susceptibles de réaliser des statistiques de visite. Cliquez ici pour plus d'informations