Bénéficiez des services de nos partenaires locaux soigneusement sélectionnés
pour vous accompagner dans votre parcours d'achat immobilier

Appartement 85m² à paris-19e

— Paris-19e 75019 —
699 000 €
85 m²
4 pièces

Nos partenaires locaux
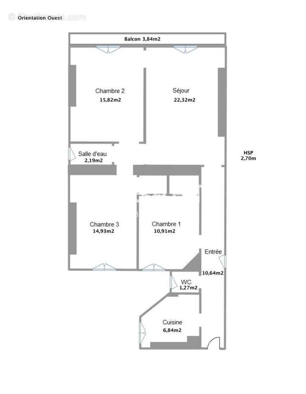
À deux pas de la Philharmonie de Paris et du parc de la Villette, cet élégant appartement traversant de 85 m², situé au 5 ? étage d'un bel immeuble ancien, séduit par sa lumière et son charme d'époque. Parquet ancien, moulures, cheminées et belle hauteur sous plafond de 2,70 m lui confèrent une authenticité rare. Le séjour offre une vue dégagée sur le parc, tandis que les trois chambres, dont deux sur cour, garantissent un calme absolu. Une cuisine aménagée, une salle de douche rénovée et des toilettes séparées complètent ce bien harmonieux. Le couloir central, propice à l'installation d'une bibliothèque, relie élégamment les pièces. À noter : un projet d'installation d'ascenseur est à l'étude dans la copropriété, apportant une valeur ajoutée certaine. Un appartement lumineux et plein de caractère, idéalement situé dans un quartier culturel et en pleine évolution.

Le bien comprend 1 lot, et il est situé dans une copropriété de 19 lots (les charges courantes annuelles moyennes de copropriété sont de 2000 ¤ et le syndicat des copropriétaires ne fait pas l'objet d'une procédure citée à l'article L. 721-1 du code de la construction et de l'habitation).

Les informations sur les risques auxquels ce bien est exposé sont disponibles sur le site Géorisques : www.georisques.gouv.fr
Prix de vente : 699 000 ¤
Honoraires charge vendeur

Contactez votre conseiller SAFTI : Annie LEANG, Tél. : [Coordonnées masquées], E-mail : [Coordonnées masquées] - EI - Agent commercial immatriculé au RSAC de BOBIGNY sous le numéro 495 404 949.
Informations LOI ALUR :
Soumis au régime de copropriété.
Nombre de lots : 19.
Quote part annuelle(moyenne) : 2000 euros.
Honoraires charge vendeur. (gedeon_26118_32155547)
Voir plus

Référence: 757685
Bien en copropriété. Nombre de lots : 19. Charges de copropriété : 2000 €.
Honoraires à la charge du vendeur.
Barème des honoraires
DPE
A
B
C
D
E
F
G
GES
A
B
C
D
E
F
G

Prêt immobilier

Vous souhaitez connaître votre capacité d’emprunt et trouver le meilleur crédit immobilier ?
Réaliser une simulation gratuite

Photo 1 - Appartement à PARIS-19E
Photo 1
Photo 2 - Appartement à PARIS-19E
Photo 2
Photo 3 - Appartement à PARIS-19E
Photo 3
Photo 4 - Appartement à PARIS-19E
Photo 4
Photo 5 - Appartement à PARIS-19E
Photo 5
Photo 6 - Appartement à PARIS-19E
Photo 6
Photo 7 - Appartement à PARIS-19E
Photo 7
Ce site est protégé par reCAPTCHA la Politique de confidentialité et les Conditions d’utilisation de Google s’appliquent.
Obtenir un prêt immobilier au meilleur taux ?

En poursuivant votre navigation sans modifier vos paramètres, vous acceptez l'utilisation de cookies susceptibles de réaliser des statistiques de visite. Cliquez ici pour plus d'informations