Bénéficiez des services de nos partenaires locaux soigneusement sélectionnés
pour vous accompagner dans votre parcours d'achat immobilier

Appartement 42m² à fontaine-les-dijon

— Fontaine-Les-Dijon 21121 —
195 000 €
43 m²
2 pièces
parkingbalcon/terrasse

Nos partenaires locaux
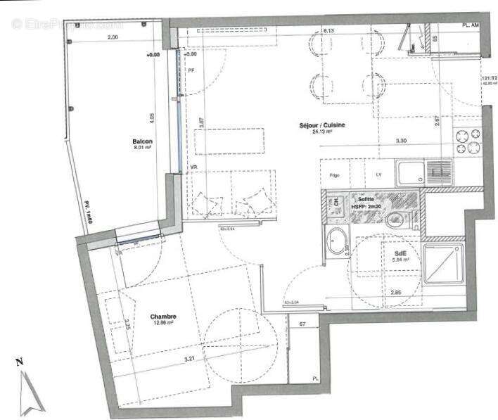
FONTAINE LES DIJON - Future résidence : Les Saffres d'or, vente sur plan d'un appartement T2 de 42 m², situé dans un quartier recherché. Ce logement parfaitement agencé comprend une belle pièce de vie de 24 m², une chambre spacieuse de 12 m², une salle d'eau moderne, ainsi qu'un balcon de 8 m² idéal pour profiter des beaux jours. Un garage en sous-sol complète ce bien. Ce bien est idéal pour un primo-accédant, avec la possibilité de bénéficier du Prêt à Taux Zéro, permettant de réduire les mensualités. Il convient également parfaitement à un investisseur, grâce à son emplacement stratégique et sa forte attractivité locative. Les travaux viennent de démarrer, livraison prévue fin 2026.

Honoraires à la charge du vendeur. Dans une copropriété de 50 lots. Aucune procédure n'est en cours. DPE vierge. Les informations sur les risques auxquels ce bien est exposé sont disponibles sur le site Géorisques : georisques.gouv.fr.
Voir plus

Référence: 4691-BELOTTI
Bien en copropriété. Nombre de lots : 50.
Honoraires à la charge du vendeur.
Barème des honoraires

Prêt immobilier

Vous souhaitez connaître votre capacité d’emprunt et trouver le meilleur crédit immobilier ?
Réaliser une simulation gratuite

Appartement à FONTAINE-LES-DIJON
Appartement à FONTAINE-LES-DIJON
Appartement à FONTAINE-LES-DIJON
Appartement à FONTAINE-LES-DIJON
Ce site est protégé par reCAPTCHA la Politique de confidentialité et les Conditions d’utilisation de Google s’appliquent.
Obtenir un prêt immobilier au meilleur taux ?

En poursuivant votre navigation sans modifier vos paramètres, vous acceptez l'utilisation de cookies susceptibles de réaliser des statistiques de visite. Cliquez ici pour plus d'informations