Maison à agencourt

— Agencourt 21700 —
349 500 €
balcon/terrassejardin

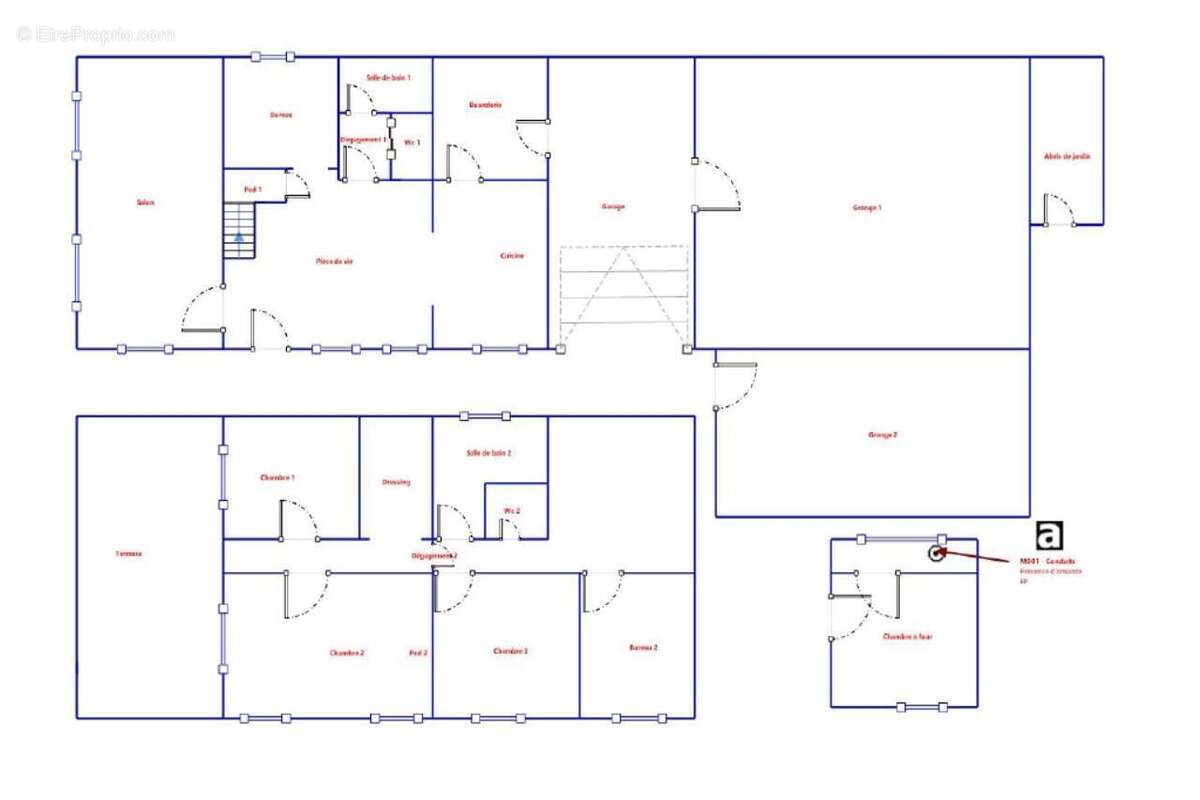
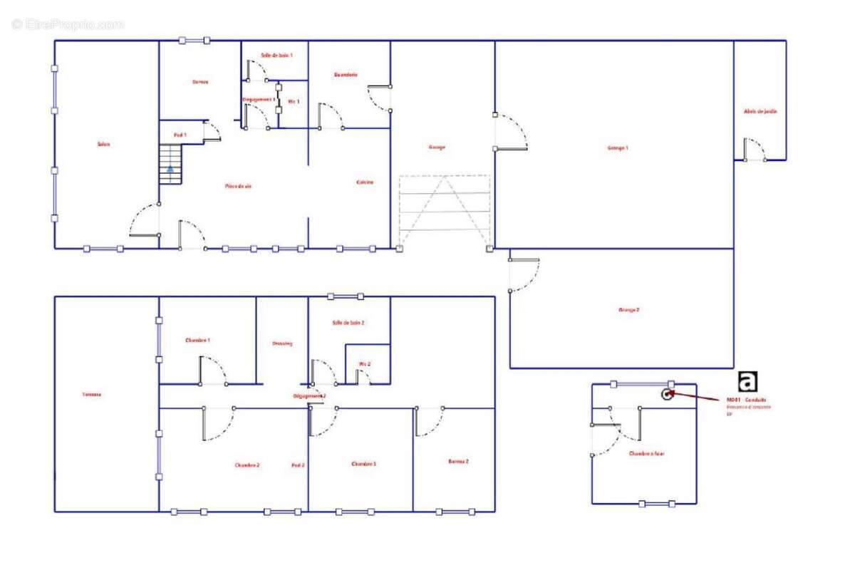
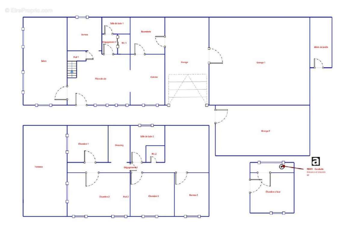
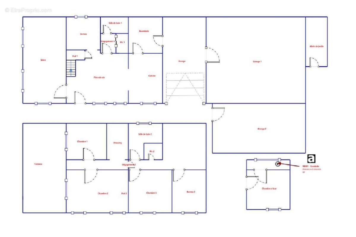
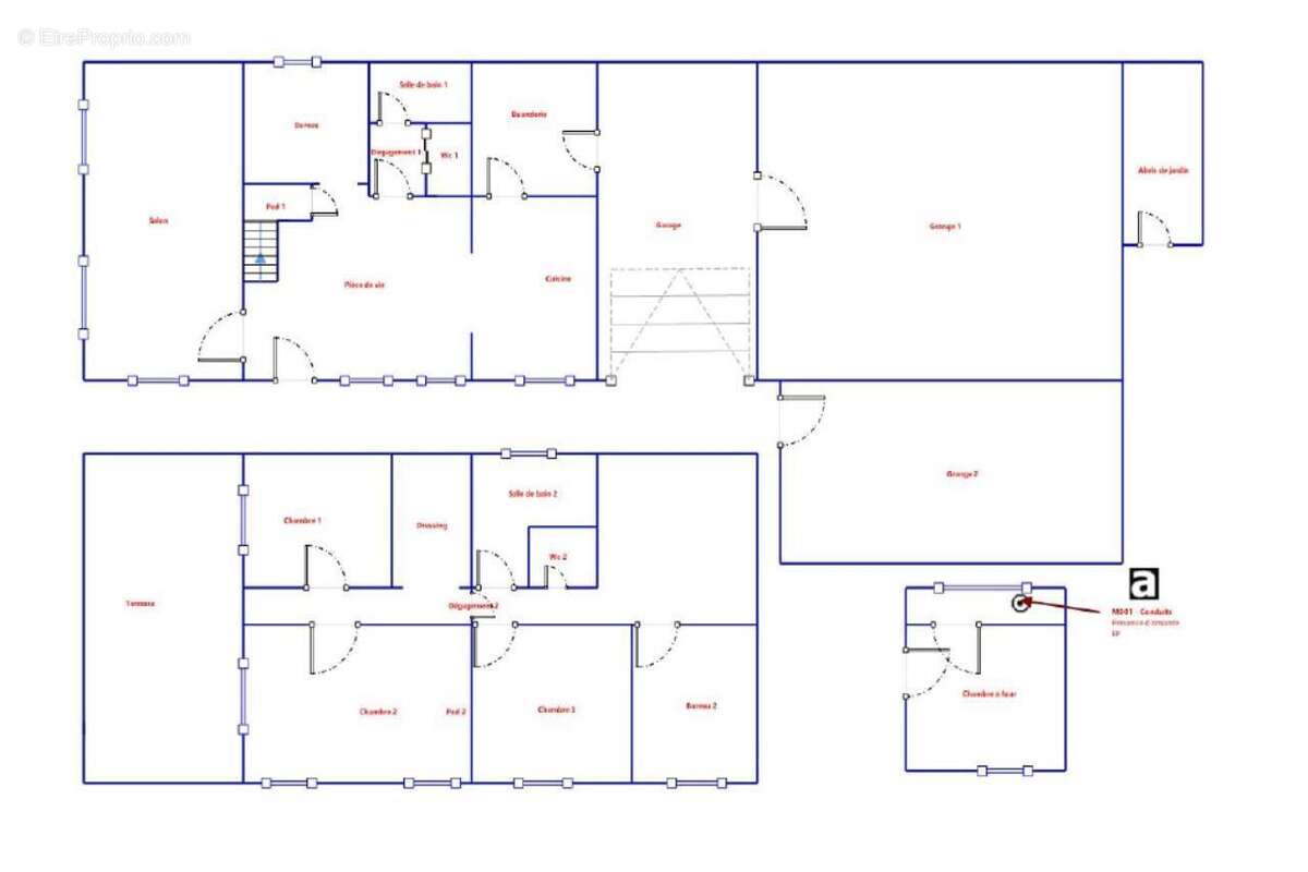
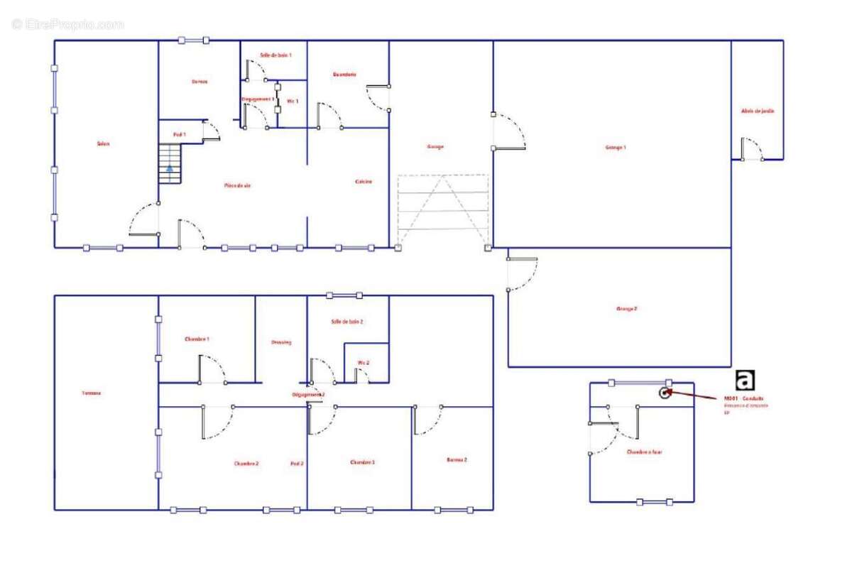
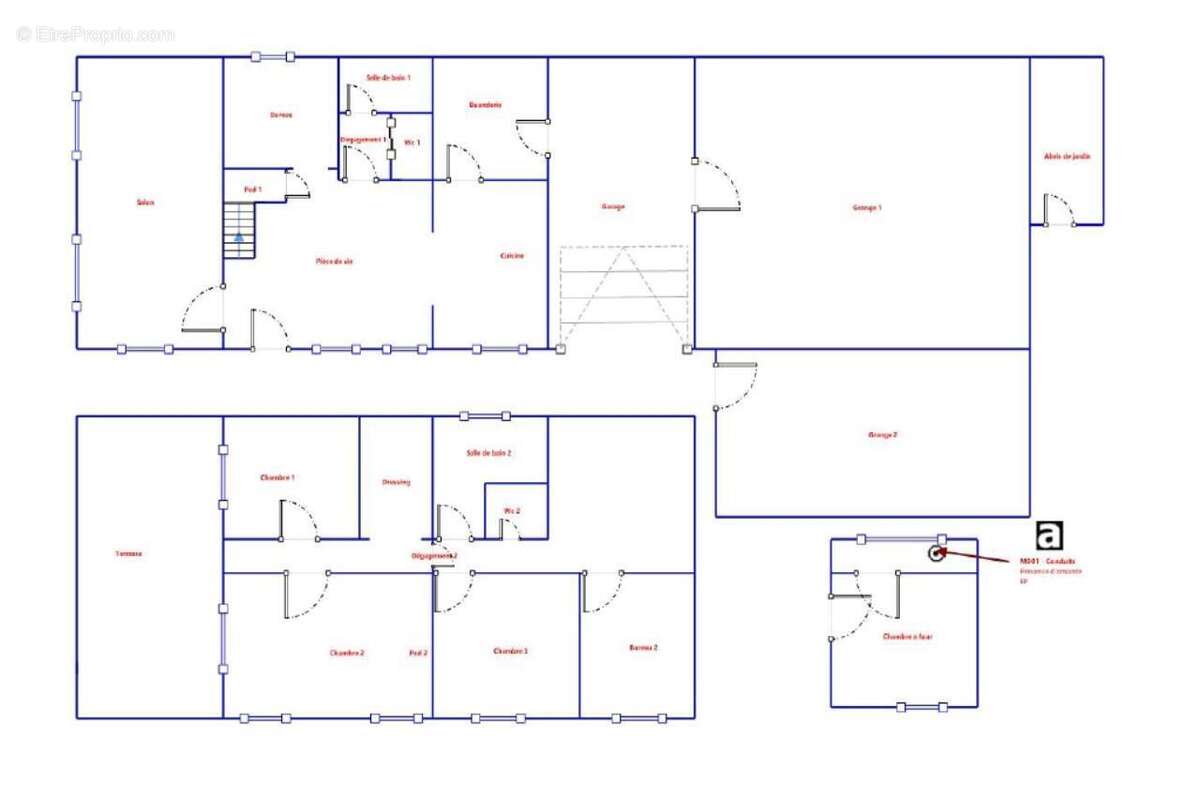
Située à quelques minutes de Nuits-Saint-Georges et à 20 min de Dijon, cette ancienne ferme en pierre d’environ 154 m² séduit par son authenticité et son fort potentiel.
Elle comprend un séjour avec cuisine ouverte, un salon, un bureau, une salle d’eau avec WC et une buanderie/chaufferie.
À l’étage : 4 chambres, dont 2 avec accès terrasse, une salle de bains et un second WC.
Sous-sol, cave et garage complètent le tout.
Sur une parcelle de 936 m², plusieurs dépendances (grange, écurie, bâtisse avec chambre à four) offrent de belles possibilités de réhabilitation.
Idéale pour un projet familial, une résidence secondaire ou une activité touristique (gîte, chambres d’hôtes…).
DPE réalisé le 18 juillet 2025, classe énergie C GES A, Chauffage par pompe à chaleur , Montant estimé des dépenses annuelles d'énergie pour un usage standard : entre 1750 € et 2410 par an, prix moyens des énergies indexés sur les années 2021, 2022, 2023 abonnements compris. Prix du bien :349500€ ""honoraires d'agence inclus à la charge du vendeur"" RESERVOIR IMMO DIJON PRESTIGE 66 rue Monge 21000 DIJON. SIREN 840 919 765 Renseignements et visites Sylvie PERALBA 0. 6 75 98 35 38 agent commercial 849756309 Les informations sur les risques auxquels ce bien est exposé sont disponibles sur le site Géorisques : www.georisques.gouv.fr Notre barème d'honoraires est consultable à l’adresse suivante : https://www.reservoirimmo.fr/tarifs-et-honoraires.html


Voir plus

Référence: 3955b
Honoraires à la charge du vendeur.
DPE
A
B
C
D
E
F
G
GES
A
B
C
D
E
F
G

Prêt immobilier

Vous souhaitez connaître votre capacité d’emprunt et trouver le meilleur crédit immobilier ?
Réaliser une simulation gratuite

Maison à AGENCOURT
Maison à AGENCOURT
Maison à AGENCOURT
Maison à AGENCOURT
Maison à AGENCOURT
Maison à AGENCOURT
Maison à AGENCOURT
Maison à AGENCOURT
Maison à AGENCOURT
Maison à AGENCOURT
Maison à AGENCOURT
Maison à AGENCOURT
Maison à AGENCOURT
Maison à AGENCOURT
Maison à AGENCOURT
Maison à AGENCOURT
Maison à AGENCOURT
Maison à AGENCOURT
Maison à AGENCOURT
Maison à AGENCOURT
Maison à AGENCOURT
Maison à AGENCOURT
Maison à AGENCOURT
Maison à AGENCOURT
Maison à AGENCOURT
Maison à AGENCOURT
Maison à AGENCOURT
Maison à AGENCOURT
Maison à AGENCOURT
Maison à AGENCOURT
Maison à AGENCOURT
Maison à AGENCOURT
Maison à AGENCOURT
Maison à AGENCOURT
Maison à AGENCOURT
Maison à AGENCOURT
Maison à AGENCOURT
Maison à AGENCOURT
Maison à AGENCOURT
Maison à AGENCOURT
Maison à AGENCOURT
Maison à AGENCOURT
Maison à AGENCOURT
Maison à AGENCOURT
Maison à AGENCOURT
Maison à AGENCOURT
Maison à AGENCOURT
Maison à AGENCOURT
Maison à AGENCOURT
Maison à AGENCOURT
Maison à AGENCOURT
Maison à AGENCOURT
Maison à AGENCOURT
Maison à AGENCOURT
Maison à AGENCOURT
Maison à AGENCOURT
Maison à AGENCOURT
Maison à AGENCOURT
Maison à AGENCOURT
Maison à AGENCOURT
Maison à AGENCOURT
Maison à AGENCOURT
Maison à AGENCOURT
Maison à AGENCOURT
Maison à AGENCOURT
Maison à AGENCOURT
Maison à AGENCOURT
Maison à AGENCOURT
Maison à AGENCOURT
Maison à AGENCOURT
Maison à AGENCOURT
Maison à AGENCOURT
Maison à AGENCOURT
Maison à AGENCOURT
Maison à AGENCOURT
Maison à AGENCOURT
Maison à AGENCOURT
Maison à AGENCOURT
Maison à AGENCOURT
Maison à AGENCOURT
Maison à AGENCOURT
Maison à AGENCOURT
Maison à AGENCOURT
Maison à AGENCOURT
Maison à AGENCOURT
Maison à AGENCOURT
Maison à AGENCOURT
Maison à AGENCOURT
Maison à AGENCOURT
Maison à AGENCOURT
Maison à AGENCOURT
Maison à AGENCOURT
Maison à AGENCOURT
Maison à AGENCOURT
Maison à AGENCOURT
Maison à AGENCOURT
Maison à AGENCOURT
Maison à AGENCOURT
Maison à AGENCOURT
Maison à AGENCOURT
Maison à AGENCOURT
Maison à AGENCOURT
Maison à AGENCOURT
Maison à AGENCOURT
Maison à AGENCOURT
Maison à AGENCOURT
Maison à AGENCOURT
Maison à AGENCOURT
Maison à AGENCOURT
Maison à AGENCOURT
Maison à AGENCOURT
Maison à AGENCOURT
Maison à AGENCOURT
Maison à AGENCOURT
Maison à AGENCOURT
Maison à AGENCOURT
Maison à AGENCOURT
Maison à AGENCOURT
Maison à AGENCOURT
Maison à AGENCOURT
Maison à AGENCOURT
Maison à AGENCOURT
Maison à AGENCOURT
Maison à AGENCOURT
Maison à AGENCOURT
Maison à AGENCOURT
Maison à AGENCOURT
Maison à AGENCOURT
Maison à AGENCOURT
Maison à AGENCOURT
Maison à AGENCOURT
Maison à AGENCOURT
Maison à AGENCOURT
Maison à AGENCOURT
Maison à AGENCOURT
Maison à AGENCOURT
Maison à AGENCOURT
Maison à AGENCOURT
Maison à AGENCOURT
Maison à AGENCOURT
Maison à AGENCOURT
Maison à AGENCOURT
Maison à AGENCOURT
Maison à AGENCOURT
Maison à AGENCOURT
Maison à AGENCOURT
Maison à AGENCOURT
Maison à AGENCOURT
Maison à AGENCOURT
Maison à AGENCOURT
Maison à AGENCOURT
Maison à AGENCOURT
Maison à AGENCOURT
Maison à AGENCOURT
Maison à AGENCOURT
Maison à AGENCOURT
Maison à AGENCOURT
Maison à AGENCOURT
Maison à AGENCOURT
Maison à AGENCOURT
Maison à AGENCOURT
Maison à AGENCOURT
Maison à AGENCOURT
Maison à AGENCOURT
Maison à AGENCOURT
Maison à AGENCOURT
Maison à AGENCOURT
Maison à AGENCOURT
Maison à AGENCOURT
Maison à AGENCOURT
Maison à AGENCOURT
Maison à AGENCOURT
Maison à AGENCOURT
Maison à AGENCOURT
Maison à AGENCOURT
Maison à AGENCOURT
Maison à AGENCOURT
Maison à AGENCOURT
Maison à AGENCOURT
Maison à AGENCOURT
Ce site est protégé par reCAPTCHA la Politique de confidentialité et les Conditions d’utilisation de Google s’appliquent.
Obtenir un prêt immobilier au meilleur taux ?

En poursuivant votre navigation sans modifier vos paramètres, vous acceptez l'utilisation de cookies susceptibles de réaliser des statistiques de visite. Cliquez ici pour plus d'informations