Bénéficiez des services de nos partenaires locaux soigneusement sélectionnés
pour vous accompagner dans votre parcours d'achat immobilier

Ensemble immobilier à ottmarsheim

— Ottmarsheim 68490 —
525 000 €
398 m²
15 pièces

Nos partenaires locaux
Ensemble immobilier – Ottmarsheim (Haut-Rhin)
*****
Idéal investisseurs, restaurateurs, hôteliers ou particuliers avec projets de grande envergure !
*****
Surface Carrez : 398,58 m²
Surface au sol : 541,84 m²
Parcelle : 1 347 m² (PLU zone UA – Cadastre 21)
*****
Atouts principaux
Investissement locatif :
Projet de 12 logements habitables après réagencement
Travaux estimés à 1 000 €/m²
Rentabilité brute estimée : 21,45 %
Revenus locatifs annuels prévisionnels : 112 644 €
*****
Projet professionnel : restaurant + logements ou hébergements (chambres d'hôtes, hôtellerie)
*****
Particulier : possibilité de créer une grande propriété bi-famille avec revenus complémentaires
*****
Extension possible : construction de 2 maisons mitoyennes supplémentaires (sous conditions PLU)
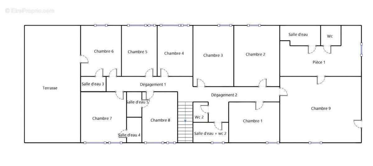
Composition:
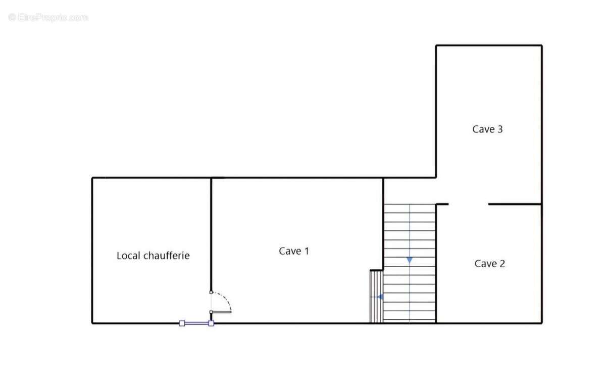
Sous-sol : 3 caves + chaufferie
*****
RDC : possibilité 4 logements PMR ou restaurant + logement / grande pièce de vie
*****
1er étage : 3 logements ou chambres d'hôtes
*****
2ème étage : combles à aménager → 2 duplex possibles
*****
Dépendance : maison de 90 m² à terminer
*****
Localisation:
Commune d'Ottmarsheim, secteur recherché
À 5 min de l'A36
Emplacement stratégique : proche Allemagne, Suisse et Rhin
*****
Marché locatif secteur : 14 à 18 €/m² (base de calcul : 16 €/m²)
******
Opportunité rare pour investisseurs cherchant un immeuble à fort potentiel, restaurateurs ou hôteliers souhaitant implanter un projet ambitieux à la frontière trinational.
*****
Informations complémentaires :
Taxe foncière : 2 715 €
DPE réalisé le : 04/03/2025
Rapport ERP disponible sur demande et sur www.georisques.gouv.fr
Honoraires agence : Charge vendeur
*****
Contact :
Merci de respecter le choix du propriétaire en vous adressant à moi par mail, SMS ou WhatsApp pour un premier échange et prendre rendez-vous.
*****
Pour tout renseignement:
Anaïs Ragona
Votre agent commerciale en immobilier de SAS Immobilier.email-EI
[Coordonnées masquées]
[Coordonnées masquées]
Planifiez votre rendez-vous pour une visite.
RSAC:8[Coordonnées masquées]028
Honoraires d'agence à la charge du vendeur.
Consultez nos tarifs sur le site de Immobilier Email.
Annonce publiée le 04/12/2025 par Anaïs Ragona [Coordonnées masquées], RSAC 802877720 - agent commercial indépendant de IMMOBILIER EMAIL SAS - EI, Tribunal de Commerce de Mulhouse
Voir plus

Référence: fr037282
Honoraires à la charge du vendeur.
Barème des honoraires
DPE
A
B
C
D
E
F
G
GES
A
B
C
D
E
F
G

Prêt immobilier

Vous souhaitez connaître votre capacité d’emprunt et trouver le meilleur crédit immobilier ?
Réaliser une simulation gratuite

Appartement à OTTMARSHEIM
Appartement à OTTMARSHEIM
Appartement à OTTMARSHEIM
Appartement à OTTMARSHEIM
Appartement à OTTMARSHEIM
Appartement à OTTMARSHEIM
Appartement à OTTMARSHEIM
Appartement à OTTMARSHEIM
Appartement à OTTMARSHEIM
Appartement à OTTMARSHEIM
Appartement à OTTMARSHEIM
Appartement à OTTMARSHEIM
Appartement à OTTMARSHEIM
Appartement à OTTMARSHEIM
Ce site est protégé par reCAPTCHA la Politique de confidentialité et les Conditions d’utilisation de Google s’appliquent.
Obtenir un prêt immobilier au meilleur taux ?

En poursuivant votre navigation sans modifier vos paramètres, vous acceptez l'utilisation de cookies susceptibles de réaliser des statistiques de visite. Cliquez ici pour plus d'informations