Bénéficiez des services de nos partenaires locaux soigneusement sélectionnés
pour vous accompagner dans votre parcours d'achat immobilier

Auch – résidence sécurisée avec piscine, à deux pas de la basse ville

— Auch 32000 —
137 000 €
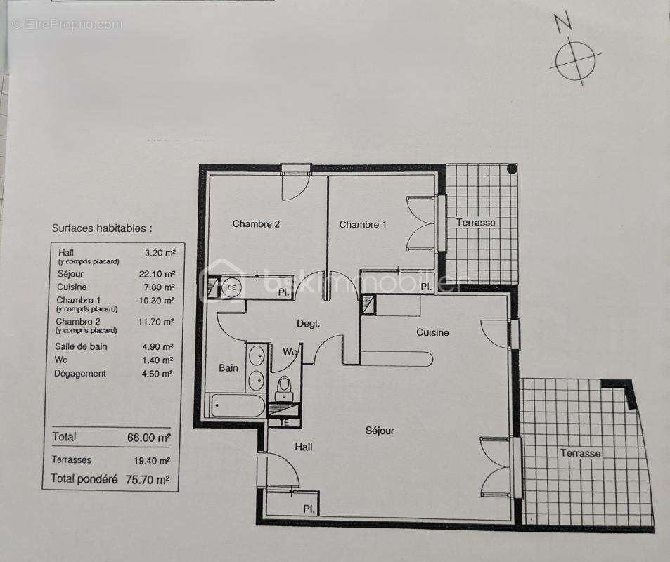
66 m²
3 pièces
parkingbalcon/terrassepiscine

Nos partenaires locaux
Idéalement situé dans un secteur calme et recherché, ce T3 de 66 m² en rez-de-chaussée se trouve dans une agréable résidence avec piscine.
Le bien est vendu loué (revenu locatif : 582 € + 86 € de charges), offrant une belle opportunité d'investissement.

Un intérieur bien pensé

L'appartement se compose d'un séjour avec cuisine ouverte et équipée, de deux chambres disposant de rangements, d'une salle de bain, d'un WC séparé et d'un cellier pratique.
Chaque espace a été conçu pour garantir confort et fonctionnalité au quotidien.

Côté extérieur

L'atout charme : deux terrasses couvertes, accessibles depuis le séjour et l'une des chambres, parfaites pour profiter d'un extérieur abrité en toute saison.
Un garage fermé privatif vient compléter ce bien.

Une adresse paisible et pratique

À seulement quelques minutes du centre et de la basse ville, la résidence bénéficie d'un cadre de vie paisible, tout en restant proche des commerces, écoles et transports.

Les + investisseurs

- Garage fermé + cellier privatif
- Résidence sécurisée avec piscine
- Deux terrasses couvertes
- Locataire sérieuse en place
- Rentabilité stable et placement pérenne

Une opportunité idéale pour un investissement serein et bien situé à Auch.

Cette annonce référence 305223 vous est présentée par votre agent commercial BSK Immobilier CHRISTEL SONET PAMBRUN (EI) immatriculé au RSAC de AUCH (32000) sous le numéro 98118073000013.

Prix du bien : 137 000,00 €
Les honoraires d'agence sont à la charge du vendeur.

A propos de la copropriété :
Pas de procédure en cours.
Nombre de lots : 102
Charges prévisionnelles annuelles : 1 260,00 €

A propos des performances énergétiques :
Date de réalisation du diagnostic énergétique : 29/09/2025
Score DPE : 228 kWhEP/m²/an
Score GES : 7 kgepCO2/m²/an
Montant estimé des dépenses annuelles d'énergie pour un usage standard : entre 1180.00 € et 1650.00 € par an. Prix moyens des énergies indexés sur l'année 2023 (abonnements compris).

Les informations sur les risques auxquels ce bien est exposé sont disponibles sur le site Géorisques : www.georisques.gouv.fr
Voir plus

Référence: 305223_1
Bien en copropriété. Nombre de lots : 102. Charges de copropriété : 105 €.
Honoraires à la charge du vendeur.
DPE
A
B
C
D
E
F
G
GES
A
B
C
D
E
F
G

Prêt immobilier

Vous souhaitez connaître votre capacité d’emprunt et trouver le meilleur crédit immobilier ?
Réaliser une simulation gratuite

Appartement à AUCH
Appartement à AUCH
Appartement à AUCH
Appartement à AUCH
Appartement à AUCH
Appartement à AUCH
Appartement à AUCH
Appartement à AUCH
Appartement à AUCH
Ce site est protégé par reCAPTCHA la Politique de confidentialité et les Conditions d’utilisation de Google s’appliquent.
Obtenir un prêt immobilier au meilleur taux ?

En poursuivant votre navigation sans modifier vos paramètres, vous acceptez l'utilisation de cookies susceptibles de réaliser des statistiques de visite. Cliquez ici pour plus d'informations