Appartement t4 avec terrasse dans une résidence neuve

— Lyon-9e 69009 —
380 000 €
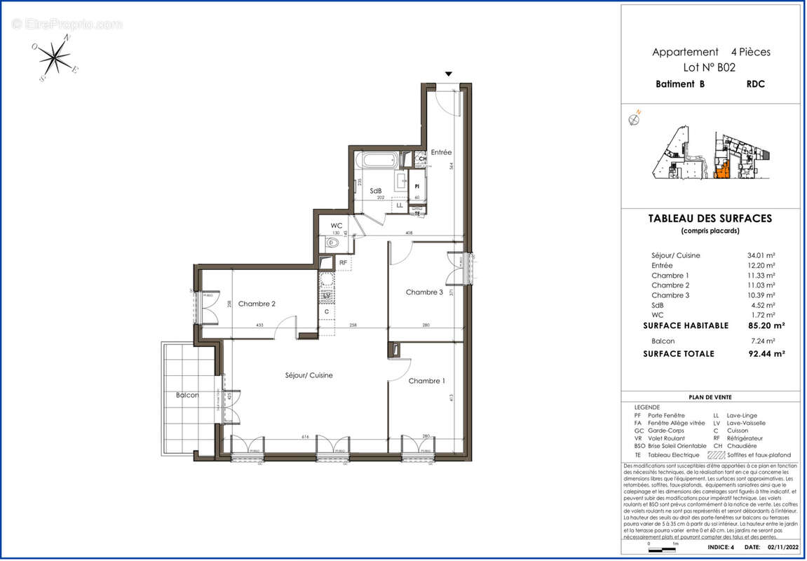
85 m²
4 pièces

À deux pas des quais de Saône, découvrez ce superbe appartement T4 de 86,4 m2, situé en rez-de-chaussée surélevé au sein d’une résidence récente lde 2025.
Vous serez séduit par sa grande pièce de vie lumineuse ouvrant sur une terrasse orientée côté jardin, offrant un cadre verdoyant et paisible. L’espace jour est complété par un coin cuisine prêt à être aménagé selon vos envies.
L’espace nuit comprend trois chambres lumineuses, ainsi qu’une salle de bain spacieuse et fonctionnelle.
Côté prestations, vous profiterez d’un chauffage individuel au gaz, de menuiseries double vitrage, de volets roulants électriques et de finitions modernes garantissant confort et efficacité énergétique.
Un garage double est disponible en supplément.
Situé dans un environnement calme et recherché, cet appartement bénéficie d’une excellente localisation : Commerces et écoles à proximité immédiate, Transports en commun accessibles rapidement (métro D et lignes de bus), Accès direct au centre-ville et aux berges aménagées des quais pour vos balades.
Ce bien rare allie confort, modernité et emplacement stratégique. Il conviendra parfaitement à une famille à la recherche d’un cadre de vie agréable ou à un investisseur souhaitant sécuriser un placement de qualité.
FRAIS DE NOTAIRE OFFERTS Les informations sur les risques auxquelles ce bien est exposé sont disponibles sur le site Géorisques : www.georidques.gouv.fr
Voir plus

Honoraires à la charge du vendeur.
Barème des honoraires
DPE
A
B
C
D
E
F
G
GES
A
B
C
D
E
F
G

Prêt immobilier

Vous souhaitez connaître votre capacité d’emprunt et trouver le meilleur crédit immobilier ?
Réaliser une simulation gratuite

Appartement à LYON-9E
Appartement à LYON-9E
Appartement à LYON-9E
Appartement à LYON-9E
Appartement à LYON-9E
Appartement à LYON-9E
Appartement à LYON-9E
Appartement à LYON-9E
Appartement à LYON-9E
Appartement à LYON-9E
Appartement à LYON-9E
Appartement à LYON-9E
Appartement à LYON-9E
Ce site est protégé par reCAPTCHA la Politique de confidentialité et les Conditions d’utilisation de Google s’appliquent.
Obtenir un prêt immobilier au meilleur taux ?

En poursuivant votre navigation sans modifier vos paramètres, vous acceptez l'utilisation de cookies susceptibles de réaliser des statistiques de visite. Cliquez ici pour plus d'informations