Pas de commerce à Cherveix-Cubas pour le moment. Découvrez dès maintenant les commerces dans le département Dordogne.

Commerce 199m² à colomars

— Colomars 06670 —
640 000 €
199 m²
accès handicapé


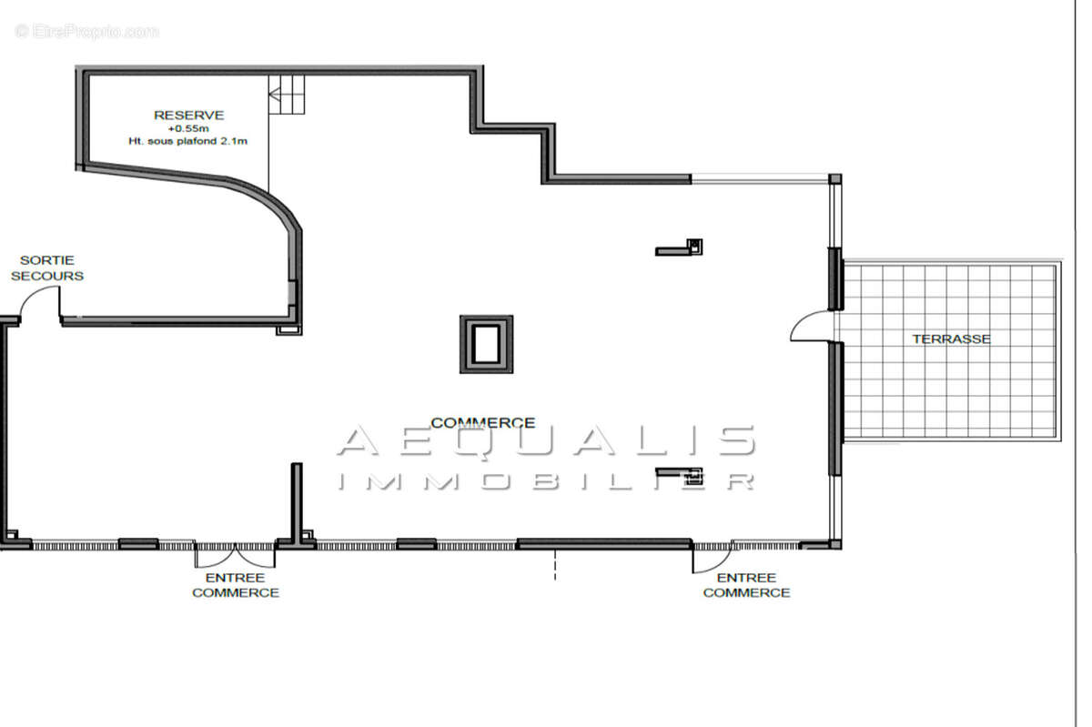
Au coeur d'une petit copropriété Secteur Campagne à cinq minutes de la zone industrielle de Carros et des axes autoroutiers.
LOCAL COMMERCIAL 199M2 - 10 métres linéaire de Façade- Terrasse spacieuse donnant sur jardin. 2 parkings privatifs dont 1 PMR
Tous commerces sauf nuisances
Documentation sur demande
Conditions financières
Prix 500.000 ¤ HT
Honoraires 7% HT en sus du prix de vente à la charge de l'acquéreur
Régime fiscal TVA.20%

Contact et visites: [Coordonnées masquées]

Voir plus

Référence: 378P321V
Honoraires à la charge de l'acquéreur.

Prêt immobilier

Vous souhaitez connaître votre capacité d’emprunt et trouver le meilleur crédit immobilier ?
Réaliser une simulation gratuite

Commerce à COLOMARS
Commerce à COLOMARS
Commerce à COLOMARS
Commerce à COLOMARS
Commerce à COLOMARS
Ce site est protégé par reCAPTCHA la Politique de confidentialité et les Conditions d’utilisation de Google s’appliquent.
Obtenir un prêt immobilier au meilleur taux ?

En poursuivant votre navigation sans modifier vos paramètres, vous acceptez l'utilisation de cookies susceptibles de réaliser des statistiques de visite. Cliquez ici pour plus d'informations