Bénéficiez des services de nos partenaires locaux soigneusement sélectionnés
pour vous accompagner dans votre parcours d'achat immobilier

Maison 144m² à bussy-saint-georges

— Bussy-Saint-Georges 77600 —
495 000 €
144 m²
4 pièces
parkingbalcon/terrasseaccès handicapé

Nos partenaires locaux
Située à Bussy-Saint-Georges (limite Chanteloup-en-Brie) dans un secteur calme, verdoyant et proche de toutes commodités.

Maison refaite à neuf avec les dernières normes de construction, d'isolation, de chauffage et d'équipement.

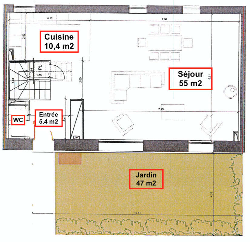
D'une surface de 140 m2 habitable + grenier (180 m2 utile), vous profiterez de grand volume pour chaque pièces

- Séjour avec cuisine ouverte d'environ 65 m2
- Suite parentale d'environs 15 m2 avec salle de bain et WC privatif
- Deux chambres de 14 m2 et 12 m2, chacune avec salle d'eau privative
- Grand grenier pour stoker ou aménager un espace selon vos envies

Coté équipements et prestations :

- Pompe à chaleur air-air
- Isolation renforcé (thermique et phonique)
- Fenêtre double et/ou triple vitrage
- Volet roulant électrique
- Porte d'entrée en alu avec serrure sécurisé 3 points
- Robinetterie PORCHER
- WC suspendu
- Bac à douche 90x120 et ou x100
- Carrelage 60x60 au RDC
- Parquet dans les chambres et palier

Coté Avantage :

- Frais de notaire réduit, environs 2,5% (une économie d'environ 28.000 ¤)
- Possibilité de financement par le prêt à 0%
- Garantie décennale sur le gros ½uvre
- Garantie biennale sur les équipements

Photos non contractuelle (projection 3D) -----------------------------------------------------------------
Les informations sur les risques auxquels ce bien est exposé sont disponibles sur le site Géorisques : www.georisques.gouv.fr
------------------------------------------------------------------
Cette annonce immobilière est rédigée sous la responsabilité de votre agent commercial.
------------------------------------------------------------------
Envie de changer de carrière professionnelle, BL AGENTS recrute partout en France, parlons-en ou découvrez notre concept sur www.bl-agents-recrutement.fr Contactez Gael BERNARDET au [Coordonnées masquées]. N° RSAC : 2016AC00139 MEAUX
Voir plus

Référence: 39095
Bien en copropriété. Nombre de lots : 6.
Honoraires à la charge du vendeur.
Barème des honoraires

Prêt immobilier

Vous souhaitez connaître votre capacité d’emprunt et trouver le meilleur crédit immobilier ?
Réaliser une simulation gratuite

Capture d'ecran 2021-09-16 a 10 - Maison à BUSSY-SAINT-GEORGES
Capture d'ecran 2021-09-16 a 10
Cuisine MV3 - Maison à BUSSY-SAINT-GEORGES
Cuisine MV3
ch 3 - Maison à BUSSY-SAINT-GEORGES
ch 3
sdb2  - Maison à BUSSY-SAINT-GEORGES
sdb2
MV 3 RDJ - Maison à BUSSY-SAINT-GEORGES
MV 3 RDJ
MV3 R+1  - Maison à BUSSY-SAINT-GEORGES
MV3 R+1
Ce site est protégé par reCAPTCHA la Politique de confidentialité et les Conditions d’utilisation de Google s’appliquent.
Obtenir un prêt immobilier au meilleur taux ?

En poursuivant votre navigation sans modifier vos paramètres, vous acceptez l'utilisation de cookies susceptibles de réaliser des statistiques de visite. Cliquez ici pour plus d'informations