Bénéficiez des services de nos partenaires locaux soigneusement sélectionnés
pour vous accompagner dans votre parcours d'achat immobilier

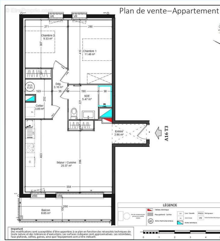
Appartement benesse maremne centre bourg, 3 pièce(s) 59.39 m2 faites vite !

— Benesse-Maremne 40230 —
279 000 €
59 m²
3 pièces
parkingbalcon/terrasse

Nos partenaires locaux
*** DERNIER T3 EN REZ DE JARDIN *** FAITES VITE *** Dans une résidence à taille humaine et au calme, proche des commerces, des commodités (gare SNCF, accès autoroute ...) et des écoles , ne manquez pas cette belle opportunité d'acquérir votre futur logement. Que ce soit pour une résidence principale, secondaire ou un bon investissement, la résidence répondra à toutes vos attentes. Tout a été pensé et structuré afin de vous assurer un cadre de vie confortable et agréable. Végétation, sécurité, nombre suffisant de stationnements, entretien des jardins et espaces verts via des jardiniers afin de préservez toute l'harmonie de la résidence, espaces extérieurs privatifs (jardinets, terrasses). Aux dernières normes, vous n'aurez qu'à vous installer et vous laisser vivre. Vous serez à 10 min seulement des plages landaises de Capbreton et d'Hossegor, à moins d'une 1/2h de Bayonne et de l'Aéroport de Biarritz. Vous bénéficierez d'un accès direct aux pistes cyclables afin de rejoindre la côte rapidement ... Pour plus d'informations contactez-nous, nous vous recevront avec grand plaisir. Copropriété de 82 lots - dont 24 lots habitation.(Pas de procédure en cours). Catherine (EI) LAMBERT (EI) Agent Commercial - Numéro RSAC : 813516846 - DAX.
Voir plus

Référence: 4495L
Bien en copropriété. Nombre de lots : 82.
Honoraires à la charge du vendeur.
Barème des honoraires

Prêt immobilier

Vous souhaitez connaître votre capacité d’emprunt et trouver le meilleur crédit immobilier ?
Réaliser une simulation gratuite

Appartement à BENESSE-MAREMNE
Appartement à BENESSE-MAREMNE
Appartement à BENESSE-MAREMNE
Ce site est protégé par reCAPTCHA la Politique de confidentialité et les Conditions d’utilisation de Google s’appliquent.
Obtenir un prêt immobilier au meilleur taux ?

En poursuivant votre navigation sans modifier vos paramètres, vous acceptez l'utilisation de cookies susceptibles de réaliser des statistiques de visite. Cliquez ici pour plus d'informations