Bénéficiez des services de nos partenaires locaux soigneusement sélectionnés
pour vous accompagner dans votre parcours d'achat immobilier

Appartement 63m² à argeles-sur-mer

— Argeles-Sur-Mer 66700 —
321 200 €
63 m²
3 pièces

Nos partenaires locaux
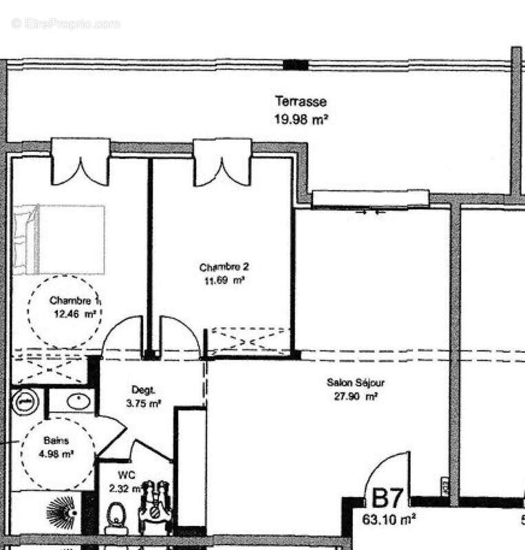
Situé dans la charmante commune balnéaire d'Argelès-sur-Mer (66700), cet appartement bénéficie d'un emplacement idéal, à quelques pas des plages de sable fin de la Méditerranée. La ville offre un cadre de vie agréable, avec ses rues pittoresques, ses commerces locaux et ses restaurants typiques, propices à la détente et à la découverte. De plus, sa proximité avec les Pyrénées et l'Espagne en font un point de départ idéal pour des escapades en montagne ou des voyages transfrontaliers. Cet appartement T3 de 63 m², situé au 2ème étage, se compose d'une entrée accueillante menant à un séjour lumineux avec cuisine équipée. Une terrasse de 20 m² offre un espace extérieur agréable, tandis que le dégagement dessert 2 chambres confortables, une salle d'eau moderne et des toilettes séparées. LIVRAISON 1er trimestre 2027, ce bien allie modernité et fonctionnalité pour offrir un cadre de vie contemporain à ses résidents.

Le bien comprend 40 lots, et il est situé dans une copropriété de 40 lots (les charges courantes annuelles moyennes de copropriété sont de 1000 ¤ et le syndicat des copropriétaires ne fait pas l'objet d'une procédure citée à l'article L. 721-1 du code de la construction et de l'habitation).

Les informations sur les risques auxquels ce bien est exposé sont disponibles sur le site Géorisques : www.georisques.gouv.fr
Prix de vente : 321 200 ¤
Honoraires charge vendeur

Contactez votre conseiller SAFTI : Pascal SÉGUIN, Tél. : [Coordonnées masquées], E-mail : [Coordonnées masquées] - EI - Agent commercial immatriculé au RSAC de PERPIGNAN sous le numéro 508037900.
Informations LOI ALUR :
Soumis au régime de copropriété.
Nombre de lots : 40.
Quote part annuelle(moyenne) : 1000 euros.
Honoraires charge vendeur. (gedeon_26118_32163532)
Voir plus

Référence: 758657
Bien en copropriété. Nombre de lots : 40. Charges de copropriété : 1000 €.
Honoraires à la charge du vendeur.
Barème des honoraires

Prêt immobilier

Vous souhaitez connaître votre capacité d’emprunt et trouver le meilleur crédit immobilier ?
Réaliser une simulation gratuite

Photo 1 - Appartement à ARGELES-SUR-MER
Photo 1
Photo 2 - Appartement à ARGELES-SUR-MER
Photo 2
Ce site est protégé par reCAPTCHA la Politique de confidentialité et les Conditions d’utilisation de Google s’appliquent.
Obtenir un prêt immobilier au meilleur taux ?

En poursuivant votre navigation sans modifier vos paramètres, vous acceptez l'utilisation de cookies susceptibles de réaliser des statistiques de visite. Cliquez ici pour plus d'informations