Bénéficiez des services de nos partenaires locaux soigneusement sélectionnés
pour vous accompagner dans votre parcours d'achat immobilier

Commerce 167m² à saint-andre-sur-orne

— Saint-Andre-Sur-Orne 14320 —
n.c. €
167 m²
parking

Nos partenaires locaux
Sous compromis : L'entrepôt 'Miremali' est sous compromis de vente, l'agence Visite & Co de Caen lui a trouvé de futurs propriétaires.????????????


?Découvrir la vidéo ?? de ce bien ? sur votre réseau préféré :

Instagram : https://urls.fr/2Uue-I

Facebook : https://urls.fr/Khx0iI

Tiktok : https://urls.fr/OFsSsS

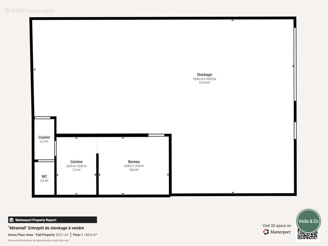
L'agence Visite & Co vous présente 'Miremali' : un grand entrepôt / local professionnel aux portes du périphérique de Caen, à Saint André Sur Orne.

Situé dans une zone d'activité datant de 2010, ce grand local de 167m² est idéal pour un professionnel, un commerçant ou pourquoi pas un particulier qui veut du stockage pour des voitures de collection par exemple.

Le local offre un accès par une grande porte sectionnelle motorisée de 4.54 x 4 (idéal camion, van...) à une grande pièce de plus de 112m², puis à une partie isolée comprenant un bureau (environ 13.11m²), une belle cuisine aménagée et entièrement équipée 'environ 7.34m²), un wc avec lave mains. Une mezzanine de stockage a récemment été ajoutée.

L'entrepôt fait 14.62mètres de long donc vous pouvez mettre plusieurs camions ou voitures en longueur! La hauteur sous plafond est au minimum de 4.23 mètres donc vous pouvez stocker en hauteur également.

Ce bien en copropriété est vendu avec 3 places de parking juste en face. L'accès est sécurisé par un portail.

'Mirameli' est donc fait pour un artisan, un commerçant ou même un investisseur (au vu des offres visibles sur le marché on peut raisonnablement penser qu'un local comme celui-ci se loue au moins 1 000 € par mois).

Les informations sur les risques auxquels ce bien est exposé sont disponibles sur le site Géorisques : www.georisques.gouv.fr
Mais conformément à ses habitudes, Visite & Co va plus loin : le fichier PDF sur les risques détaillés et localisés est disponible en document téléchargeable sur notre site internet.

Mentions obligatoires :
Les honoraires sont à la charge du vendeur.
DPE : en A.
Ce bien est soumis au statut de la copropriété.
Taxes foncières 2024 : 691 € / an
Charges de copropriété : 697 € par an sur le dernier décompte connu.

Mandat présenté par Emilie Lenoir
Agent commercial RSAC CAEN 844 123
RCP MMA PRO-PME n° 148597339
Cette annonce est rédigée par et sous la responsabilité de l'agent commercial Emilie Lenoir

Pourquoi choisir Visite & Co ?

Nous avons un réseau de 5 agences sur le Calvados. Nous offrons des services innovants comme la pré estimation de votre bien en ligne ( cliquez ici : https://bit.ly/3SIajsv ).
Nous sommes spécialisés dans l'achat et la vente de biens immobiliers mais aussi la gestion locative avec une formule à partir de 4.8% qui a déjà séduit plus de 260 bailleurs.
Encore un doute : comparez les avis clients des agences immobilières grâce à Google : vous verrez que nos 5 agences sont numéros 1 du Calvados avec plus de 1 100 avis et une note moyenne de 4.9/5.

Abonnez vous à nos réseaux sociaux :
- FACEBOOK : pour voir en avant-première nos biens
- INSTAGRAM : pour découvrir les coulisses de notre agence
- YOUTUBE : pour nos vidéos et podcasts de conseils immobiliers 'La minute du propriétaire'

Honoraires à la charge du vendeur. Barème d'honoraires consultable sur www.visite-andco.fr

Dans une copropriété de 1 lots. Aucune procédure n'est en cours. Classe énergie A, Classe climat A. Les inform...
Voir plus

Référence: 'MIREMALI'-VISITEANDCO
Bien en copropriété. Nombre de lots : 1.
Honoraires à la charge du vendeur.
Barème des honoraires
DPE
A
B
C
D
E
F
G
GES
A
B
C
D
E
F
G

Prêt immobilier

Vous souhaitez connaître votre capacité d’emprunt et trouver le meilleur crédit immobilier ?
Réaliser une simulation gratuite

Commerce à SAINT-ANDRE-SUR-ORNE
Commerce à SAINT-ANDRE-SUR-ORNE
Commerce à SAINT-ANDRE-SUR-ORNE
Commerce à SAINT-ANDRE-SUR-ORNE
Commerce à SAINT-ANDRE-SUR-ORNE
Commerce à SAINT-ANDRE-SUR-ORNE
Commerce à SAINT-ANDRE-SUR-ORNE
Commerce à SAINT-ANDRE-SUR-ORNE
Commerce à SAINT-ANDRE-SUR-ORNE
Ce site est protégé par reCAPTCHA la Politique de confidentialité et les Conditions d’utilisation de Google s’appliquent.
Obtenir un prêt immobilier au meilleur taux ?

En poursuivant votre navigation sans modifier vos paramètres, vous acceptez l'utilisation de cookies susceptibles de réaliser des statistiques de visite. Cliquez ici pour plus d'informations