Bénéficiez des services de nos partenaires locaux soigneusement sélectionnés
pour vous accompagner dans votre parcours d'achat immobilier

Appartement d’exception dans l’hyper centre dijonnais

— Dijon 21000 —
465 000 €
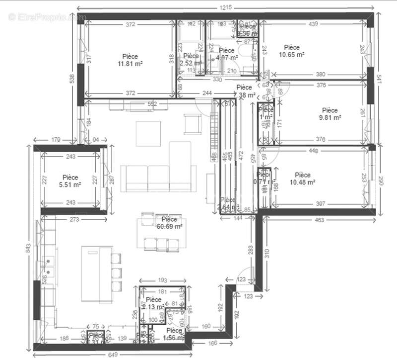
154 m²
7 pièces
parkingbalcon/terrasseascenseur

Nos partenaires locaux
Imaginez-vous au 5ᵉ et dernier étage, face à une vue panoramique sur Dijon et le parc arboré de la résidence… Cet appartement rare de 151 m² allie élégance, confort et lumière.
Entièrement rénové avec des matériaux haut de gamme, il offre un séjour-cuisine de 60 m² avec parquet massif et meubles sur mesure, 4 chambres, 3 salles d'eau modernes et un bureau idéal pour le télétravail.
Traversant Est/Ouest, baigné de soleil du matin au soir, il séduit par ses 2 loggias, parfaites pour admirer la ville.
Vous profiterez d'un box fermé, de 2 grandes caves et de nombreuses places de parking dans la cour sécurisée.
Résidence avec gardien, environnement calme et verdoyant, au cœur du centre-ville de Dijon, du tram et des commerces.
Classé C au DPE, ce bien économe en énergie ne nécessite aucuns travaux : il ne vous reste qu'à poser vos valises et profiter !
Les honoraires sont à la charge du vendeur.
Les informations sur les risques auxquels ce bien est exposé sont disponibles sur le site Géorisques : www. georisques. gouv. fr.

Contactez Julien STEINBRUNN Entrepreneur Individuel, Agent commercial OptimHome (RSAC N°819 387 390 Greffe de DIJON) [Coordonnées masquées] (réf. 596558 )
Voir plus

Référence: 830039001038
Honoraires à la charge du vendeur.
DPE
A
B
C
D
E
F
G
GES
A
B
C
D
E
F
G

Prêt immobilier

Vous souhaitez connaître votre capacité d’emprunt et trouver le meilleur crédit immobilier ?
Réaliser une simulation gratuite

Appartement à DIJON
Appartement à DIJON
Appartement à DIJON
Appartement à DIJON
Appartement à DIJON
Appartement à DIJON
Appartement à DIJON
Appartement à DIJON
Ce site est protégé par reCAPTCHA la Politique de confidentialité et les Conditions d’utilisation de Google s’appliquent.
Obtenir un prêt immobilier au meilleur taux ?

En poursuivant votre navigation sans modifier vos paramètres, vous acceptez l'utilisation de cookies susceptibles de réaliser des statistiques de visite. Cliquez ici pour plus d'informations