Bénéficiez des services de nos partenaires locaux soigneusement sélectionnés
pour vous accompagner dans votre parcours d'achat immobilier

Vue dégagée à 12 mn de st lazare ! appartement haussmannien 3 pièces 53m² colombes - agent sarre

— Colombes 92700 —
317 000 €
53 m²
3 pièces
ascenseur

Nos partenaires locaux
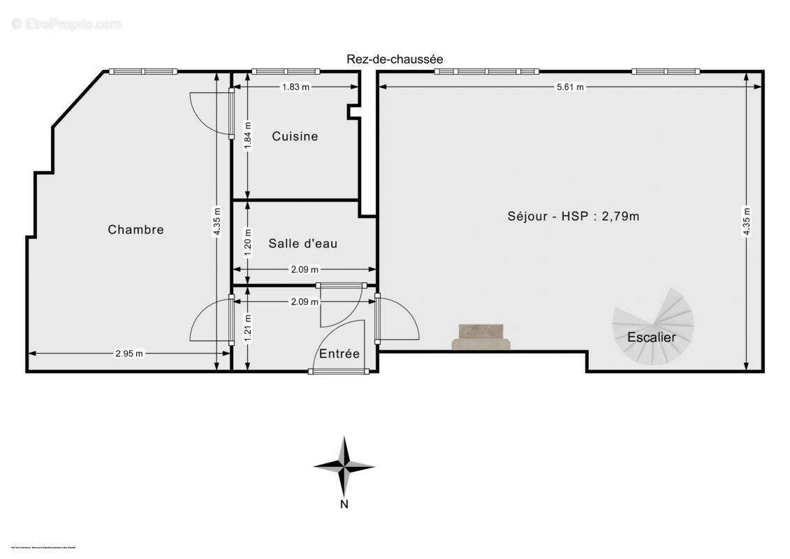
Hosman vous propose cet appartement très lumineux en duplex trois pièces, situé au
5ème étage sur six avec ascenseur, d'un immeuble Haussmannien bien entretenu de l'Avenue de l'Agent Sarre à Colombes. Sa surface est de 53m² selon la loi Carrez. Il bénéficie d'un parquet vitrifié
neuf, de superbes moulures et d'une cheminée Prussienne d'époque.

L'appartement se compose comme suit :
- un séjour de 23 m² avec une belle vue dégagée plein Sud.
- Une salle à manger ou chambre de 11,7 m² plein Sud.
- Une cuisine plein Sud entièrement refaite et équipée. Electroménager complet : frigo avec
congélateur, four, hotte, plaques à induction, lave-linge encastré.
- Une salle d'eau rénovée récemment également, avec douche à l'italienne, sèche-serviettes, vasque simple, miroir
rétro-éclairé et WC.
- Un escalier en colimaçon mène à une chambre supplémentaire de 10,5 m², avec dressing toute
hauteur / toute longueur, et avec vue dégagée plein Sud sur Montmartre / Tour Eiffel / La Défense.

Une grande cave de 10 m² complète ce bien.

La copropriété dispose d'un espace pour garer poussettes et vélos.

Le chauffage est électrique et l'eau chaude au gaz individuel (chauffe-eau neuf dernière génération).
Les charges de copropriété s'élèvent à 366 € par trimestre.
La taxe foncière annuelle est de 868 €.

L'appartement se situe dans un quartier vivant, à proximité immédiate de la gare de Colombes (ligne Transilien J, à 12 minutes de gare Saint-Lazare) et de nombreux commerces, cafés et restaurants.

Le bien est soumis au statut de copropriété.

Une réfection de la cage d'escalier et du hall d'entrée est prévue et déjà financée.

Planifiez facilement votre visite en choisissant le créneau qui vous convient depuis le site d'Hosman.

Hosman s'efforce de réinventer l'agence immobilière en offrant un service innovant et transparent aux acheteurs et aux vendeurs. Nos frais d'agence sont de 8900 euros fixes à la charge du vendeur.
Si vous êtes un professionnel de l'immobilier (agent, mandataire ou chasseur immobilier), sachez que toutes les annonces Hosman sont ouvertes à la collaboration. N'hésitez pas à nous contacter pour en discuter.
Voir plus

Référence: 9cd6a1
Bien en copropriété. Charges de copropriété : 122 €.
Honoraires à la charge du vendeur.
DPE
A
B
C
D
E
F
G
GES
A
B
C
D
E
F
G

Prêt immobilier

Vous souhaitez connaître votre capacité d’emprunt et trouver le meilleur crédit immobilier ?
Réaliser une simulation gratuite

Appartement à COLOMBES
Appartement à COLOMBES
Appartement à COLOMBES
Appartement à COLOMBES
Appartement à COLOMBES
Appartement à COLOMBES
Appartement à COLOMBES
Appartement à COLOMBES
Appartement à COLOMBES
Appartement à COLOMBES
Appartement à COLOMBES
Ce site est protégé par reCAPTCHA la Politique de confidentialité et les Conditions d’utilisation de Google s’appliquent.
Obtenir un prêt immobilier au meilleur taux ?

En poursuivant votre navigation sans modifier vos paramètres, vous acceptez l'utilisation de cookies susceptibles de réaliser des statistiques de visite. Cliquez ici pour plus d'informations