Bénéficiez des services de nos partenaires locaux soigneusement sélectionnés
pour vous accompagner dans votre parcours d'achat immobilier

2 pieces avec cave et parking a rafraichir

— Creteil 94000 —
180 000 €
45 m²
2 pièces
parkingbalcon/terrasse

Nos partenaires locaux
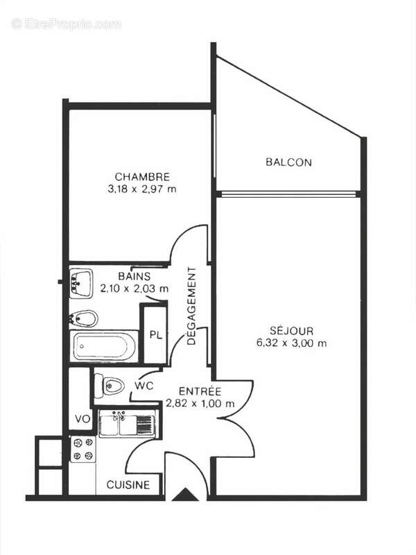
Charmant 2 pièces avec cave et parking à rafraîchir, à seulement 6 minutes à pied du métro ligne 8 Créteil-Préfecture.
Situé dans une copropriété bien entretenue avec gardien, cet appartement lumineux se trouve au rez-de-dalle (soit au 2ème étage) avec une vue agréable sur le lac. Il se compose d’une entrée spacieuse, d’un séjour confortable avec loggia fermée, d’une chambre avec placard intégré, d’un dégagement avec placard, d’une cuisine séparée, d’une salle de bains et de WC séparés. Une cave au sous-sol et un emplacement de parking complètent ce bien.
À proximité : Centre commercial Créteil-Soleil. Lac de Créteil. Écoles, commerces et arrêts de bus.
Ne manquez pas cette opportunité de personnaliser cet appartement selon vos goûts, tout en profitant d’un emplacement privilégié !
Voir plus

Référence: VTE-1814-1
Bien en copropriété. Charges de copropriété : 2525 €.
Honoraires d'agence de 6% à la charge de l'acquéreur
Barème des honoraires
DPE
A
B
C
D
E
F
G
GES
A
B
C
D
E
F
G

Prêt immobilier

Vous souhaitez connaître votre capacité d’emprunt et trouver le meilleur crédit immobilier ?
Réaliser une simulation gratuite

Appartement à CRETEIL
Appartement à CRETEIL
Appartement à CRETEIL
Appartement à CRETEIL
Appartement à CRETEIL
Appartement à CRETEIL
Appartement à CRETEIL
Appartement à CRETEIL
Ce site est protégé par reCAPTCHA la Politique de confidentialité et les Conditions d’utilisation de Google s’appliquent.
Obtenir un prêt immobilier au meilleur taux ?

En poursuivant votre navigation sans modifier vos paramètres, vous acceptez l'utilisation de cookies susceptibles de réaliser des statistiques de visite. Cliquez ici pour plus d'informations