Bénéficiez des services de nos partenaires locaux soigneusement sélectionnés
pour vous accompagner dans votre parcours d'achat immobilier

À vendre – murs de locaux professionnels - menton (06 500) - 400 000 € honoraires d'agence inclus

— Menton 06500 —
400 000 €
83 m²
6 pièces
parkingbalcon/terrasse

Nos partenaires locaux
Idéal profession libérale – Emplacement stratégique avec terrasse, box et cave

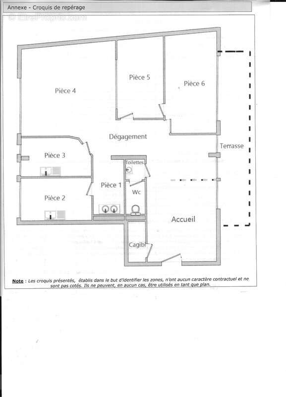
Situés à 5 minutes à pied de la gare de Menton, au 4e étage sur 5 d'un immeuble mixte bureaux/commerce, je vous propose la vente de murs professionnels d'une surface de 83,32 m² Loi Carrez.

Ce local lumineux et bien agencé se compose :

- de 6 pièces dont une zone d'accueil,
- de sanitaires,
- d'une grande terrasse de 14,50 m²,
- d'un box en sous-sol,
- d'une cave.
- et le local bénéficie d'une climatisation.

Actuellement exploité par un orthodontiste, le local dispose de 3 fauteuils, ce qui en fait une opportunité idéale pour l'installation d'un dentiste qu'il soit spécialisé ou non mais également pour d'autres professions libérales : médecins, kinésithérapeutes, ou toute autre profession libérale.

Les atouts supplémentaires de ce local, de ces murs :

- Faibles charges de copropriété : 177 €/mois
- Excellent DPE : Classe C

Prix de vente des murs : 400 000 € honoraires d'agence inclus
Taxe foncière 2024 : 2001 €

Il s'agit donc d'un emplacement central, à proximité immédiate des transports et de tous commerces et autres.

C'est donc un bien rare dans le secteur, prêt à être exploité pour un usage médical ou paramédical ou autre.

N'hésitez pas à me contacter pour de plus amples informations et/ou pour procéder à une visite ! Nombre de lots de la copropriété : 35, Montant moyen annuel de la quote-part de charges (budget prévisionnel) : 2093€ soit 174€ par mois. Les honoraires d'agence sont à la charge de l'acquéreur, soit 8,00% TTC du prix hors honoraires.
Les informations sur les risques auxquels ce bien est exposé sont disponibles sur le site Géorisques : www. georisques. gouv. fr.

Réseau Immobilier CAPIFRANCE - Votre agent commercial (RSAC N°835 035 908 - Greffe de PARIS 4EME ARRONDISSEMENT) François LERAT Entrepreneur Individuel [Coordonnées masquées] - Réf.930467
Voir plus

Référence: 340938327524
Bien en copropriété. Nombre de lots : 35. Charges de copropriété : 174 €.
DPE
A
B
C
D
E
F
G
GES
A
B
C
D
E
F
G

Prêt immobilier

Vous souhaitez connaître votre capacité d’emprunt et trouver le meilleur crédit immobilier ?
Réaliser une simulation gratuite

Commerce à MENTON
Commerce à MENTON
Commerce à MENTON
Commerce à MENTON
Commerce à MENTON
Commerce à MENTON
Commerce à MENTON
Commerce à MENTON
Commerce à MENTON
Commerce à MENTON
Commerce à MENTON
Commerce à MENTON
Commerce à MENTON
Commerce à MENTON
Commerce à MENTON
Ce site est protégé par reCAPTCHA la Politique de confidentialité et les Conditions d’utilisation de Google s’appliquent.
Obtenir un prêt immobilier au meilleur taux ?

En poursuivant votre navigation sans modifier vos paramètres, vous acceptez l'utilisation de cookies susceptibles de réaliser des statistiques de visite. Cliquez ici pour plus d'informations