Bénéficiez des services de nos partenaires locaux soigneusement sélectionnés
pour vous accompagner dans votre parcours d'achat immobilier

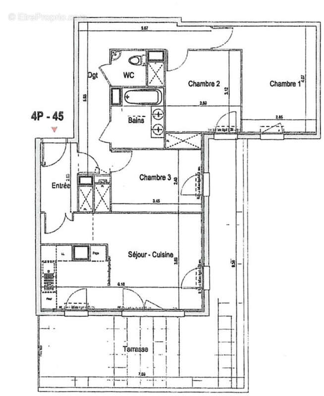
Appt t4/3 dijon drapeau - charmette récent 76 m2 2/3 chambres terrasse sud 31 m2 garage

— Dijon 21000 —
267 500 €
76 m²
4 pièces
parkingbalcon/terrasse

Nos partenaires locaux
# RARE # # Nouveauté #
ACCESSION IMMO vous propose, en exclusivité :
Un appartement de type 4 lumineux au 4 ème étage (ASC) de 76 m2 une Résidence de 2022 sécurisée AVEC UNE TERRASSE Sud de 31 m2 donnant intégralement sur intérieur avec un local à vélo et UN GRAND GARAGE au sous-sol.
11, rue Jean PONCELET 21000 DIJON
Comprenant : Une entrée parquet 4,43 m2 (visiophone et penderie double), un séjour parquet (fibre) avec une porte fenêtre EST et une porte fenêtre double SUD + une cuisine équipée SUD ouverte sur le séjour de 22 m2 (meubles, hotte, gazinière, lave vaisselle, emplacement machine à laver) avec une porte fenêtre donnant SUR UNE BELLE TERRASSE DALLEE SUD de 31 m2 (grand store banne électrique, lumière, robinet d'eau), un salon / Chambre 3 parquet 9,82 m2 sur le séjour (penderie double) avec une porte fenêtre EST donnant sur terrasse, un dégagement parquet (spots en plafond), une salle de bains carrelée faïencée 4,38 m2 (meuble double vasques, glace et sèche serviettes), un w-c carrelé indépendant (lave mains), une chambre parquet 9,69 m2 (penderie double) avec une porte fenêtre SUD donnant sur la TERRASSE et une chambre parquet 12,73 m2 SUD avec une fenêtre oscillo battante (avec un grand dressing) ;
Ainsi qu'un local à vélo et UN Grand GARAGE 14 m2. (rayons et bip d'accès)
Classe énergie : C - classe climat : C (réalisé le 08/11/2025). Montant estimé des dépenses annuelles d'énergie pour un usage standard : entre 500 € et 720 € par an - Prix moyens des énergies indexés sur les années 2021, 2022 et 2023 (abonnements compris) ( copropriété de 98 lots) (pas de procédure en cours)
Charges annuelles = 2 450 € (communs, syndic, eau froide et chaude, chauffage collectif gaz avec répartiteurs de calories) Taxe foncière = 1 592 €
# Proche Tram, commerces, écoles, Centre Ville, Centre commercial Toison d'Or et Rocade LINO #
# Au calme, lumineux, en bon état général, cuisine équipée, terrasse dallée de 31 m2, volets roulants électriques, grand store électrique, fibre dans toutes les pièces, Logement connecté (programmations des volets, lumières, chauffage ...), Norme RT2012, sous GARANTIE DECENNALE #
- A DECOUVRIR RAPIDEMENT -
Prix : 267 500 € (les honoraires sont à la charge du vendeur)
Philippe AUBERT
Agent immobilier
[Coordonnées masquées]
www.accession-immo.com
Les informations sur les risques auxquels ce bien est exposé sont disponibles sur le site Géorisques
Voir plus

Référence: 1664
Bien en copropriété. Nombre de lots : 98. Charges de copropriété : 2450 €.
Barème des honoraires
DPE
A
B
C
D
E
F
G
GES
A
B
C
D
E
F
G

Prêt immobilier

Vous souhaitez connaître votre capacité d’emprunt et trouver le meilleur crédit immobilier ?
Réaliser une simulation gratuite

Appartement à DIJON
Appartement à DIJON
Appartement à DIJON
Appartement à DIJON
Appartement à DIJON
Appartement à DIJON
Appartement à DIJON
Appartement à DIJON
Appartement à DIJON
Appartement à DIJON
Appartement à DIJON
Appartement à DIJON
Appartement à DIJON
Appartement à DIJON
Appartement à DIJON
Ce site est protégé par reCAPTCHA la Politique de confidentialité et les Conditions d’utilisation de Google s’appliquent.
Obtenir un prêt immobilier au meilleur taux ?

En poursuivant votre navigation sans modifier vos paramètres, vous acceptez l'utilisation de cookies susceptibles de réaliser des statistiques de visite. Cliquez ici pour plus d'informations