Bénéficiez des services de nos partenaires locaux soigneusement sélectionnés
pour vous accompagner dans votre parcours d'achat immobilier

Frossay t3 neuf

— Saint-Brevin-Les-Pins 44250 —
207 278 €
60 m²
3 pièces
parkingbalcon/terrasse

Nos partenaires locaux
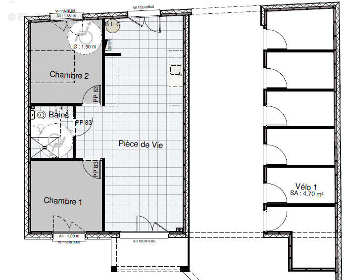
À VENDRE - Appartement Neuf en VEFA à Frossay Livraison T4 2026
A 25 minutes de SAINT BREVIN, idéalement situé en plein cœur de Frossay, venez découvrir cet appartement neuf en rez-de-chaussée d’environ 60 m2, conçu pour allier confort moderne et cadre de vie agréable.
Les atouts du bien :


Grande pièce de vie de 34 m2 : lumineuse et fonctionnelle, idéale pour vos moments en famille ou entre amis


Cave privative : pratique pour le rangement


Place de parking incluse


À deux pas des commerces, écoles et services du centre-ville


Programme neuf frais de notaire réduits idéal pour un investissement locatif ou une résidence principaleConfort thermique et acoustique aux normes RE2020
Livraison prévue : 4e trimestre 2026
Opportunité rare à Frossay Réservez dès maintenant votre futur logement dans un cadre de vie paisible, entre ville et nature.
Contactez-nous dès aujourd’hui pour en savoir plus au O7 82 I5 6I I7 pour réserver votre appartement.
PTZ possible sous conditions, Frais de notaire réduits.
Photos non contractuelles.
Voir plus

Bien en copropriété. Nombre de lots : 15.
Honoraires à la charge du vendeur.
Barème des honoraires

Prêt immobilier

Vous souhaitez connaître votre capacité d’emprunt et trouver le meilleur crédit immobilier ?
Réaliser une simulation gratuite

Appartement à SAINT-BREVIN-LES-PINS
Appartement à SAINT-BREVIN-LES-PINS
Appartement à SAINT-BREVIN-LES-PINS
Appartement à SAINT-BREVIN-LES-PINS
Ce site est protégé par reCAPTCHA la Politique de confidentialité et les Conditions d’utilisation de Google s’appliquent.
Obtenir un prêt immobilier au meilleur taux ?

En poursuivant votre navigation sans modifier vos paramètres, vous acceptez l'utilisation de cookies susceptibles de réaliser des statistiques de visite. Cliquez ici pour plus d'informations