Bénéficiez des services de nos partenaires locaux soigneusement sélectionnés
pour vous accompagner dans votre parcours d'achat immobilier

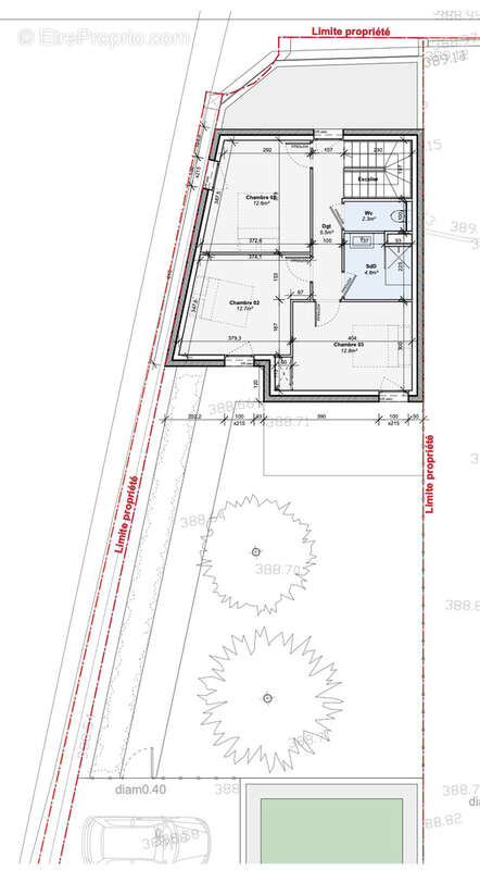
Terrain avec projet de construction

— Andrezieux-Boutheon 42160 —
134 500 €
281 m²
jardin

Nos partenaires locaux
Exclusivité : Terrain constructible viabilisé disponible dans le centre d'Andrezieux Bouthéon.
Viabilités en bordure
Surface de la parcelle : 281m2
Projet de construction PC déposé : maison T5 118,9m2
Terrasse : 15,7m2
Jardin: 113 m2

Référence: 6
Barème des honoraires

Prêt immobilier

Vous souhaitez connaître votre capacité d’emprunt et trouver le meilleur crédit immobilier ?
Réaliser une simulation gratuite

Terrain à ANDREZIEUX-BOUTHEON
Terrain à ANDREZIEUX-BOUTHEON
Terrain à ANDREZIEUX-BOUTHEON
Terrain à ANDREZIEUX-BOUTHEON
Terrain à ANDREZIEUX-BOUTHEON
Ce site est protégé par reCAPTCHA la Politique de confidentialité et les Conditions d’utilisation de Google s’appliquent.
Obtenir un prêt immobilier au meilleur taux ?

En poursuivant votre navigation sans modifier vos paramètres, vous acceptez l'utilisation de cookies susceptibles de réaliser des statistiques de visite. Cliquez ici pour plus d'informations