Bénéficiez des services de nos partenaires locaux soigneusement sélectionnés
pour vous accompagner dans votre parcours d'achat immobilier

Voir tous les partenaires locaux

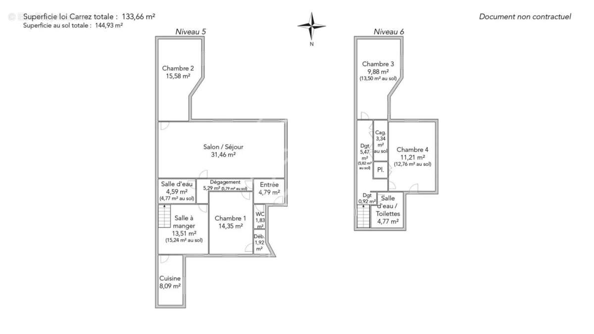
Paris 6e - saint-germain des prés - duplex à vendre - 6 pièces - 133,66m² carrez - 144,93m² au sol - 4 chambres - vue dégagée.

— Paris-6e 75006 —
2 550 000 €
134 m²
6 pièces
ascenseur

Nos partenaires locaux
À deux pas de Saint-Germain des Prés, au calme absolu, découvrez ce superbe duplex familial situé aux derniers étages d’un immeuble ancien de standing, parfaitement entretenu, avec ascenseur et gardien à demeure.
D’une superficie de 133,66m² loi Carrez, cet appartement rare séduit par ses volumes généreux, sa luminosité et son charme.
Au cinquième étage, il comporte une entrée, une cuisine indépendante aménagée, un spacieux double séjour baigné de lumière doté d'une vue dégagée sur l’église Saint-Sulpice, deux premières chambres, une salle de douche et des toilettes invités.
Un escalier intérieur mène au sixième et dernier étage, qui accueille deux grandes chambres supplémentaires avec rangements ainsi qu’une seconde salle de douche avec des toilettes.
Cet appartement d’exception combine emplacement privilégié, calme absolu, charme de l’ancien et fort potentiel d’aménagement, constituant un bien familial rare dans ce quartier recherché.
Un débarras et une cave complètent cette offre.
Possibilité d’acquérir en supplément un studio indépendant de 14,56m² loi Carrez et 18,82m² au sol, situé au sixième même étage, en face de l’appartement, au prix de 250.000euros.
EXCLUSIVITÉ.
Voir plus

Référence: 1882CHMDEP
Barème des honoraires
DPE
A
B
C
D
E
F
G
GES
A
B
C
D
E
F
G

Prêt immobilier

Vous souhaitez connaître votre capacité d’emprunt et trouver le meilleur crédit immobilier ?
Réaliser une simulation gratuite

Appartement à PARIS-6E
Appartement à PARIS-6E
Appartement à PARIS-6E
Appartement à PARIS-6E
Appartement à PARIS-6E
Appartement à PARIS-6E
Appartement à PARIS-6E
Appartement à PARIS-6E
Appartement à PARIS-6E
Appartement à PARIS-6E
Appartement à PARIS-6E
Appartement à PARIS-6E
Appartement à PARIS-6E
Appartement à PARIS-6E
Appartement à PARIS-6E
Appartement à PARIS-6E
Appartement à PARIS-6E
Ce site est protégé par reCAPTCHA la Politique de confidentialité et les Conditions d’utilisation de Google s’appliquent.
Obtenir un prêt immobilier au meilleur taux ?

En poursuivant votre navigation sans modifier vos paramètres, vous acceptez l'utilisation de cookies susceptibles de réaliser des statistiques de visite. Cliquez ici pour plus d'informations