Bénéficiez des services de nos partenaires locaux soigneusement sélectionnés
pour vous accompagner dans votre parcours d'achat immobilier

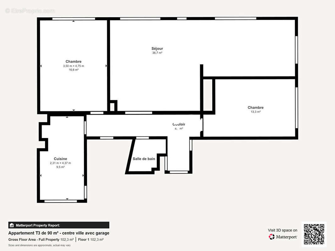
Lorient centre- appartement t4 90 m² - garage

— Lorient 56100 —
197 025 €
90 m²
4 pièces

Nos partenaires locaux
LORIENT CENTRE- APPARTEMENT T4 90 M2 - Découvrez cet appartement à vendre situé à Lorient,d'une surface totale de 90 m², cet appartement bénéficie d'une très belle luminosité . Cet appartement aux très beaux volumes,se compose d'une belle entrée , d'un double séjour, d'une cuisine aménagée-équipée indépendante, d'une une salle d'eau, d'un wc séparé et de 2 chambres Le chauffage électrique individuel et les fenêtres sont toutes en PVC double vitrage. une cave privative et un garage Situé à proximité de plusieurs établissements scolaires tels que l'École élémentaire publique , cet appartement est idéalement placé pour les familles. Vous trouverez également la gare de Lorient à proximité, facilitant vos déplacements. Le secteur offre divers restaurants, boulangeries et pharmacies, rendant votre quotidien agréable. Ne manquez pas cette opportunité, contactez l'Agence Barraine IMMO Lorient pour plus d'informations et pour organiser une visite. (6.50 % honoraires TTC à la charge de l'acquéreur.) Copropriété de 8 lots - dont 8 lots habitation. (Pas de procédure en cours). Charges annuelles : 1300 euros.
Voir plus

Référence: LT00
Bien en copropriété. Nombre de lots : 8. Charges de copropriété : 1300 €.
Honoraires d'agence de 6.5% à la charge de l'acquéreur
Barème des honoraires
DPE
A
B
C
D
E
F
G
GES
A
B
C
D
E
F
G

Prêt immobilier

Vous souhaitez connaître votre capacité d’emprunt et trouver le meilleur crédit immobilier ?
Réaliser une simulation gratuite

Appartement à LORIENT
Appartement à LORIENT
Appartement à LORIENT
Appartement à LORIENT
Appartement à LORIENT
Appartement à LORIENT
Appartement à LORIENT
Appartement à LORIENT
Appartement à LORIENT
Appartement à LORIENT
Appartement à LORIENT
Appartement à LORIENT
Appartement à LORIENT
Appartement à LORIENT
Appartement à LORIENT
Appartement à LORIENT
Appartement à LORIENT
Appartement à LORIENT
Appartement à LORIENT
Ce site est protégé par reCAPTCHA la Politique de confidentialité et les Conditions d’utilisation de Google s’appliquent.
Obtenir un prêt immobilier au meilleur taux ?

En poursuivant votre navigation sans modifier vos paramètres, vous acceptez l'utilisation de cookies susceptibles de réaliser des statistiques de visite. Cliquez ici pour plus d'informations