Bénéficiez des services de nos partenaires locaux soigneusement sélectionnés
pour vous accompagner dans votre parcours d'achat immobilier

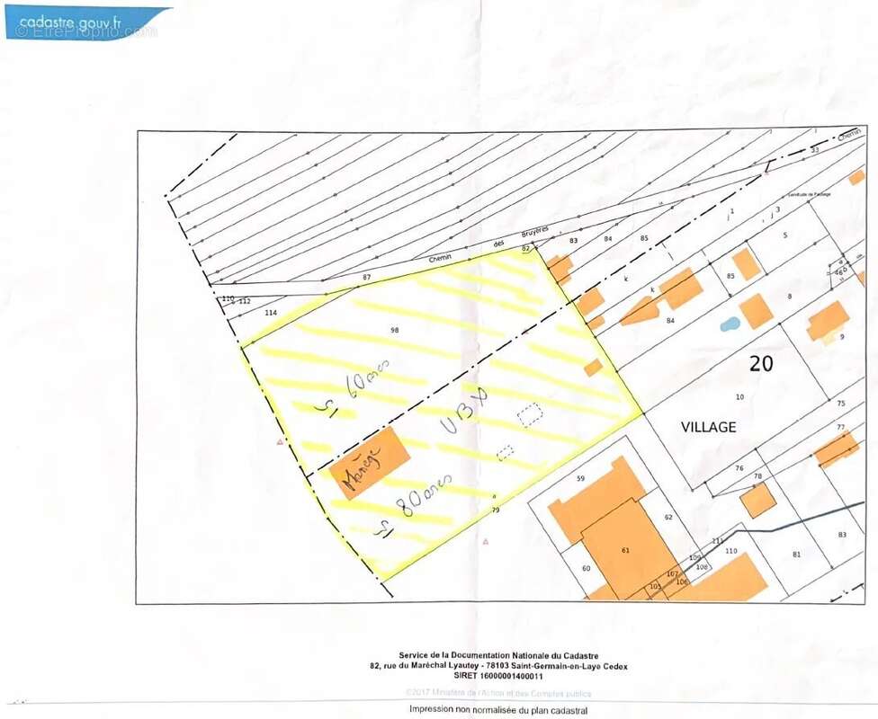
Neunhoffen, terrain 1 hectare 40 ares en partie constructible

— Niederbronn-Les-Bains 67110 —
195 000 €
14 000 m²

Nos partenaires locaux
Aux portes de NIEDERBRONN-LES-BAINS, à NEUNHOFFEN (67110), terrain plat en pleine nature :

- constructible pour une habitation sur environ 25 ares.
- dispose d'un ancien manège à chevaux d'environ 530 m² en parfait état pouvant être réhabilité en habitation sur environ 25 ares.
- dispose de 4 petits chalets des années 70 facilement démontables.
- dispose de terres forestières en zone N d'environ 80 ares.

De magnifiques arbres ornent la parcelle.
Possibilité de se raccorder à l'assainissement du village (tout à l'égout), à l'électricité, à l'eau, éligible à la fibre optique.
Accès par un chemin forestier facilement accessible.

Installez-vous, créez un petit domaine dans ce beau parc, petit paradis à l'abri des regards dans un environnement exceptionnel !

A 13 minutes de la gare / 35 min de Haguenau / Village très dynamique, nombreuses associations, écoles - crèche - périscolaire.

Non autorisées : Habitations légères (type tiny house). Uniquement pour projet d'habitation et possibilité de réhabilitation du manège à chevaux en habitation.

Honoraires à la charge du vendeur.
DPE non applicable.
Voir plus

Référence: 82933097
Barème des honoraires

Prêt immobilier

Vous souhaitez connaître votre capacité d’emprunt et trouver le meilleur crédit immobilier ?
Réaliser une simulation gratuite

Terrain à NIEDERBRONN-LES-BAINS
Terrain à NIEDERBRONN-LES-BAINS
Terrain à NIEDERBRONN-LES-BAINS
Terrain à NIEDERBRONN-LES-BAINS
Terrain à NIEDERBRONN-LES-BAINS
Terrain à NIEDERBRONN-LES-BAINS
Terrain à NIEDERBRONN-LES-BAINS
Terrain à NIEDERBRONN-LES-BAINS
Terrain à NIEDERBRONN-LES-BAINS
Terrain à NIEDERBRONN-LES-BAINS
Ce site est protégé par reCAPTCHA la Politique de confidentialité et les Conditions d’utilisation de Google s’appliquent.
Obtenir un prêt immobilier au meilleur taux ?

En poursuivant votre navigation sans modifier vos paramètres, vous acceptez l'utilisation de cookies susceptibles de réaliser des statistiques de visite. Cliquez ici pour plus d'informations