Bénéficiez des services de nos partenaires locaux soigneusement sélectionnés
pour vous accompagner dans votre parcours d'achat immobilier

Exclusivité. pereire / parc monceau. magnifique maison de ville entièrement rénovée avec jardin ensoleillé de 150m²!

— Paris-17e 75017 —
4 500 000 €
227 m² / 155 m²
9 pièces
parkingbalcon/terrassejardin

Nos partenaires locaux
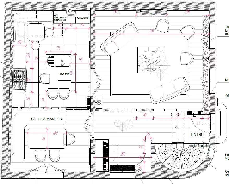
District Immobilier vous propose en exclusivité cette magnifique et rare maison familiale, au calme et ensoleillée, d'une superficie de 227m² avec son jardin privatif de 155m² entièrement aménagé (arrosage automatique, éclairages LED RGB/CCT et système de protection professionnel – caméras et radars).
Elevée sur 3 niveaux (Rdc + 2 + entresol), elle a été entièrement rénovée par un architecte avec des matériaux hauts de gamme.
Elle bénéficie d'un plan parfait sans perte de place et se compose aujourd'hui:
Au rez-de-chaussée: Une entrée, un double séjour, une salle à manger et une cuisine dinatoire entièrement équipée (V-ZUG et piano Lacanche) avec puit de lumière.
Au 1er étage, l'espace enfant, avec ses 3 belles chambres avec placards, ses 2 salles de bains WC, son dressing et sa petite terrasse.
Au 2ème étage, l'espace parental, avec sa suite de maître, son grand dressing et sa superbe salle de bains.
L'entresol a été aménagé en salon TV/Family Room, chambre d'amis avec sa salle de douche WC, buanderie et local technique.
Ce bien climatisé est unique sur le secteur. Caméra de surveillance, système complet de protection Ajax intérieur et extérieur.
Une cave accessible directement par l'entresol complète cette offre rare.
Voir plus

Référence: GV/DA/11395/V
Barème des honoraires

Prêt immobilier

Vous souhaitez connaître votre capacité d’emprunt et trouver le meilleur crédit immobilier ?
Réaliser une simulation gratuite

Maison à PARIS-17E
Maison à PARIS-17E
Maison à PARIS-17E
Maison à PARIS-17E
Maison à PARIS-17E
Maison à PARIS-17E
Maison à PARIS-17E
Maison à PARIS-17E
Maison à PARIS-17E
Maison à PARIS-17E
Maison à PARIS-17E
Maison à PARIS-17E
Maison à PARIS-17E
Maison à PARIS-17E
Maison à PARIS-17E
Maison à PARIS-17E
Maison à PARIS-17E
Maison à PARIS-17E
Maison à PARIS-17E
Maison à PARIS-17E
Maison à PARIS-17E
Maison à PARIS-17E
Maison à PARIS-17E
Maison à PARIS-17E
Maison à PARIS-17E
Maison à PARIS-17E
Maison à PARIS-17E
Maison à PARIS-17E
Maison à PARIS-17E
Ce site est protégé par reCAPTCHA la Politique de confidentialité et les Conditions d’utilisation de Google s’appliquent.
Obtenir un prêt immobilier au meilleur taux ?

En poursuivant votre navigation sans modifier vos paramètres, vous acceptez l'utilisation de cookies susceptibles de réaliser des statistiques de visite. Cliquez ici pour plus d'informations