Bénéficiez des services de nos partenaires locaux soigneusement sélectionnés
pour vous accompagner dans votre parcours d'achat immobilier

3 pièces bourgeois vue mer panoramique

— Cannes 06400 —
1 298 000 €
91 m²
3 pièces
balcon/terrasseascenseur

Nos partenaires locaux
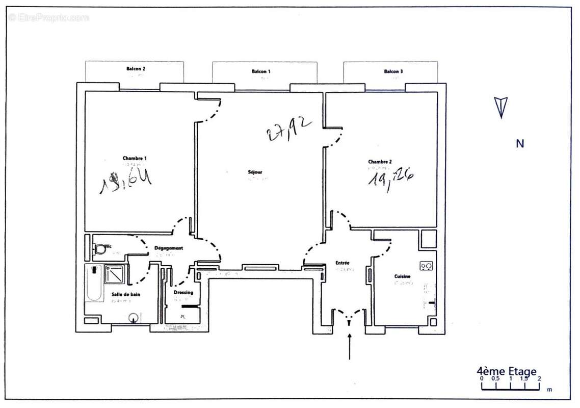
Dans le quartier recherché de Stanislas, au sein d’un splendide ancien hôtel particulier datant du XIXe siècle, cet appartement de 91 m² en dernier étage avec ascenseur est au cœur d’un parc paysager sécurisé de 1,5 hectare. À seulement 500 m des restaurants, boutiques de luxe et plages du Midi, il offre un emplacement d’exception.

Lumineux, il présente du cachet avec les belles hauteurs sous plafond. Avec ses trois balcons, il dispose d'une vue panoramique sur la mer, des Iles de Lérins, jusqu'à l'Esterel. Il comprend une entrée, un séjour, une cuisine indépendante entièrement équipée, deux chambres avec balcons, une salle de douche et des toilettes séparées.

Ce bien rare est idéal pour une résidence principale ou secondaire. Une place de parking en souterrain complète ce bien.
Voir plus

Référence: 86440301
DPE
A
B
C
D
E
F
G
GES
A
B
C
D
E
F
G

Prêt immobilier

Vous souhaitez connaître votre capacité d’emprunt et trouver le meilleur crédit immobilier ?
Réaliser une simulation gratuite

Appartement à CANNES
Appartement à CANNES
Appartement à CANNES
Appartement à CANNES
Appartement à CANNES
Appartement à CANNES
Appartement à CANNES
Appartement à CANNES
Appartement à CANNES
Appartement à CANNES
Appartement à CANNES
Appartement à CANNES
Appartement à CANNES
Appartement à CANNES
Ce site est protégé par reCAPTCHA la Politique de confidentialité et les Conditions d’utilisation de Google s’appliquent.
Obtenir un prêt immobilier au meilleur taux ?

En poursuivant votre navigation sans modifier vos paramètres, vous acceptez l'utilisation de cookies susceptibles de réaliser des statistiques de visite. Cliquez ici pour plus d'informations