Bénéficiez des services de nos partenaires locaux soigneusement sélectionnés
pour vous accompagner dans votre parcours d'achat immobilier

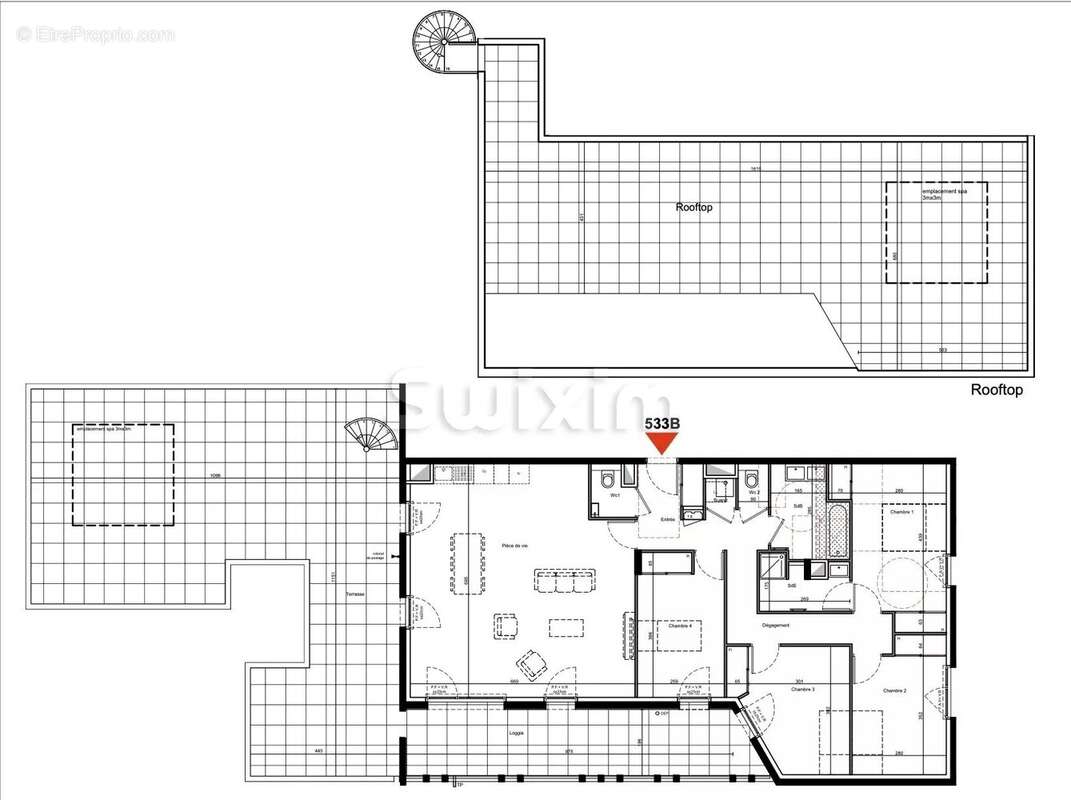
Villa sur le toit 120 m2 - grande terrasse 175 m2

— Francheville 69340 —
690 000 €
118 m²
5 pièces
ascenseuraccès handicapé

Nos partenaires locaux
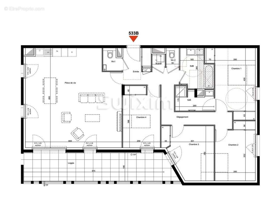
Superbe appartement T5 avec terrasse et rooftop à Francheville (118 m² + 175 m² d’espaces extérieurs)

Situé dans une résidence intimiste et très récente, au calme absolu d’une impasse à Francheville, découvrez ce magnifique appartement T5 de 118 m², occupant le dernier étage avec une terrasse de 85 m² et un rooftop privatif de 90 m², entièrement végétalisable.
Des espaces extérieurs exceptionnels,grande terrasse principale de 85 m² accessible depuis la pièce de vie, parfaite pour recevoir et profiter des beaux jours.
Un Rooftop privatif de 90 m², offrant une vue dégagée et la possibilité d’y installer sur l'une ou l'autre un jacuzzi, un salon d’été ou des espaces vert sans empiéter sur les terrasses principales.
Loggia de 20 m² supplémentaire pour encore plus de confort au quotidien.
Un intérieur lumineux et fonctionnel
L’appartement se compose d’un vaste séjour de 44 m², baigné de lumière grâce à ses larges ouvertures, avec accès direct à la terrasse.
L’espace nuit comprend 4 chambres équipées de placard :
* Chambre 1 : 14 m²
* Chambre 2 : 10,84 m²
* Chambre 3 : 11,68 m²
* Chambre 4 : 11,05 m²
Prestations haut de gamme
* Une salle de bain et une salle d’eau, entièrement décorées et faïencées
* Deux toilettes séparées
* Buanderie et nombreux rangements intégrés
* Hall d’entrée avec vestiaire
* Porte d’entrée 5 points pour une sécurité optimale
* Seulement deux appartements sur le palier, gage de tranquillité
Calme, lumière et confort
Exposé de manière à bénéficier d’une belle luminosité tout au long de la journée, cet appartement combine volumes généreux, belles hauterus sous plafond,prestations de qualité et cadre de vie paisible. Venez visiter ! Agent commercial indépendant Swixim sur votre secteur : [Coordonnées masquées] Honoraires à la charge du vendeur
Voir plus

Référence: CWDIAGONALE

Prêt immobilier

Vous souhaitez connaître votre capacité d’emprunt et trouver le meilleur crédit immobilier ?
Réaliser une simulation gratuite

Appartement à FRANCHEVILLE
Appartement à FRANCHEVILLE
Appartement à FRANCHEVILLE
Appartement à FRANCHEVILLE
Appartement à FRANCHEVILLE
Appartement à FRANCHEVILLE
Ce site est protégé par reCAPTCHA la Politique de confidentialité et les Conditions d’utilisation de Google s’appliquent.
Obtenir un prêt immobilier au meilleur taux ?

En poursuivant votre navigation sans modifier vos paramètres, vous acceptez l'utilisation de cookies susceptibles de réaliser des statistiques de visite. Cliquez ici pour plus d'informations