Pibrac maison t5 de 134 m² de 2011 en bbc

— Pibrac 31820 —
349 000 €
134 m² / 596 m²
5 pièces
parkingbalcon/terrassejardin

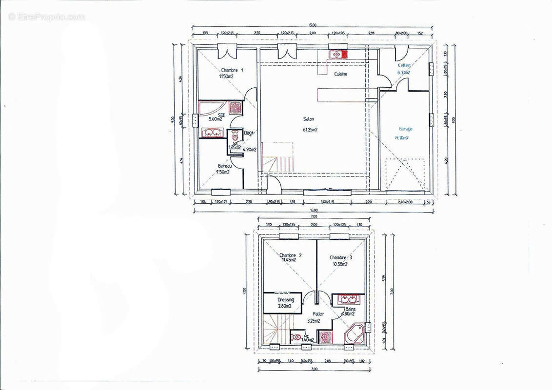
A Pibrac - Maison BBC récente de 2011 avec de très bonnes performances énergétiques. A 3 min Lycée Mandela et 12 min du Lycée International par L32 Tisséo Elle offre un véritable confort de vie grâce à sa conception moderne et ses très bonnes performances énergétiques. Au RDC, en double exposition, une très belle pièce de vie lumineuse, salon /salle à manger ouverte sur cuisine de 61 m² avec cellier attenant et accès direct au garage. Espace parental 32 m² formé d'une chambre, d'un WC indépendant, d'une salle de bain privative ainsi que d'une pièce de 8 m² pouvant faire office de bureau, chambre d'appoint ou dressing si l'on veut créer une véritable suite parentale. L'étage est dédié aux enfants ou aux invités avec deux chambres, un dressing indépendant, une salle de bains comprenant douche et baignoire, ainsi qu'un WC séparé. Le terrain de 596 m² accueille à l'arrière de la maison un espace extérieur avec une terrasse idéale pour les repas en plein air . Proche des écoles, des transports et des accès vers Toulouse et Airbus, ce bien en excellent état permet une installation immédiate, sans travaux, et conviendra parfaitement aux familles souhaitant allier confort, modernité et qualité de vie. Axe N124 à 2 minutes, 10 minutes de l'aéroport Blagnac, 5 min du centre ville et 10 min de la base de loisirs de la forêt de Bouconne la maison se situe également à proximité du Lycée Nelson Mandela accessible par piste cyclable et 12 minutes du lycée inter par la l32 Tisseo .
Voir plus

Référence: 3678
Honoraires à la charge du vendeur.
Barème des honoraires
DPE
A
B
C
D
E
F
G
GES
A
B
C
D
E
F
G

Prêt immobilier

Vous souhaitez connaître votre capacité d’emprunt et trouver le meilleur crédit immobilier ?
Réaliser une simulation gratuite

Maison à PIBRAC
Maison à PIBRAC
Maison à PIBRAC
Maison à PIBRAC
Maison à PIBRAC
Maison à PIBRAC
Maison à PIBRAC
Maison à PIBRAC
Maison à PIBRAC
Maison à PIBRAC
Ce site est protégé par reCAPTCHA la Politique de confidentialité et les Conditions d’utilisation de Google s’appliquent.
Obtenir un prêt immobilier au meilleur taux ?

En poursuivant votre navigation sans modifier vos paramètres, vous acceptez l'utilisation de cookies susceptibles de réaliser des statistiques de visite. Cliquez ici pour plus d'informations