Bénéficiez des services de nos partenaires locaux soigneusement sélectionnés
pour vous accompagner dans votre parcours d'achat immobilier

Appartement 69m² à paris-15e

— Paris-15e 75015 —
645 000 €
69 m²
3 pièces
balcon/terrasseascenseuraccès handicapé

Nos partenaires locaux
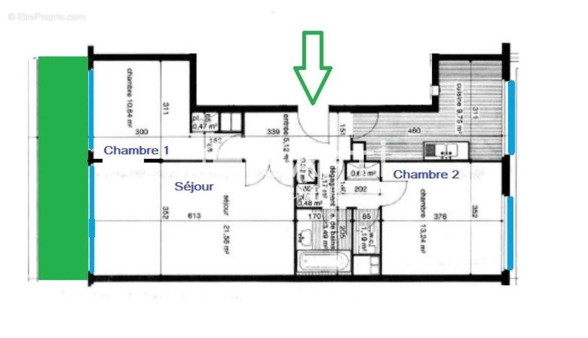
Paris 15ème arrondissement (75015), résidence de standing, appartement lumineux, avec vue, sans vis-à-vis traversant, 3 pièces, au 8e étage. Lumineux, 69 m² (Carrez) + balcon / terrassez de 9,5 m², Huisseries neuves, volets électriques. Cave, local vélo. Composition : Entrée, séjour - deux chambres - Cuisine - Salle d'eau - WC séparés - Nombreux rangements. Accès handicapé, seulement 2 appartements par palier. Possibilité d'obtenir un emplacement de parking en location ou à l'achat dans la résidence. Présence d'un gardien. Proche des écoles, commerces et des transports : métro Lourmel (ligne 8) à 3 minutes, porte de Versailles (L12) à 10 minutes, et des tramway tramway T3a et T2. À proximité du ministère des Armées, de la Porte de Versailles, du Parc André Citroën, de la Coulée verte, l'hôpital Georges Pompidou,. l'aquaboulevard… Accès terrasse au dernier étage avec vue 360° sur tout Paris.

Le bien comprend 2 lots, et il est situé dans une copropriété de 650 lots (les charges courantes annuelles moyennes de copropriété sont de 4400 ¤ et le syndicat des copropriétaires ne fait pas l'objet d'une procédure citée à l'article L. 721-1 du code de la construction et de l'habitation).

Les informations sur les risques auxquels ce bien est exposé sont disponibles sur le site Géorisques : www.georisques.gouv.fr
Prix de vente : 645 000 ¤
Honoraires charge vendeur

Contactez votre conseiller SAFTI : Bruno JAFFRÉ, Tél. : [Coordonnées masquées], E-mail : [Coordonnées masquées] - EI - Agent commercial immatriculé au RSAC de PARIS sous le numéro 405 246 737.
Informations LOI ALUR :
Soumis au régime de copropriété.
Nombre de lots : 650.
Quote part annuelle(moyenne) : 4400 euros.
Honoraires charge vendeur. (gedeon_26118_32169197)
Voir plus

Référence: 1559184
Bien en copropriété. Nombre de lots : 650. Charges de copropriété : 4400 €.
Honoraires à la charge du vendeur.
Barème des honoraires
DPE
A
B
C
D
E
F
G
GES
A
B
C
D
E
F
G

Prêt immobilier

Vous souhaitez connaître votre capacité d’emprunt et trouver le meilleur crédit immobilier ?
Réaliser une simulation gratuite

Photo 1 - Appartement à PARIS-15E
Photo 1
Photo 2 - Appartement à PARIS-15E
Photo 2
Photo 3 - Appartement à PARIS-15E
Photo 3
Photo 4 - Appartement à PARIS-15E
Photo 4
Photo 5 - Appartement à PARIS-15E
Photo 5
Photo 6 - Appartement à PARIS-15E
Photo 6
Photo 7 - Appartement à PARIS-15E
Photo 7
Photo 8 - Appartement à PARIS-15E
Photo 8
Photo 9 - Appartement à PARIS-15E
Photo 9
Ce site est protégé par reCAPTCHA la Politique de confidentialité et les Conditions d’utilisation de Google s’appliquent.
Obtenir un prêt immobilier au meilleur taux ?

En poursuivant votre navigation sans modifier vos paramètres, vous acceptez l'utilisation de cookies susceptibles de réaliser des statistiques de visite. Cliquez ici pour plus d'informations