Appartement 40m² à hendaye

— Hendaye 64700 —
142 318 €
41 m²
2 pièces

Nous vous proposons un bien immobilier unique idéal pour un investissement en Loueur Meublé Non Professionnel (LMNP) sous bail commercial. Ce type de placement offre de nombreux avantages fiscaux et un revenu locatif sécurisé.


« Aucune possibilité d'acquisition en résidence principale ou secondaire »

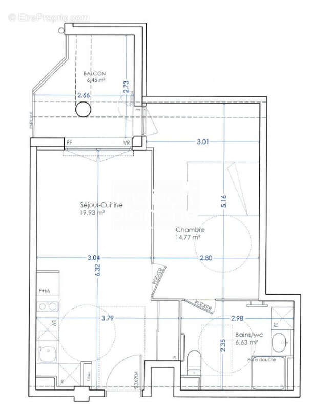
Caractéristiques du Bien :
Type de Bien : Appartement t2 meublé en résidence sénior
Localisation : 10 RUE DE LA GARE - 64700 HENDAYE
Surface : 40.79 m²
Etage : R+1
Année de Construction : 2018
Etat Général : Bon Etat
Gestionnaire : LES JARDINS D'ARCADIE

Informations Financières :
Prix de Vente : 142 318 €
Loyer Annuel Garanti : 6 915 € HT
Rendement Locatif Brut : 4,9 %
Charges Annuelles : 310 €
Taxe foncière : 290 €
Bail commercial jusqu'au 31/12/2026

Avantages de l'Investissement LMNP :

Revenu locatif sécurisé : Le bien est loué sous bail commercial avec un loyer garanti.
Régime fiscal attractif : Amortissement du bien, déduction des charges, et réduction de la base imposable.

Gestion simplifiée : Le bail commercial inclut la gestion locative, ce qui réduit les contraintes pour l'investisseur.

Pour plus d'informations ou pour organiser une visite, n'hésitez pas à nous contacter :

Téléphone : [Coordonnées masquées]
Adresse de l'agence : 21-23, 21 Rue du Maréchal Leclerc, 85100 Les Sables-d'Olonne
Investissez en toute sérénité avec ce bien sous le statut LMNP et bénéficiez d'un rendement locatif attractif et sécurisé. Ne manquez pas cette opportunité exceptionnelle !
Les informations sur les risques auxquels ce bien est exposé sont disponibles sur le site Géorisques : www.georisques.gouv.fr
PHOTOS NON CONTRACTUELLES

Dans une copropriété de 100 lots. Aucune procédure n'est en cours. Classe énergie C, Classe climat C Montant estimé des dépenses annuelles d'énergie pour un usage standard : entre 380.00 € et 550.00 € sur les années 2021, 2022 et 2023 (abonnements compris). Les informations sur les risques auxquels ce bien est exposé sont disponibles sur le site Géorisques : georisques.gouv.fr.
Voir plus

Référence: IQ15102025JLS-MAISON BLANCHE
Bien en copropriété. Nombre de lots : 100.
Honoraires à la charge de l'acquéreur.
DPE
A
B
C
D
E
F
G
GES
A
B
C
D
E
F
G

Prêt immobilier

Vous souhaitez connaître votre capacité d’emprunt et trouver le meilleur crédit immobilier ?
Réaliser une simulation gratuite

Appartement à HENDAYE
Appartement à HENDAYE
Appartement à HENDAYE
Appartement à HENDAYE
Appartement à HENDAYE
Ce site est protégé par reCAPTCHA la Politique de confidentialité et les Conditions d’utilisation de Google s’appliquent.
Obtenir un prêt immobilier au meilleur taux ?

En poursuivant votre navigation sans modifier vos paramètres, vous acceptez l'utilisation de cookies susceptibles de réaliser des statistiques de visite. Cliquez ici pour plus d'informations