Immeuble avec rapport locatif idéal investisseurs !!

— Cleguerec 56480 —
169 000 €
189 m²

Situé dans la charmante ville de Cléguérec (56480), cet immeuble de rapport locatif se distingue par son emplacement paisible et son ambiance authentique bretonne. La ville offre un cadre de vie agréable, à proximité de la nature avec ses espaces verts et ses sentiers de randonnée. Vous pourrez profiter de la quiétude de la campagne tout en étant à quelques pas des commodités essentielles telles que les commerces locaux, les écoles et les transports en commun.

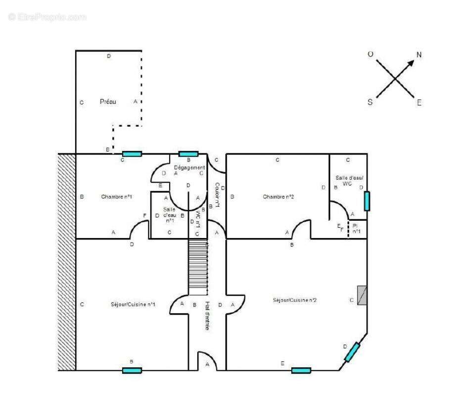
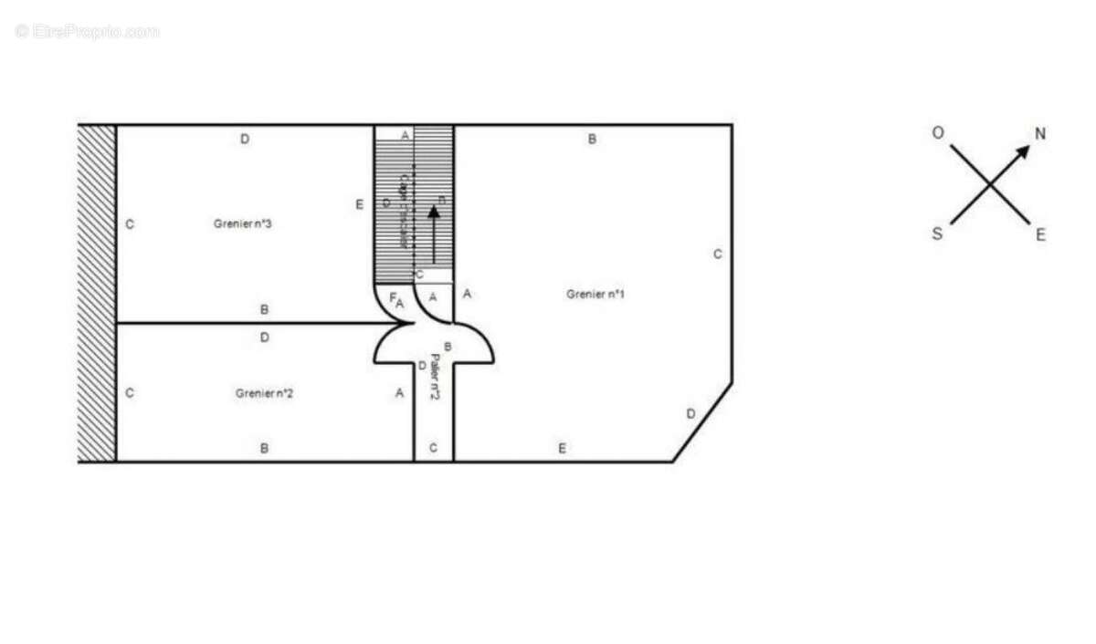
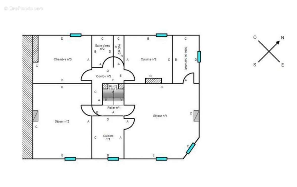
Cet immeuble de 189 m² avec une cour privative, se compose de 3 appartements T2 de 40, 43 et 44 m² habitable et de 1 appartement T1 bis de 44 m² habitable, combles aménageable en deux studio de 30 et 25m², offrant ainsi un excellent potentiel de revenu locatif. Chaque appartement bénéficie d'un agencement optimal et d'une surface habitable confortable, permettant d'assurer un bon rendement locatif ( 12 pourcent). Cet immeuble constitue une opportunité idéale pour un investissement durable dans un secteur dynamique et attractif.
Compteur électriques et eau individuels, tout à l'égout, double vitrage PVC.
Loyer de 375€ et 390€ .
Les diagnostiques seront réalisés le 27 novembre.

Les informations sur les risques auxquels ce bien est exposé sont disponibles sur le site Géorisques : www.georisques.gouv.fr
Prix de vente honoraires d'agence inclus : 169 000 €
Prix de vente hors honoraires d'agence : 160 000 €
Honoraires charge acquéreur : 9 000 € soit 5,63 % TTC de la valeur du bien hors honoraires

Contactez votre consultant megAgence : Erwan GUEGAN, Tél. : [Coordonnées masquées], E-mail : [Coordonnées masquées] - EI - Agent commercial immatriculé au RSAC de LORIENT sous le numéro 529 983 579
Voir plus

Référence: 194972
DPE
A
B
C
D
E
F
G
GES
A
B
C
D
E
F
G

Prêt immobilier

Vous souhaitez connaître votre capacité d’emprunt et trouver le meilleur crédit immobilier ?
Réaliser une simulation gratuite

Appartement à CLEGUEREC
Appartement à CLEGUEREC
Appartement à CLEGUEREC
Appartement à CLEGUEREC
Appartement à CLEGUEREC
Appartement à CLEGUEREC
Appartement à CLEGUEREC
Appartement à CLEGUEREC
Appartement à CLEGUEREC
Appartement à CLEGUEREC
Appartement à CLEGUEREC
Appartement à CLEGUEREC
Appartement à CLEGUEREC
Appartement à CLEGUEREC
Appartement à CLEGUEREC
Appartement à CLEGUEREC
Ce site est protégé par reCAPTCHA la Politique de confidentialité et les Conditions d’utilisation de Google s’appliquent.
Obtenir un prêt immobilier au meilleur taux ?

En poursuivant votre navigation sans modifier vos paramètres, vous acceptez l'utilisation de cookies susceptibles de réaliser des statistiques de visite. Cliquez ici pour plus d'informations