Bénéficiez des services de nos partenaires locaux soigneusement sélectionnés
pour vous accompagner dans votre parcours d'achat immobilier

Appartement

— Lyon-2e 69002 —
125 000 €
14 m²
1 pièce

Nos partenaires locaux
69002 – PERRACHE - INVESTISSEUR – STUDIO 14m2 – PREMIER ETAGE – SANS VIS-A-VIS – TOTALEMENT RENOVE – CAVE - GRENIER - RENTABILITE 6,5%

Loïc FERNANDEZ et Efficity, ont le plaisir de vous présenter ce studio de 14 m², idéalement situé au 13 cours Suchet, dans le 2ᵉ arrondissement de Lyon.

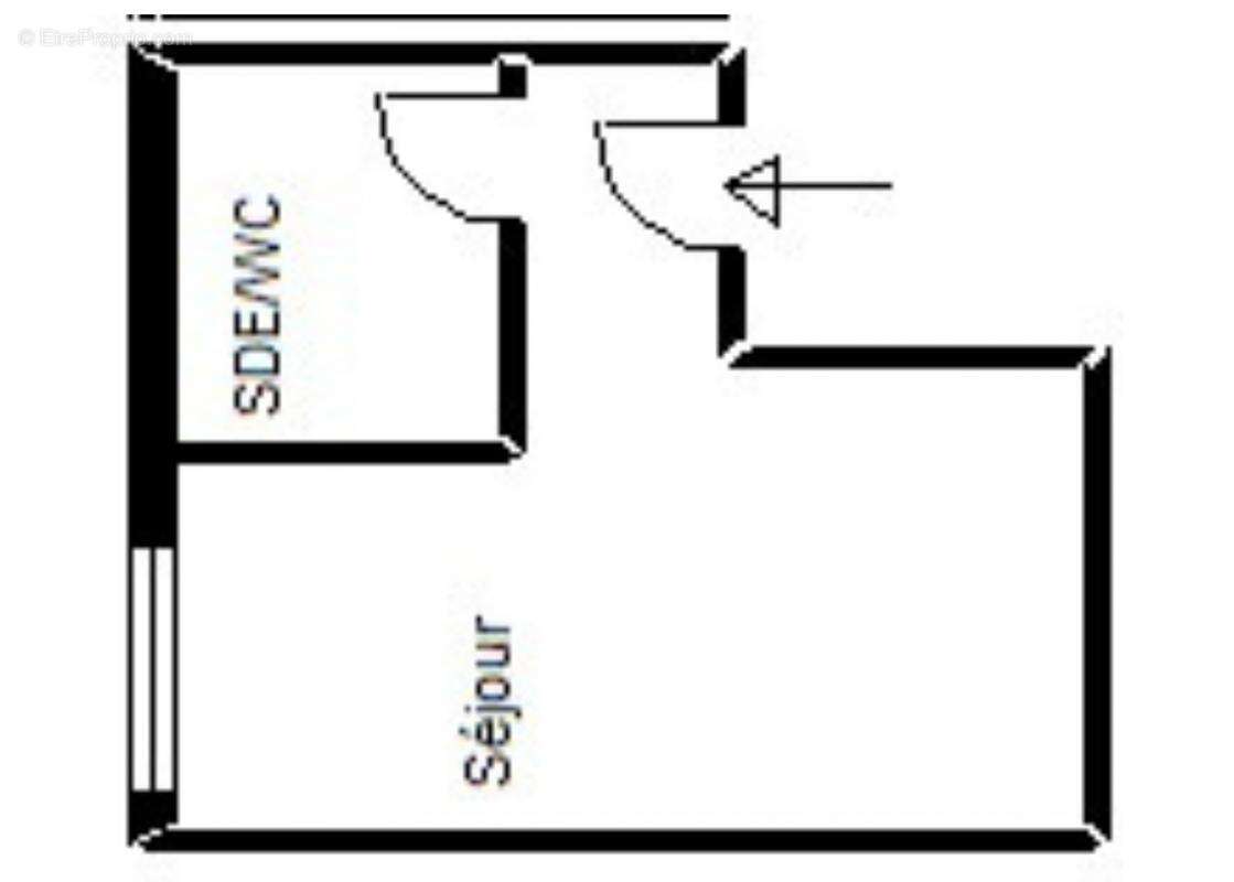
Ce bien, au premier étage d'un immeuble ancien, se compose d'une pièce de vie principale avec espace cuisine, ainsi que d'une salle d'eau avec WC. Il est vendu libre de toute occupation, offrant ainsi une belle opportunité pour un investissement locatif, un pied-à-terre ou un premier achat.

Sa localisation est un véritable atout : à proximité immédiate de la gare de Perrache, du métro, des lignes de tramway et de toutes les commodités du quartier. Vous bénéficiez ici d'un emplacement central, pratique et recherché.

Le studio nécessite une rénovation complète afin de le remettre au goût du jour et de valoriser pleinement son potentiel.

Une opportunité rare dans un secteur dynamique de Lyon.

COTE APPARTEMENT :
- Double vitrage PVC
- Orientation Ouest
- Une cave au sous-sol
- Un grenier

COTE FINANCE :
- Loyer: 675€ dont 30€ de charges
- Taxe foncière : 290 euros/an
- Charges : 52€/trimestre (eau froide, entretien des parties commune, fond travaux Alur)
- DPE : D

COTE PRATIQUE :
- Gare Lyon Perrache à 400m
- Métro Perrache ligne A à 400m
- Tram T1 et T2 à 50m
- Centre commercial Confluence à 800m
- Commerces de proximité (épicerie, boulangerie, tabac presse, brasserie, restaurants.)

Pour plus d'informations ou pour organiser une visite, veuillez me contacter au [Coordonnées masquées] par mail [Coordonnées masquées] du lundi au dimanche.
Les informations sur les risques auxquels ce bien est exposé sont disponibles sur le site Georisque : georisques. gouv. fr
Loic Fernandez - EI - est Agent Commercial mandataire en immobilier, immatriculé au Registre Spécial des Agents Commerciaux du Tribunal de Commerce de Bourg-en-Bresse sous le n°898127121.
Siège social du mandant : effiCity, 48 avenue de Villiers - 75017 PARIS - Société par Actions Simplifiée, société au capital de 132 373,05 euros, immatriculée au RCS Paris 497 617 746 et titulaire de la Carte professionnelle CPI 75[Coordonnées masquées]02 025 - CCI Paris IDF - Caisse de Garantie : GALIAN Assurances 89 rue de la Boétie 75008 Paris
Voir plus

Référence: 199294
Bien en copropriété. Nombre de lots : 12. Charges de copropriété : 17 €.
Honoraires à la charge du vendeur.
Barème des honoraires
DPE
A
B
C
D
E
F
G
GES
A
B
C
D
E
F
G

Prêt immobilier

Vous souhaitez connaître votre capacité d’emprunt et trouver le meilleur crédit immobilier ?
Réaliser une simulation gratuite

Appartement à LYON-2E
Appartement à LYON-2E
Appartement à LYON-2E
Appartement à LYON-2E
Appartement à LYON-2E
Appartement à LYON-2E
Ce site est protégé par reCAPTCHA la Politique de confidentialité et les Conditions d’utilisation de Google s’appliquent.
Obtenir un prêt immobilier au meilleur taux ?

En poursuivant votre navigation sans modifier vos paramètres, vous acceptez l'utilisation de cookies susceptibles de réaliser des statistiques de visite. Cliquez ici pour plus d'informations