Bénéficiez des services de nos partenaires locaux soigneusement sélectionnés
pour vous accompagner dans votre parcours d'achat immobilier

Appartement 103m² à lyon-2e

— Lyon-2e 69002 —
499 000 €
103 m²
3 pièces

Nos partenaires locaux
IDEAL PROFESSIONS LIBERALES ou INVESTISSEURS LOCATIFS MOYENNE ET LONGUE DUREE :
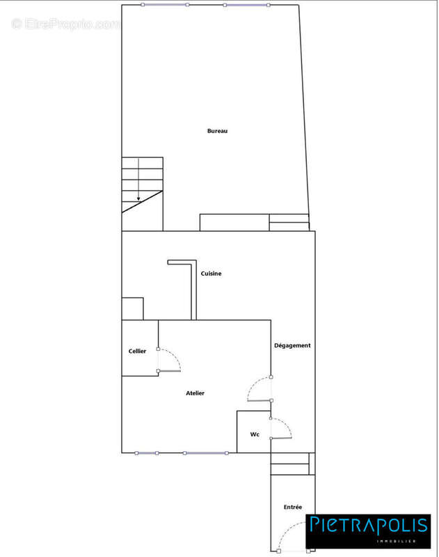
Appartement à aménager de 103m2 habitables au coeur de la Place Bellecour.
Possibilité bureaux (professions libérales), loft, appartement d'architecte.
Lumineux, très belle hauteur sous plafond, cuisine, salle de bains, toilettes. (salle de bains et toilettes à l'étage également).
RDC sur-élevé, idéal professions libérales (avocats, notaires, architectes, designers...) mais également bien locatif pour professionnels nomades à l'emplacement unique et privilégié.
Référence loyer : 2300/2500€/mois hors charges.
Le bien est soumis au statut de copropriété.

Pour visiter ce bien, contactez :
Sébastien SUZET (agent commercial RSAC 428 959 654) au [Coordonnées masquées] [Coordonnées masquées]

Dans une copropriété de 20 lots. Aucune procédure n'est en cours. Classe énergie F, Classe climat C Logement à consommation énergétique excessive. Montant moyen estimé des dépenses annuelles d'énergie pour un usage standard, établi à partir des prix de l'énergie de l'année 2021 : entre 3070.00 et 4180.00 €. Les informations sur les risques auxquels ce bien est exposé sont disponibles sur le site Géorisques : georisques.gouv.fr.

Votre conseiller Pietrapolis Lyon 3 Préfecture : Sébastien SUZET
Agent commercial (Entreprise individuelle)
RSAC 428 959 654
Voir plus

Référence: 211082-PIETRAPOLIS
Bien en copropriété. Nombre de lots : 20.
Honoraires à la charge de l'acquéreur.
Barème des honoraires
DPE
A
B
C
D
E
F
G
GES
A
B
C
D
E
F
G

Prêt immobilier

Vous souhaitez connaître votre capacité d’emprunt et trouver le meilleur crédit immobilier ?
Réaliser une simulation gratuite

Appartement à LYON-2E
Proposition cuisine et salon - Appartement à LYON-2E
Proposition cuisine et salon
Appartement à LYON-2E
Appartement à LYON-2E
Appartement à LYON-2E
Proposition open space - Appartement à LYON-2E
Proposition open space
Proposition open space - Appartement à LYON-2E
Proposition open space
Appartement à LYON-2E
Appartement à LYON-2E
Ce site est protégé par reCAPTCHA la Politique de confidentialité et les Conditions d’utilisation de Google s’appliquent.
Obtenir un prêt immobilier au meilleur taux ?

En poursuivant votre navigation sans modifier vos paramètres, vous acceptez l'utilisation de cookies susceptibles de réaliser des statistiques de visite. Cliquez ici pour plus d'informations