Bénéficiez des services de nos partenaires locaux soigneusement sélectionnés
pour vous accompagner dans votre parcours d'achat immobilier

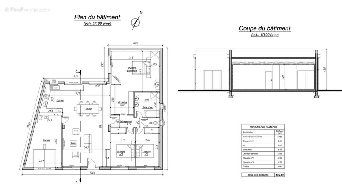
Maison neuve plain pied 133 m²

— Blois 41000 —
314 000 €
150 m² / 529 m²
4 pièces
parkingjardinaccès handicapé

Nos partenaires locaux
Vous êtes à la recherche de maison neuve, moderne et spacieuse, de plain pied ? J'ai le plaisir de vous présenter cette maison moderne.

À BLOIS, dans un quartier calme (hors lotissement) à 10 minutes de la gare, je vous propose cette maison de plain pied.

Maison respectant les nouvelles normes d'isolation RE2020, moderne, toit plat et belle hauteur sous plafond.

Composée de :
Un grand séjour ouvert sur la cuisine (non aménagée) donnant accès directement sur la terrasse, un cellier, un WC, une grande salle de bain, 2 belles chambres, une grande suite parentale de 33 m² (chambre, salle de douche et un dressing).

Votre véhicule sera abrité dans le garage.
Une belle terrasse.

Le tout sur un terrain qui demandera que très peu d'entretien (529 m²).

Pas de vis à vis, vue dégagée.

Je me tiens à votre disposition pour visiter et vous accompagner dans votre projet d'achat. Possibilité de réaliser une étude de prêt - DISPONIBLE 6/7 - Honoraires à la charge du vendeur - Montant estimé des dépenses annuelles d'énergie pour un usage standard, établi à partir des prix de l'énergie de l'année 2022 : 350€ ~ 600€ - Les informations sur les risques auxquels ce bien est exposé sont disponibles sur le site Géorisques : www.georisques.gouv.fr - Nadia AZOUG - Agent commercial - EI - RSAC Blois 838614022 - RCS 4[Coordonnées masquées]127 - Caisse de garantie QBE 500000 EUR
Voir plus

Référence: 82319073
Barème des honoraires
DPE
A
B
C
D
E
F
G
GES
A
B
C
D
E
F
G

Prêt immobilier

Vous souhaitez connaître votre capacité d’emprunt et trouver le meilleur crédit immobilier ?
Réaliser une simulation gratuite

Maison à BLOIS
Maison à BLOIS
Maison à BLOIS
Maison à BLOIS
Maison à BLOIS
Maison à BLOIS
Maison à BLOIS
Maison à BLOIS
Maison à BLOIS
Maison à BLOIS
Maison à BLOIS
Maison à BLOIS
Maison à BLOIS
Maison à BLOIS
Maison à BLOIS
Maison à BLOIS
Ce site est protégé par reCAPTCHA la Politique de confidentialité et les Conditions d’utilisation de Google s’appliquent.
Obtenir un prêt immobilier au meilleur taux ?

En poursuivant votre navigation sans modifier vos paramètres, vous acceptez l'utilisation de cookies susceptibles de réaliser des statistiques de visite. Cliquez ici pour plus d'informations