Nice // bellet - route de bellet : terrain à bâtir - piscinable - garages

— Nice 06200 —
395 000 €
574 m²

Nice // Bellet : Terrain à bâtir - Vue Mer - Piscinable - Garage

Au sein du secteur de Bellet au calme complet, desservi facilement par la ligne 62.

Bénéficiant d’une belle vue Mer, ce terrain exposé Est et Sud, d’une superficie de 574m2 peut accueillir une villa de 112m2 avec piscine et deux grands garages.

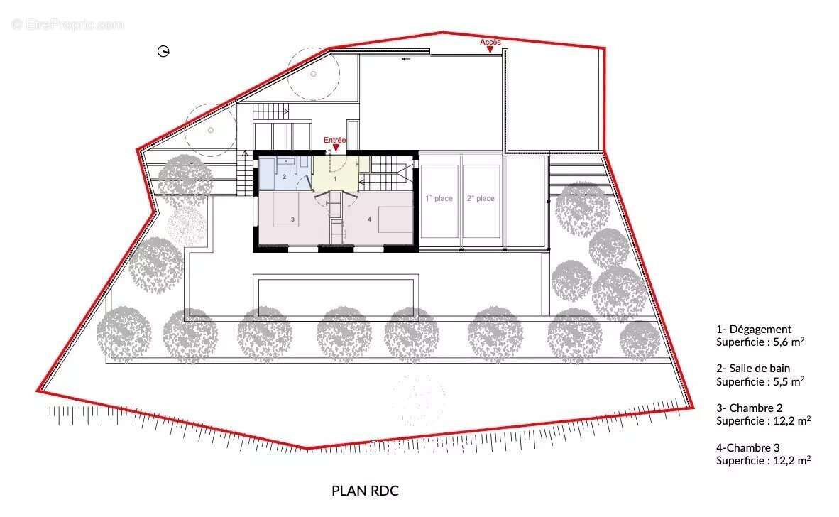
Le projet de cette maison familiale s’intègre naturellement dans la légère pente du terrain. Son implantation crée deux niveaux distincts. Au Rez de chaussée, Un dégagement menant au rez de jardin, deux belles chambres donnant sur extérieur, ainsi que pergola, et une salle de douche.
Au rez de jardin, un grand séjour avec cuisine ouverte, exposition Sud et Est, ouvrant sur le jardin et la piscine. Une grande chambre de plain pied vient compléter cela.

Permis de construire validé pour la construction d’une bâtisse contemporaine ornée d’une façade en pierre de taille respectant les normes RE2020.

Honoraires à la charge du vendeur
Les informations sur les risques auxquels ce bien est exposé sont disponibles sur le site Géorisques : georisques.gouv.fr
La présente annonce immobilière a été rédigée sous la responsabilité éditoriale de l'agent commercial mandaté pour la vente de ce bien.
Voir plus

Référence: 86441125
Barème des honoraires

Prêt immobilier

Vous souhaitez connaître votre capacité d’emprunt et trouver le meilleur crédit immobilier ?
Réaliser une simulation gratuite

Terrain à NICE
Terrain à NICE
Terrain à NICE
Terrain à NICE
Terrain à NICE
Ce site est protégé par reCAPTCHA la Politique de confidentialité et les Conditions d’utilisation de Google s’appliquent.
Obtenir un prêt immobilier au meilleur taux ?

En poursuivant votre navigation sans modifier vos paramètres, vous acceptez l'utilisation de cookies susceptibles de réaliser des statistiques de visite. Cliquez ici pour plus d'informations