Bénéficiez des services de nos partenaires locaux soigneusement sélectionnés
pour vous accompagner dans votre parcours d'achat immobilier

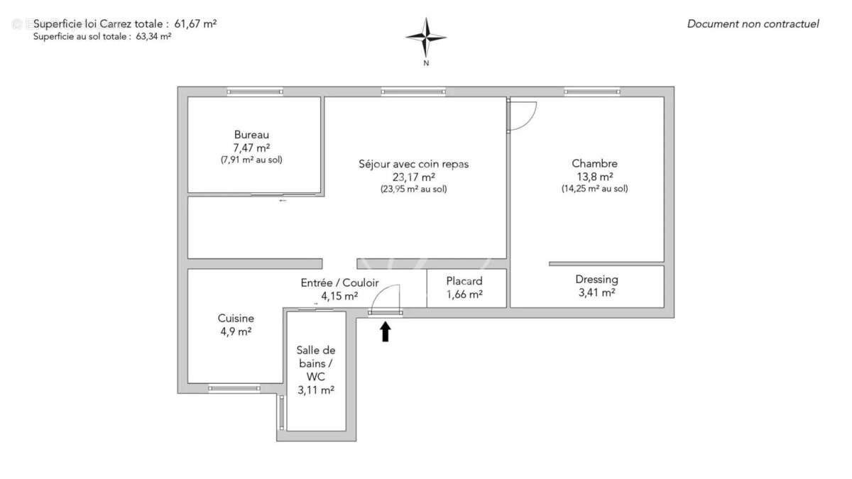
Paris 18e - pigalle / boulevard de clichy - appartement à vendre - 3 pièces - 61,67m² carrez - 63,34m² au sol - 1/2 chambres.

— Paris-18e 75018 —
660 000 €
62 m²
3 pièces

Nos partenaires locaux
Au sein d’une charmante copropriété arborée et gardiennée ce magnifique appartement de 61,67m² loi Carrez et 63,34m² au sol est en bon état général, exposé plein sud.

Il se compose d’un séjour baigné de lumière, une cuisine équipée, une grande chambre avec dressing, un bureau pourrait être réaménagé en deuxième chambre, une salle de bains avec toilettes.

Il dispose également de beaux volumes et de nombreux rangements. Emplacement privilégié et très recherché, à proximité de nombreux commerces et restaurants.
Une cave complète ce bien.
Voir plus

Référence: 3306ABBRAV
Barème des honoraires
DPE
A
B
C
D
E
F
G
GES
A
B
C
D
E
F
G

Prêt immobilier

Vous souhaitez connaître votre capacité d’emprunt et trouver le meilleur crédit immobilier ?
Réaliser une simulation gratuite

Appartement à PARIS-18E
Appartement à PARIS-18E
Appartement à PARIS-18E
Appartement à PARIS-18E
Appartement à PARIS-18E
Appartement à PARIS-18E
Appartement à PARIS-18E
Appartement à PARIS-18E
Appartement à PARIS-18E
Appartement à PARIS-18E
Appartement à PARIS-18E
Appartement à PARIS-18E
Appartement à PARIS-18E
Appartement à PARIS-18E
Appartement à PARIS-18E
Appartement à PARIS-18E
Ce site est protégé par reCAPTCHA la Politique de confidentialité et les Conditions d’utilisation de Google s’appliquent.
Obtenir un prêt immobilier au meilleur taux ?

En poursuivant votre navigation sans modifier vos paramètres, vous acceptez l'utilisation de cookies susceptibles de réaliser des statistiques de visite. Cliquez ici pour plus d'informations